Peaceful village living with generous gardens and extensive parking.
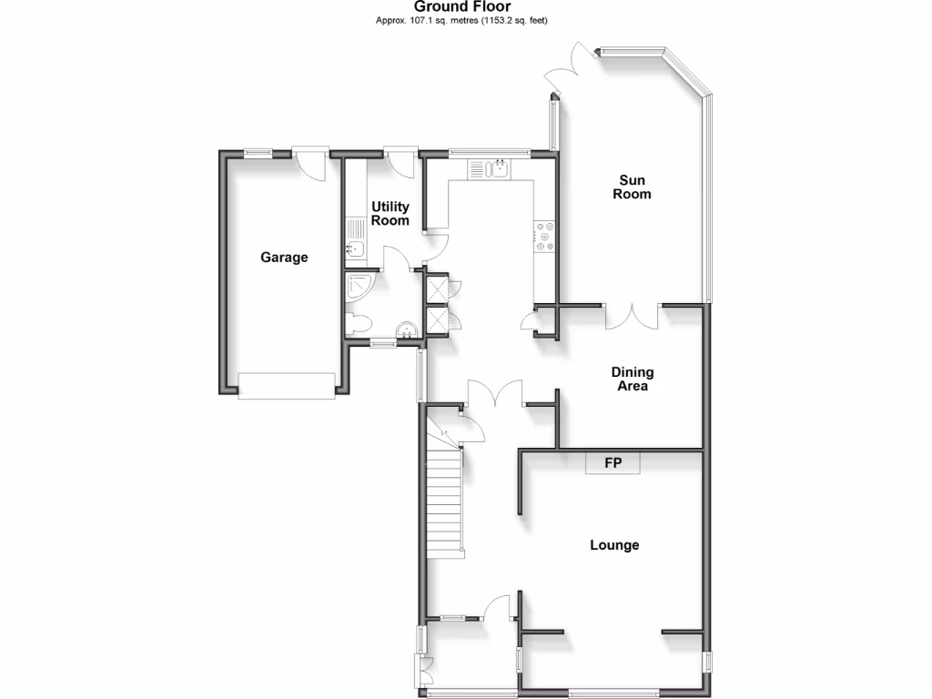
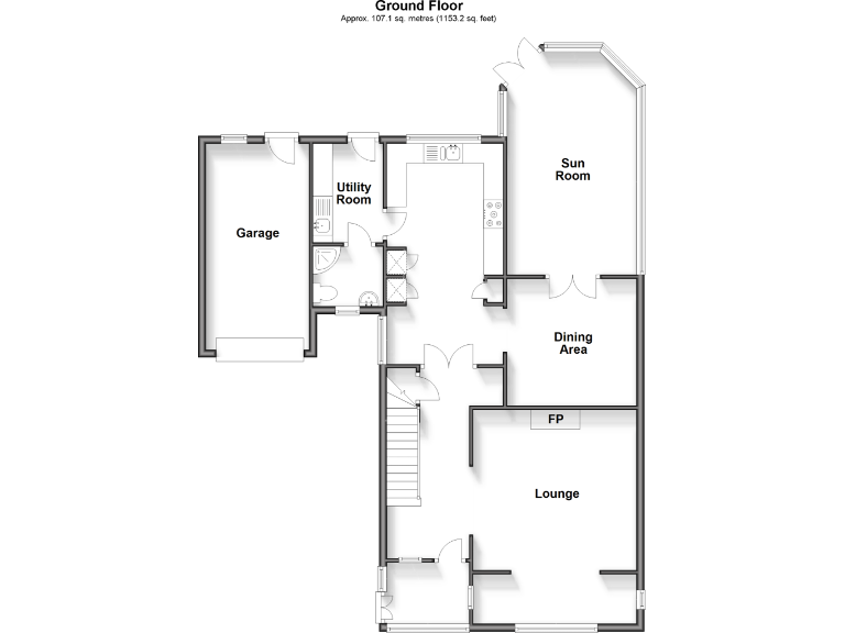
Large 20'11" sun room with countryside views
Set on a generous corner plot on the outskirts of Shanklin, this three‑bedroom detached home offers comfortable single‑level living with countryside views. The enlarged kitchen and sociable dining area flow to a large 20'11" sun room, while a separate utility and ground‑floor shower room add everyday convenience. The house is presented in immaculate condition and ready to move into.
Outside there is a magnificent gravelled driveway, garage and parking for multiple cars, a boat or a motorhome, plus wrap‑around gardens that catch the sun and open views to the front. The layout is traditional and practical, with a separate lounge, neat bedrooms and a family bathroom upstairs — ideal for those looking to downsize without sacrificing space.
Practical points to note: the property was built in the 1950s–60s with cavity walls (no confirmed insulation), double glazing of unknown installation date and mains gas central heating via boiler and radiators. Broadband speeds are average and mobile signal is excellent. Buyers should verify planning/building regulation consents for the extended accommodation and check any upgrade work they may wish to carry out.
Overall this home suits buyers seeking a peaceful village setting, generous outside space and easy parking, with the simplicity of freehold tenure and low flood risk. It will particularly appeal to those wanting low‑maintenance, single‑level living with room for visitors and hobbies.
5 bedroom detached house for sale in Vaughan Way, Shanklin Old Village, PO37 — £825,000 • 5 bed • 3 bath • 2724 ft²
3 bedroom detached bungalow for sale in Chatsworth Avenue, Shanklin, Isle of Wight, PO37 — £215,000 • 3 bed • 1 bath • 1863 ft²
6 bedroom detached house for sale in Victoria Avenue, Shanklin, PO37 — £875,000 • 6 bed • 3 bath • 2767 ft²
3 bedroom bungalow for sale in Hungerberry Close, Shanklin, Isle of Wight, PO37 — £495,000 • 3 bed • 2 bath • 1459 ft²
2 bedroom detached bungalow for sale in Scotchells Close, Shanklin, PO37 — £320,000 • 2 bed • 1 bath • 679 ft²
3 bedroom bungalow for sale in Victoria Avenue, Shanklin, Isle of Wight, PO37 — £750,000 • 3 bed • 2 bath • 2596 ft²


































































