Entry-level terrace with garden and easy commute to Ebbw Vale.
Three bedrooms in a compact mid-terrace layout
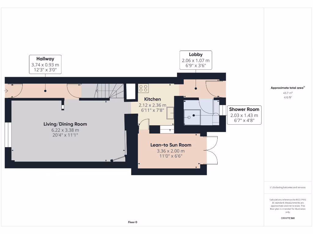
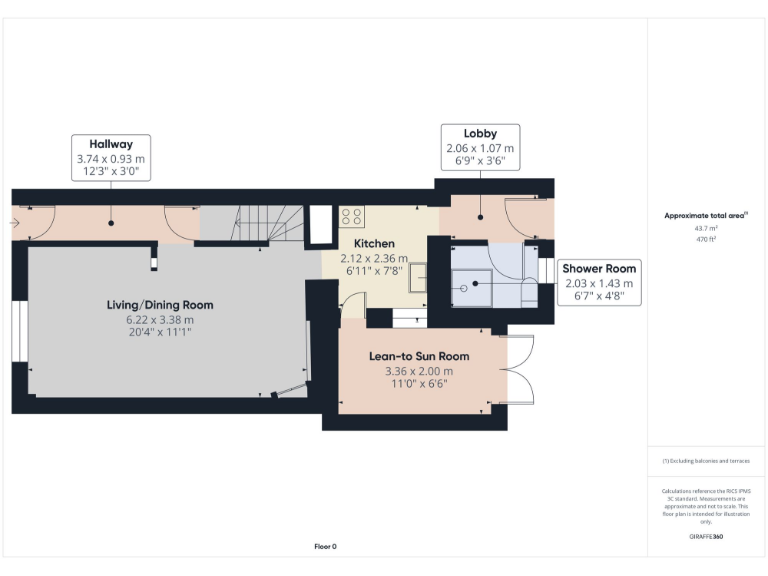
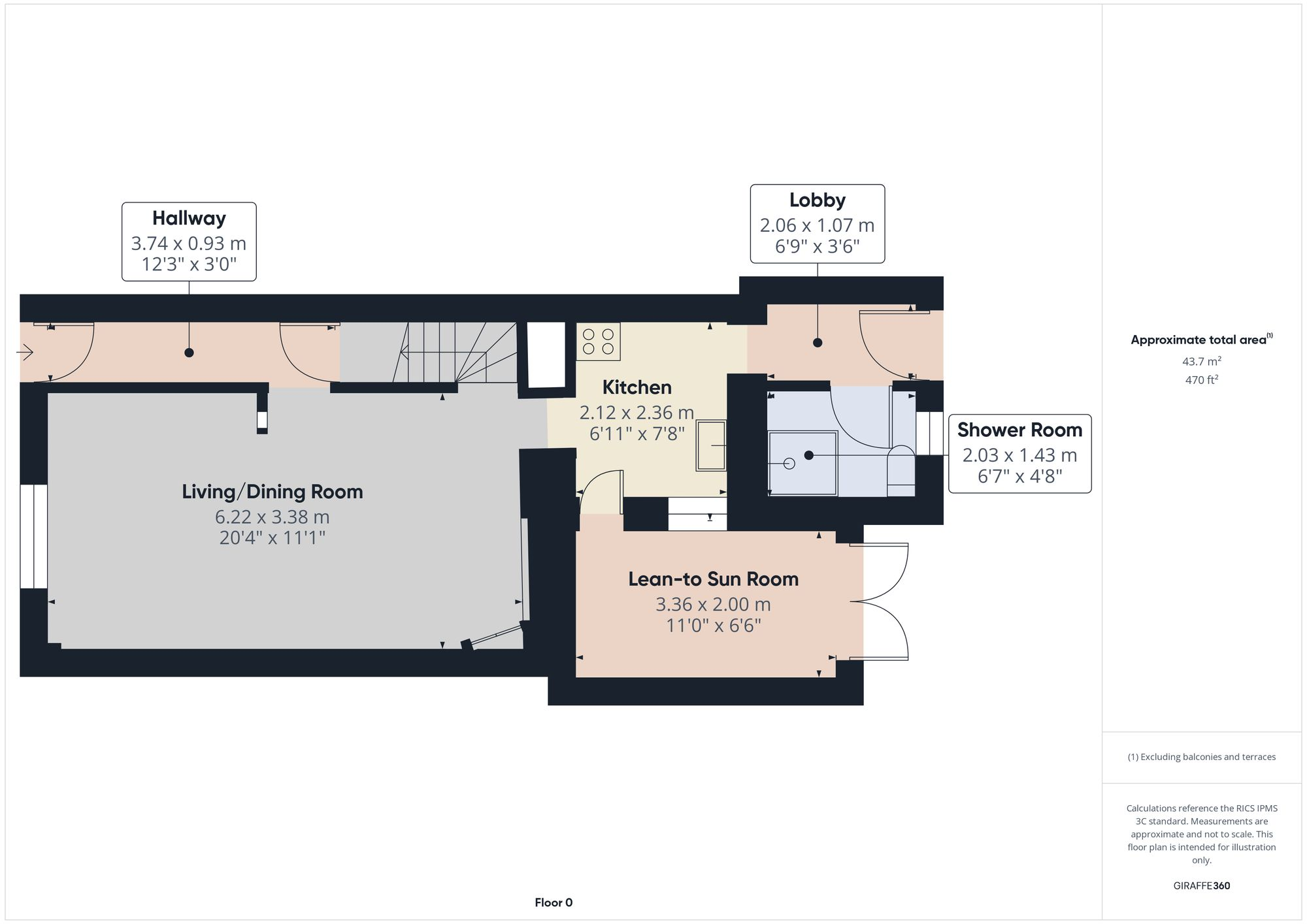
This compact three-bedroom mid-terrace offers an affordable entry into Cwm, close to the A467 and Ebbw Vale Parkway. The house has an open-plan living/dining room, a fitted kitchen, ground-floor shower room, and a lean-to sun room opening onto a small rear garden with lane access.
The property is freehold, gas-heated via boiler and radiators, and benefits from uPVC double glazing (installed before 2002). EPC rating D and very cheap council tax help running costs, but the solid stone walls likely lack cavity insulation and the home will benefit from targeted energy and cosmetic upgrades.
This house will suit a first-time buyer or investor comfortable with modest-sized rooms and a straightforward refurbishment programme. The location gives easy commuting links, excellent mobile signal, and basic local amenities nearby — while broadband speeds are slow and the wider area shows higher deprivation levels.
View this property if you want a low-price foothold with clear potential: improve insulation, update kitchen and finishes, and add modern broadband to increase comfort or rental value.
3 bedroom terraced house for sale in Itton Street, Cwm, NP23 — £135,000 • 3 bed • 1 bath • 762 ft²
3 bedroom terraced house for sale in Stanfield Street, Ebbw Vale, NP23 — £100,000 • 3 bed • 1 bath • 926 ft²
3 bedroom terraced house for sale in Stanfield Street, Cwm, NP23 — £115,000 • 3 bed • 1 bath • 756 ft²
2 bedroom terraced house for sale in Stanfield Street, Ebbw Vale, NP23 — £100,000 • 2 bed • 1 bath • 722 ft²
3 bedroom terraced house for sale in Plas Islwyn, Cwmbran, NP44 — £150,000 • 3 bed • 1 bath • 898 ft²
3 bedroom terraced house for sale in Newport Road, CWMCARN, NEWPORT, NP11 — £157,995 • 3 bed • 1 bath • 793 ft²






































































