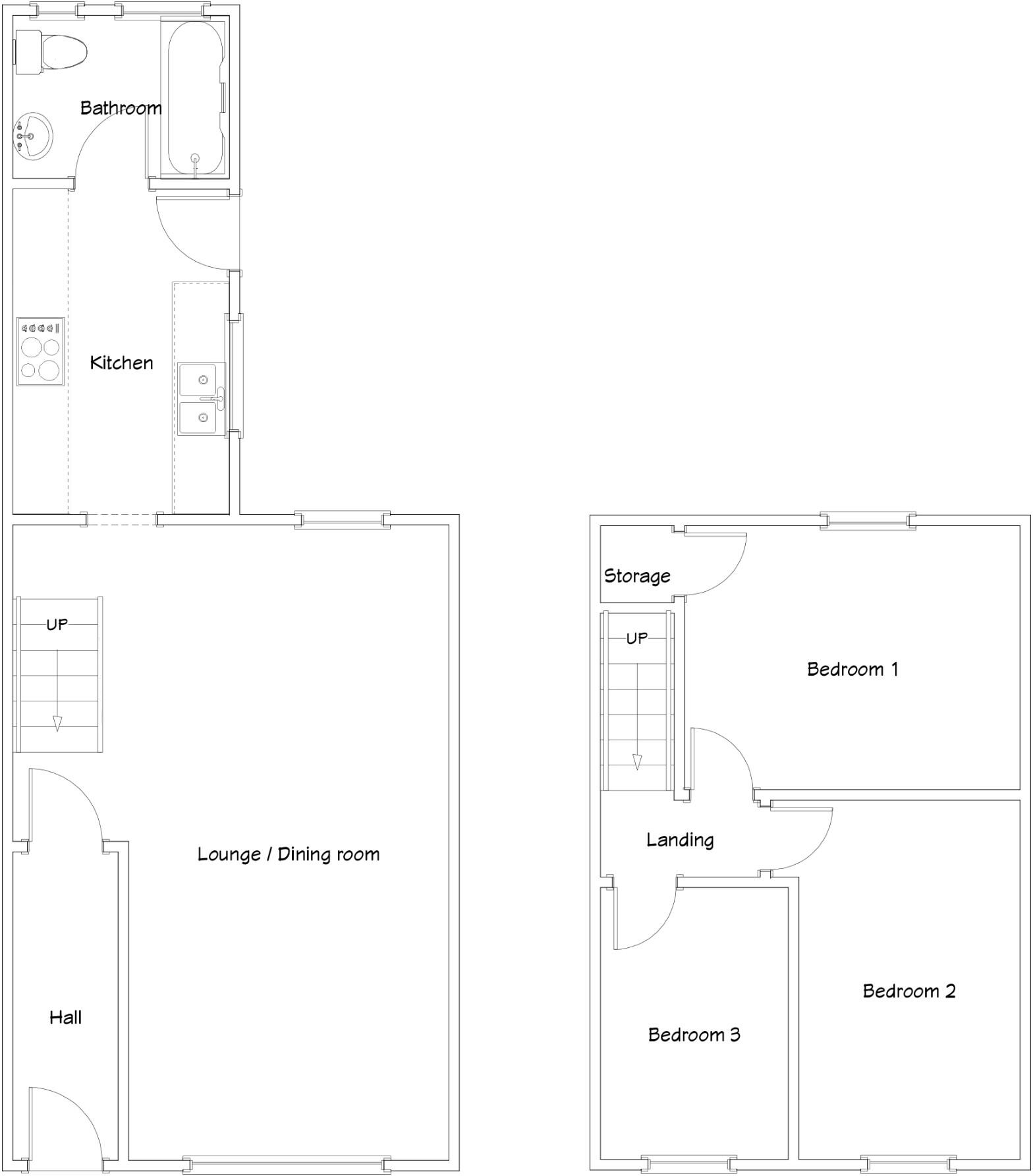
Compact three-bed with modern fittings and enclosed courtyard, ideal starter buyers.
Three bedrooms in a compact 793 sq ft layout
This compact three-bedroom terrace blends a traditional stone exterior with a contemporary interior, suited to first-time buyers seeking a ready-to-move-in home. The open-plan lounge/diner creates a roomy feel despite the modest overall footprint, and the upgraded kitchen and bathroom reduce immediate maintenance needs.
Practical features include an enclosed rear courtyard with outer storage, good mobile signal and fast broadband, and convenient access to nearby towns, schools and travel links. The property has one bathroom and approximately 793 sq ft of accommodation, so storage and living space are best suited to smaller households or those starting out.
Important points to note: the plot and rooms are small, the surrounding area scores as very deprived, and the tenure is not specified. These factors affect future running costs, resale considerations and potential mortgage options, so buyers should verify tenure and local services before committing.
3 bedroom terraced house for sale in Church Street, Blaina, NP13 — £110,000 • 3 bed • 1 bath • 718 ft²
3 bedroom terraced house for sale in Stanfield Street, Cwm, NP23 — £115,000 • 3 bed • 1 bath • 756 ft²
3 bedroom end of terrace house for sale in Parc Wenallt, Treharris, Merthyr Tydfil, CF46 5HX,, CF46 — £150,000 • 3 bed • 1 bath • 721 ft²
3 bedroom terraced house for sale in King Street, CWM, NP23 — £117,000 • 3 bed • 1 bath • 677 ft²
3 bedroom terraced house for sale in Carlyle Street, Abertillery, NP13 — £140,000 • 3 bed • 1 bath • 786 ft²
3 bedroom terraced house for sale in Grosmont Place, Croesyceiliog, Cwmbran, NP44 — £190,000 • 3 bed • 1 bath • 720 ft²


































































































