Well-placed for top schools, transport and family living.
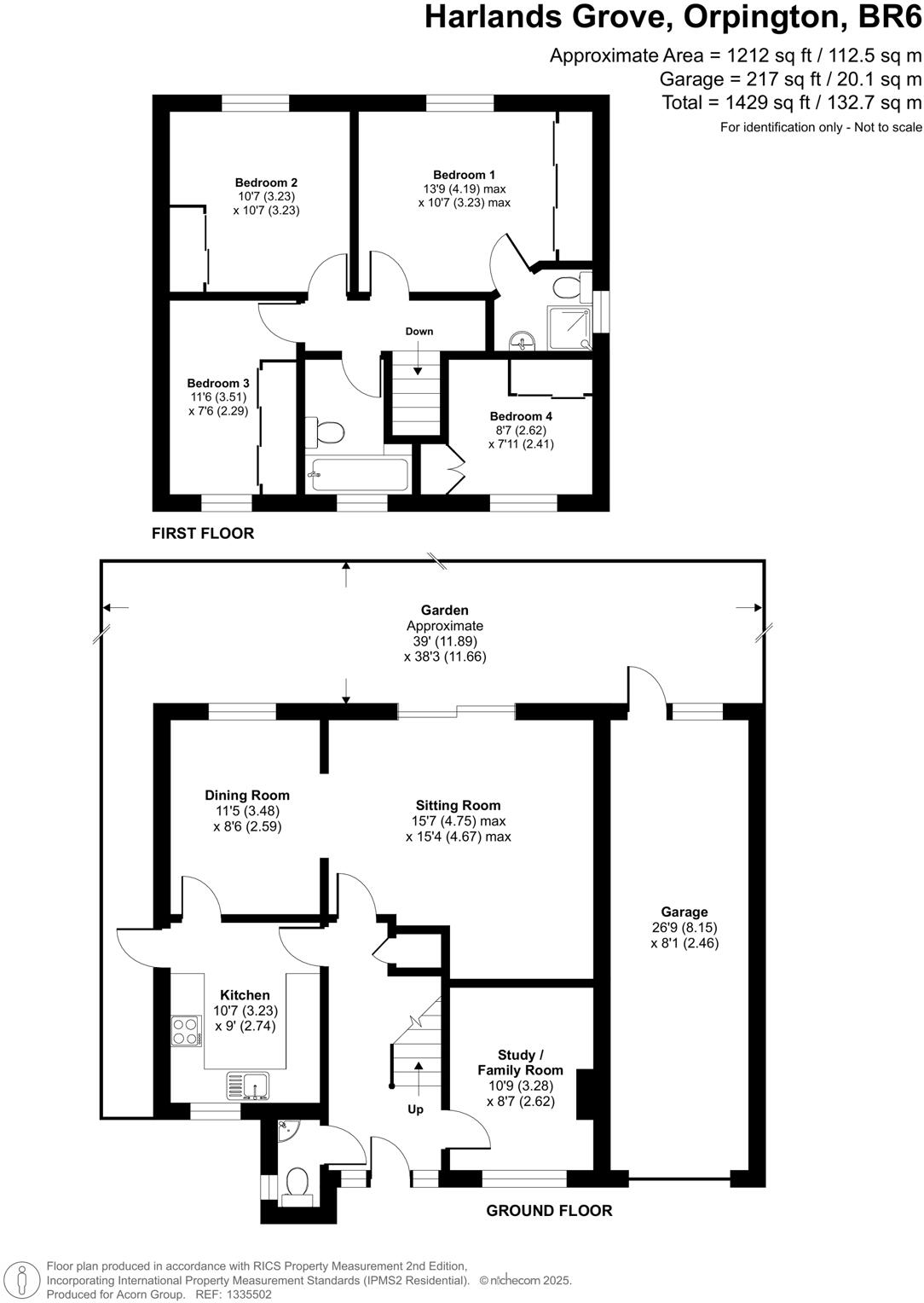
Four-bedroom detached family home in a cul-de-sac of six properties
Set at the end of a quiet six-house cul-de-sac, this well-cared-for four-bedroom detached home built in 1986 offers a practical layout for growing families. The ground floor has a flexible study/snug, modern fitted kitchen and a large living-dining sequence that opens onto a sunny, west-facing garden with patio, lawn and ornamental pond.
Upstairs are four fitted bedrooms, including an en-suite to the main bedroom, plus a separate family bathroom. Outside there is off-street parking, gated side access, and a tandem garage providing secure storage but limited simultaneous car access. The property benefits from double glazing and an Energy Efficiency Rating of C.
Location is a key strength: well-placed for highly regarded local schools (including Darrick Wood and Newstead Wood), regular buses and Orpington station with fast services to Central London, plus easy access to the M25. Local shops, cafés and green spaces are within easy reach.
Considerations: council tax is in the higher Band F and the wider local area scores as more deprived than average. Construction is a timber-frame type (as-built) with assumed insulation and the install dates for glazing and some services are not specified, so buyers should review service records and surveys. Overall, this is a spacious family home in a peaceful setting with good commuter and school links, suitable for buyers seeking long-term family accommodation and potential to update to personal taste.
4 bedroom detached house for sale in Long Acre, Orpington, BR6 — £695,000 • 4 bed • 1 bath • 1143 ft²
4 bedroom detached house for sale in State Farm Avenue, Orpington, Kent, BR6 — £725,000 • 4 bed • 2 bath • 1333 ft²
4 bedroom detached house for sale in Mere Close, Locksbottom, BR6 — £1,195,000 • 4 bed • 2 bath • 2790 ft²
4 bedroom detached house for sale in Hilda Vale Road, Orpington, BR6 — £950,000 • 4 bed • 2 bath • 1900 ft²
4 bedroom detached house for sale in Pilkington Road, Orpington, BR6 — £875,000 • 4 bed • 2 bath • 1506 ft²
4 bedroom detached house for sale in Briarswood Way, Orpington, BR6 — £725,000 • 4 bed • 2 bath • 1399 ft²


































































































