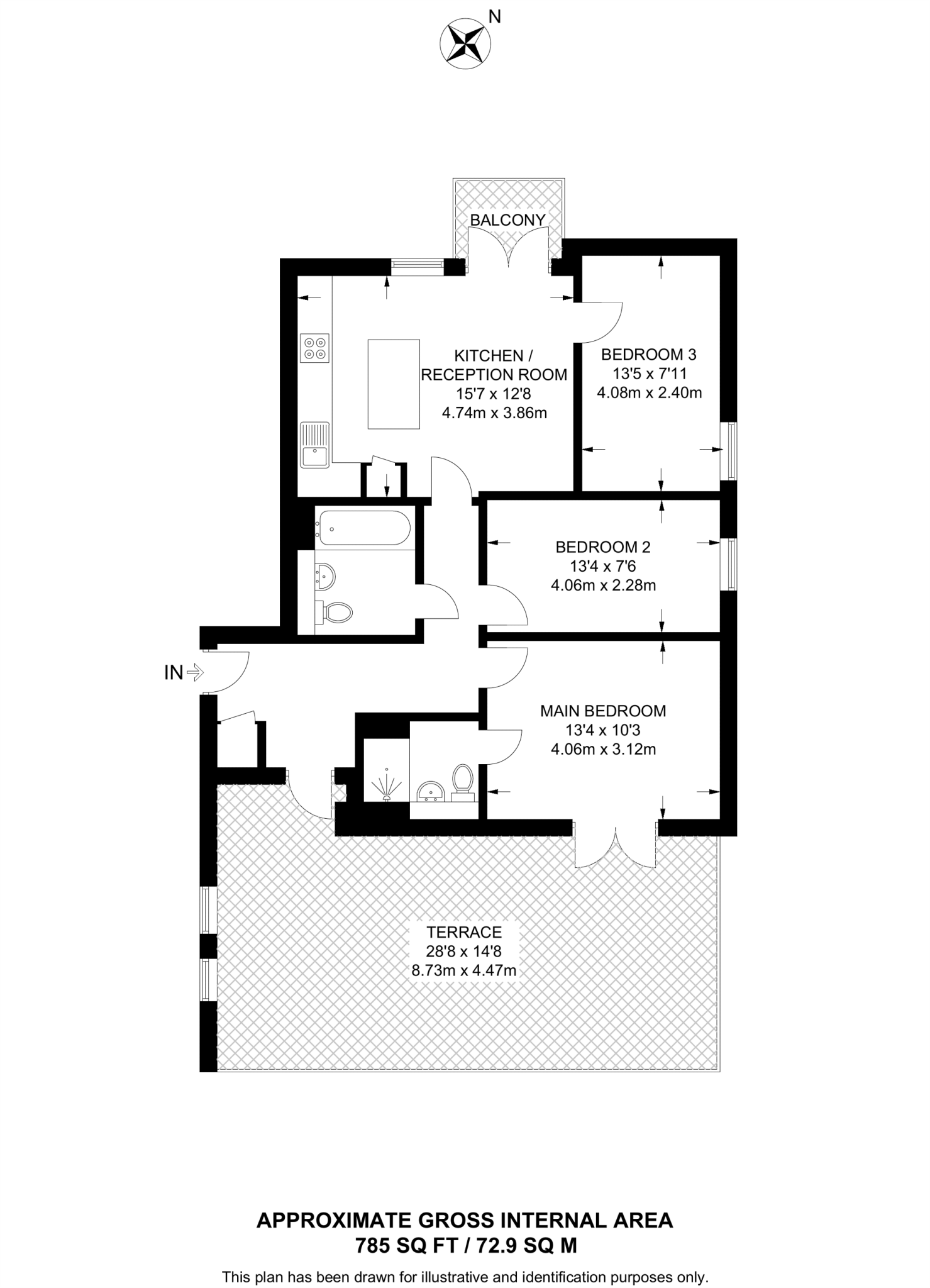
Three-bedroom apartment with rare outdoor space and secure parking near Elizabeth line.
- Direct river views from reception and balcony
- Private south-facing roof terrace plus riverside balcony
- Underground garage parking and concierge service
- Main bedroom with en suite; third room is flexible
- Reclaimed solid Canadian maple flooring throughout
- Built 2003–2006; double glazing and gas central heating
- Leasehold tenure—check lease term, service charges, ground rent
- Overall size described as small for a three-bedroom flat
Set on the Thames with direct river views, this three-bedroom apartment offers standout outdoor space and secure parking. A south-facing private roof terrace and a riverside balcony provide rare outdoor options for riverside living, while an open-plan reception with a stylish kitchen creates an airy social heart. The main bedroom has an en suite shower room; a flexible third room can serve as a bedroom or additional reception.
The building is a popular riverside development with concierge and underground garage parking, built in the early 2000s with double glazing and gas central heating. Reclaimed solid Canadian maple floors add character throughout. Transport links are strong — Woolwich Elizabeth line, DLR and rail connections are within easy reach — making the flat suitable for professionals commuting into central London.
Important practical notes: the property is leasehold — buyers should check the lease length, ground rent and service charges. The overall size is described as small for a three-bedroom apartment, so viewings are recommended to judge space for family needs. Otherwise, flooding and crime risks are very low, and the area is largely affluent and well-connected.
This apartment will appeal to buyers seeking riverside lifestyle and outdoor space close to fast transport links — ideal for commuter families or professionals wanting a modern home with entertaining terraces and secure parking.
2 bedroom flat for sale in Sark Tower, Thamesmead, London, SE28 — £360,000 • 2 bed • 2 bath • 813 ft²
2 bedroom flat for sale in Sark Tower, Thamesmead, London, SE28 — £310,000 • 2 bed • 2 bath • 920 ft²
2 bedroom flat for sale in Granary Mansions, Thamesmead, London, SE28 — £330,000 • 2 bed • 2 bath • 936 ft²
2 bedroom flat for sale in Tideslea Tower, Thamesmead, London, SE28 — £350,000 • 2 bed • 2 bath • 866 ft²
3 bedroom flat for sale in Tideslea Path, London, SE28 — £425,000 • 3 bed • 2 bath • 1100 ft²
2 bedroom flat for sale in Sark Tower, Thamesmead, London, SE28 — £370,000 • 2 bed • 2 bath • 871 ft²


























































































































































































































































































































































































































































































































































