High-floor apartment with superb transport links and private outdoor space.
Direct River Thames views and private balcony
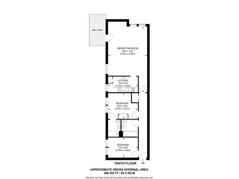
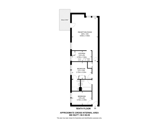
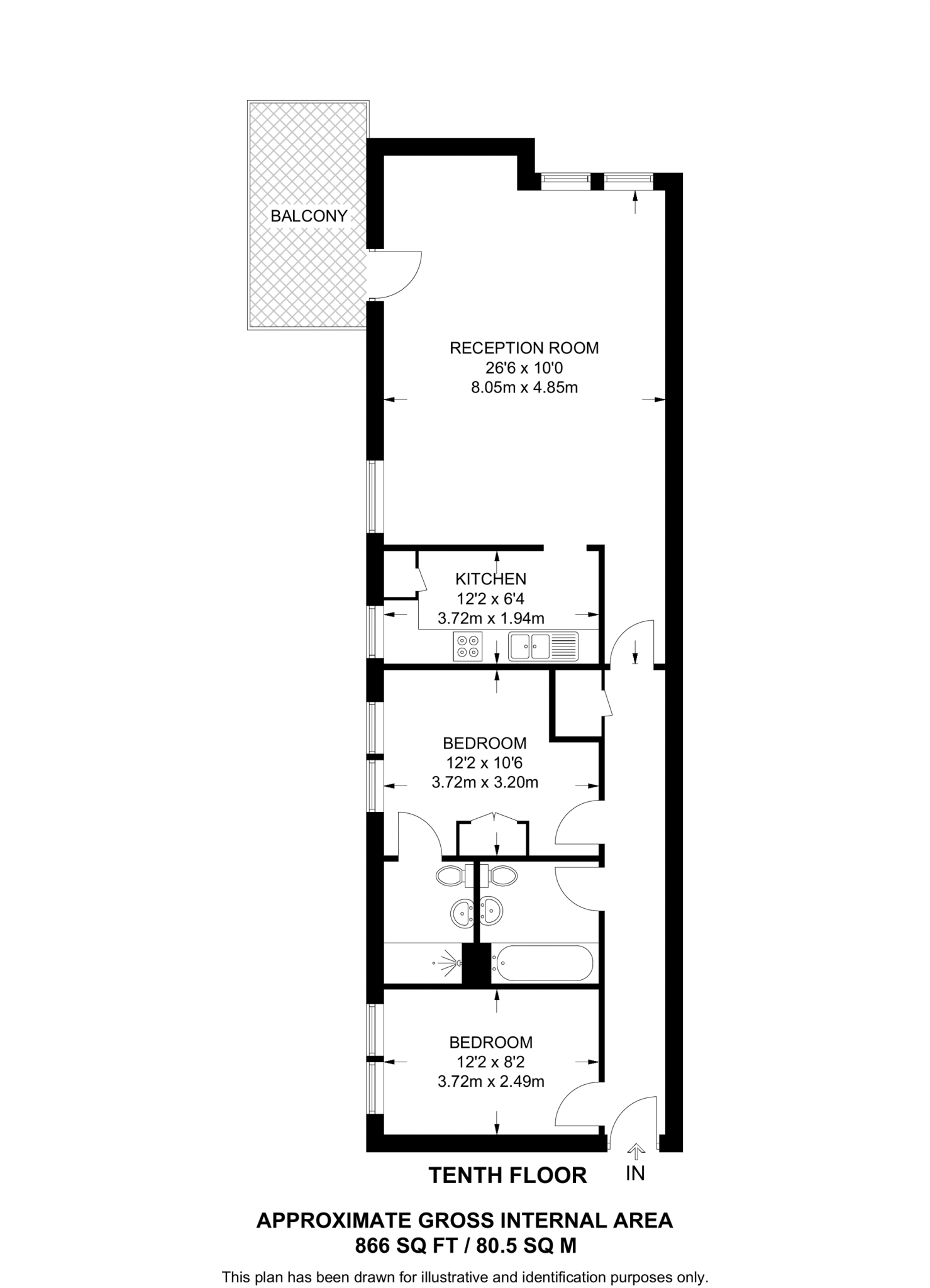
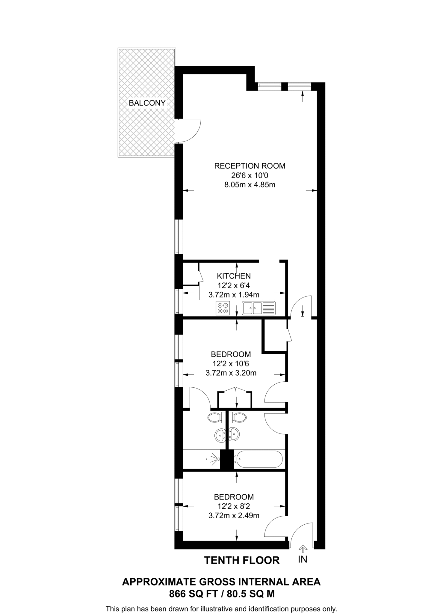
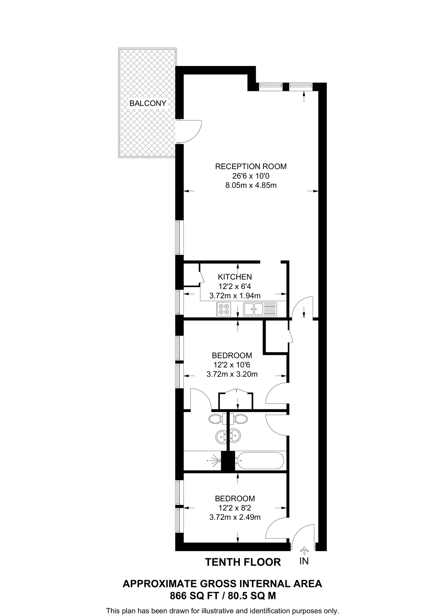
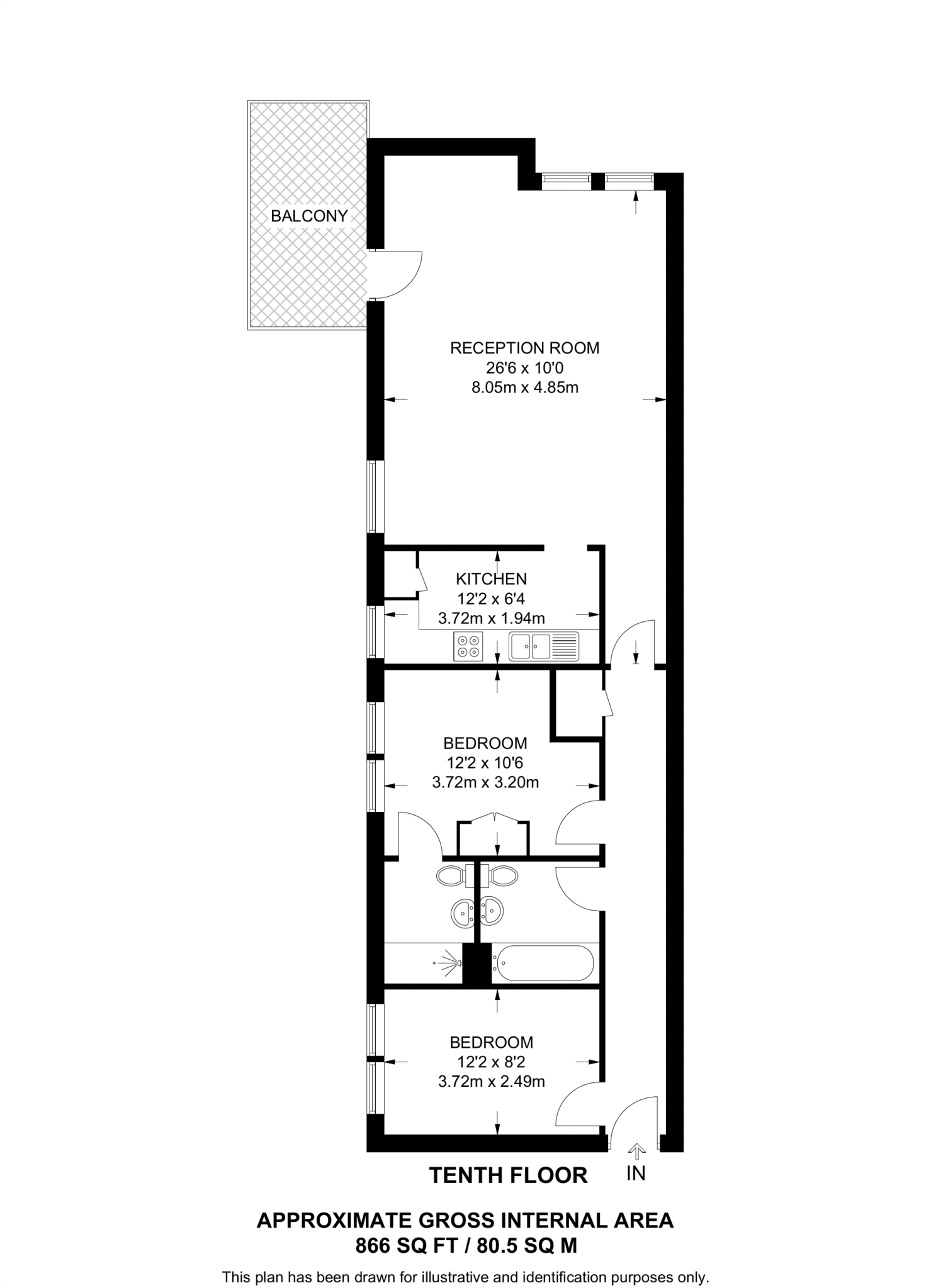
Set on the tenth floor of a well-regarded development, this two-bedroom flat delivers direct River Thames views and a private balcony. The bright dual-aspect reception and separate kitchen create clear living and dining zones, while the main bedroom benefits from an en suite shower room.
Practical strengths include concierge, off-street parking, a very long lease (975 years) and fast broadband availability — useful for commuters and home workers. Transport links are excellent: Woolwich Arsenal, DLR, Thames Clipper and the Elizabeth Line all provide quick routes into central London.
The building dates from the early 2000s and has double glazing, although the installation date is unknown. As a tenth-floor apartment, consider accessibility and reliance on lifts for daily living. Leasehold tenure applies and there is a small ground rent of £150 per year. Buyers should check service charges and any communal maintenance arrangements before committing.
2 bedroom flat for sale in Granary Mansions, Thamesmead, London, SE28 — £330,000 • 2 bed • 2 bath • 936 ft²
2 bedroom flat for sale in Sark Tower, Thamesmead, London, SE28 — £370,000 • 2 bed • 2 bath • 871 ft²
2 bedroom flat for sale in Sark Tower, Thamesmead, London, SE28 — £310,000 • 2 bed • 2 bath • 920 ft²
2 bedroom flat for sale in Sark Tower, Thamesmead, London, SE28 — £395,000 • 2 bed • 2 bath • 813 ft²
2 bedroom flat for sale in Duke Of Wellington Avenue, London, SE18 — £500,000 • 2 bed • 2 bath • 766 ft²
2 bedroom apartment for sale in Warrior Close, Thamesmead West, SE28 0NL, SE28 — £260,000 • 2 bed • 2 bath • 657 ft²










































































































































































































































































