Chain-free two-bed flat with ensuite, garage and lift, 0.4 miles from Stanmore Tube.
Chain-free two-bedroom first-floor flat with lift access
Master bedroom with ensuite; good-sized overall living space
Private balcony, garage and unallocated parking available
0.4 miles to Stanmore Underground — strong commuter appeal
Requires modernisation: dated carpets and some exposed wiring
Leasehold with 86 years remaining — check charges and legal costs
Council tax described as expensive for the area
Local crime levels are higher than average — consider security measures
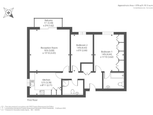
Set on the first floor of a low-rise red-brick block, this chain-free two-bedroom flat offers 878 sq ft of practical living space with a private balcony, garage and lift access. The master bedroom includes an ensuite, and the layout suits small families, sharers or first-time buyers seeking convenient suburban living close to transport.
The flat is 0.4 miles from Stanmore Underground station, with excellent mobile signal and fast broadband — useful for commuters and home workers. Communal grounds and on-site unallocated parking add convenience, while nearby schools include several rated Good and top 10% independent options.
The building dates from the 1980s and the apartment shows signs of everyday wear: dated carpets, an exposed wire noted in the living room and general modernization needed to taste. Council tax is described as expensive and the property is leasehold with 86 years remaining — buyers should confirm lease and service charge details.
The area is a mixed, family-focused neighbourhood with strong migrant and young ethnic communities; crime levels are higher than average locally. For buyers prioritising transport links, space and immediate availability (chain-free), this property represents a practical, affordable route into the HA7 market with scope to add value through refurbishment.
2 bedroom apartment for sale in Stanmore Hill, Stanmore, HA7 — £375,000 • 2 bed • 1 bath • 678 ft²
2 bedroom apartment for sale in White House Drive, Stanmore, HA7 — £360,000 • 2 bed • 1 bath • 857 ft²
2 bedroom flat for sale in 30 Marsh Lane, Stanmore, Greater London. HA7 4HG, HA7 — £425,000 • 2 bed • 2 bath • 888 ft²
2 bedroom apartment for sale in White House Drive, Stanmore, HA7 — £400,000 • 2 bed • 1 bath • 806 ft²
2 bedroom flat for sale in Albemarle Park, Stanmore, HA7 — £475,000 • 2 bed • 1 bath • 900 ft²
2 bedroom flat for sale in Aran Drive, Stanmore, HA7 — £400,000 • 2 bed • 1 bath • 849 ft²


















































































