**Standout Features:**
- Planning permission granted for two contemporary homes (Ref: S.23/0358/FUL)
- Elevated position with breathtaking views of the Newmarket Valley
- Each home designed for modern aesthetics and functionality
- Extensive plot size providing ample gardens and off-street parking
- Located just under a mile from Nailsworth’s amenities
**Summary:**
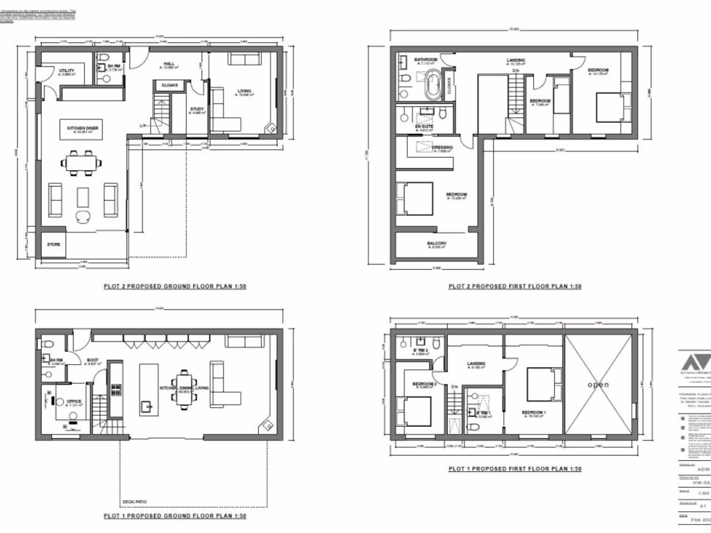
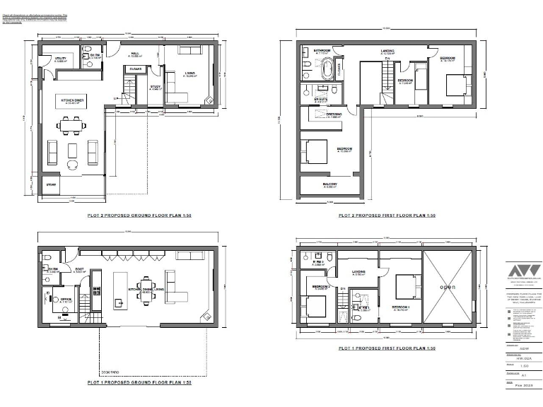
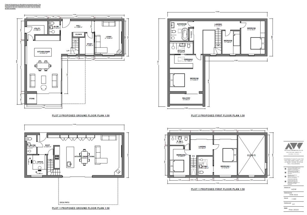
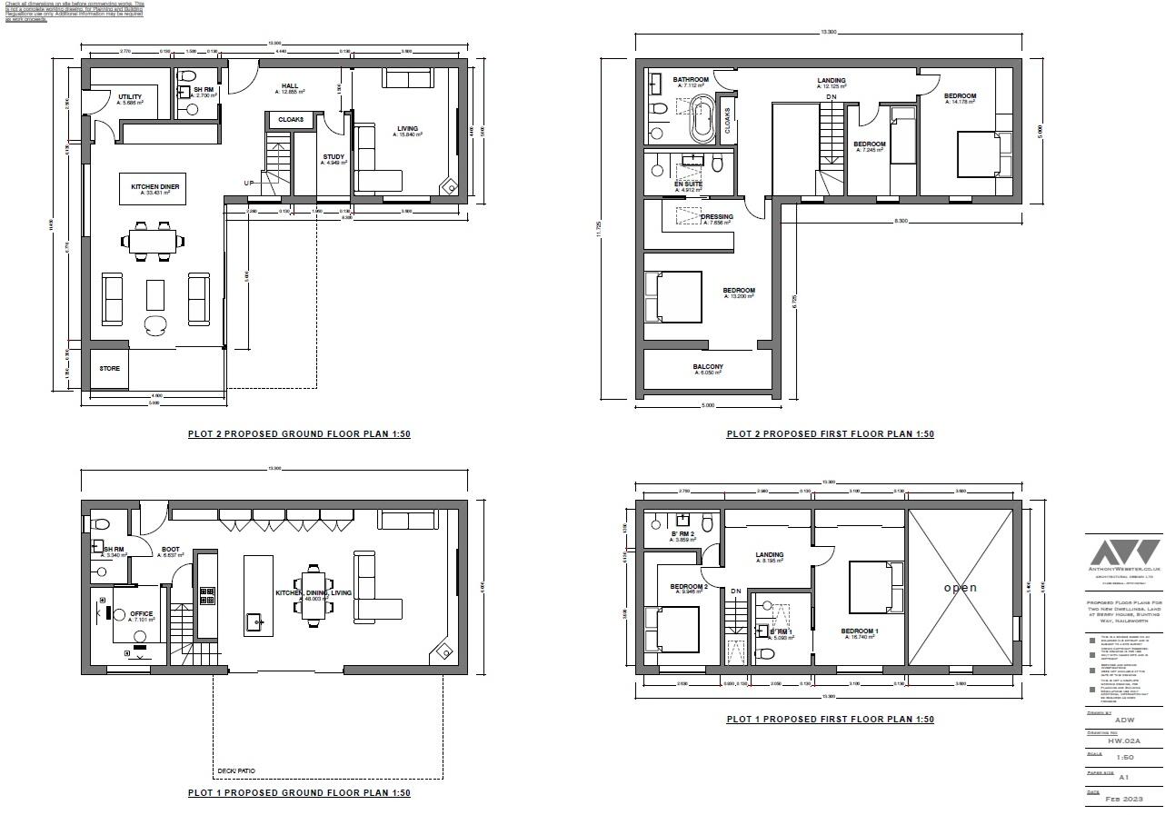
Unlock an exceptional opportunity with this expansive building plot located above Nailsworth, perfectly poised for two architect-designed contemporary homes. With planning permission in place, you can take advantage of remarkable designs that blend modern living with striking views across the Newmarket Valley. The larger proposed residence offers about 2,000 sq. ft. of superior living space, highlighting a grand kitchen/family room, luxurious principal suite with a balcony, and additional bedrooms that ensure comfort and privacy. The secondary home follows a similarly appealing layout, featuring a double-height living area and a principal bedroom with an en suite, promising an inviting retreat.
Nestled at the end of a serene, unmade track, this plot benefits from a truly picturesque setting while maintaining convenient access to Nailsworth, just a short distance away. Enjoy local shopping, delightful dining options, and essential services, all within reach. This is a perfect opportunity for builders and investors aiming to create unique residences in a desirable location. Don’t miss the chance to develop in this prime spot—schedule a visit today to appreciate the views and the potential firsthand!
Land for sale in Old Bristol Road, Nailsworth, Stroud, Gloucestershire, GL6 — £200,000 • 1 bed • 1 bath
Plot for sale in Thoresby Avenue, Tuffley, Gloucester, GL4 — £139,950 • 1 bed • 1 bath
Plot for sale in Tewkesbury Road, Newent, GL18 — £230,000 • 3 bed • 1 bath • 2000 ft²
Plot for sale in Yartleton Lane, May Hill, Longhope, GL17 — £349,950 • 4 bed • 1 bath
Plot for sale in Bushcombe Lane, Woodmancote, Cheltenham, GL52 — £600,000 • 4 bed • 1 bath • 3000 ft²
3 bedroom detached house for sale in 3 Powis Court, Dark Lane, Nailsworth, GL6 — £525,000 • 3 bed • 2 bath • 1613 ft²


























































































































