Large open-plan living with private garden, ideal for first-time buyers.
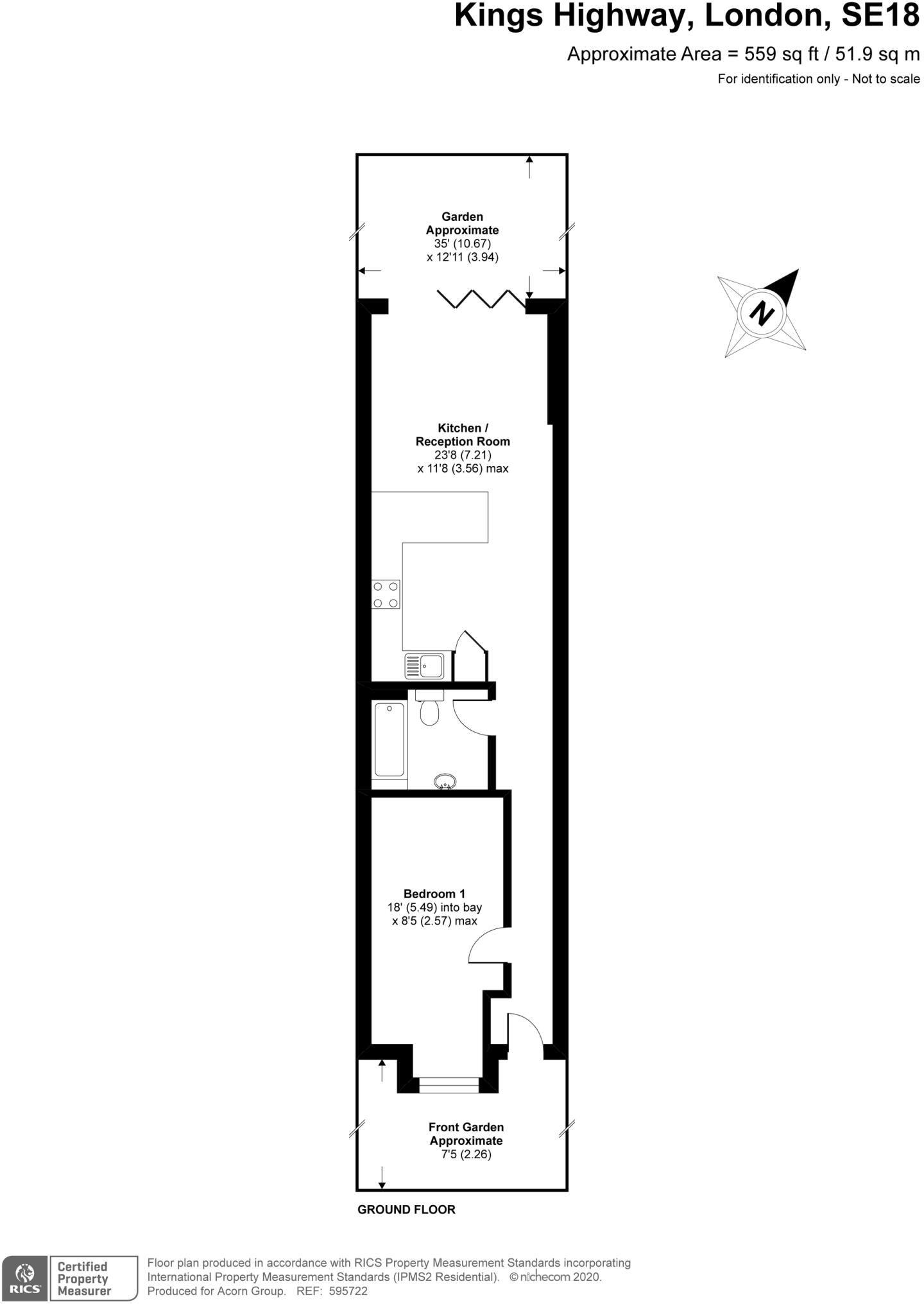
23ft open-plan kitchen/living room with bi-fold doors to garden
Private 35ft rear garden with decked patio and lawn
18ft double bedroom with double glazing
Modern fitted kitchen and fully tiled three-piece bathroom
Long lease (994 years); no ground rent or service charge
Chain free sale for quicker completion
Electric room heaters — higher running costs than gas
Area flagged as deprived with above-average local crime
Bright one-bedroom maisonette offering generous rooms and a private rear garden, well suited to first-time buyers seeking space and convenience. The main living area stretches 23ft into an open-plan kitchen/living room with bi-fold doors that open onto a 35ft garden, bringing natural light and a useful outdoor area for plants or entertaining.
The property combines period exterior character with a modern fitted kitchen and contemporary bathroom. An 18ft double bedroom and double glazing add comfort; the flat is chain free and comes with a long lease (994 years remaining), and no ground rent or service charge reported — practical advantages for buyers seeking low ongoing costs.
Practical considerations include electric room heating rather than gas central heating, and the wider area scores as deprived with above-average local crime — factors to weigh for security and running costs. Transport and local amenities are convenient, with bus routes, local shops and access toward Abbey Wood Elizabeth Line nearby, making commutes and everyday errands straightforward.
Overall this maisonette offers roomy accommodation and outside space at an accessible price point, but buyers should consider heating costs and neighbourhood indicators when budgeting and deciding on a viewing.
2 bedroom maisonette for sale in Glyndon Road, London, SE18 7PA, SE18 — £325,000 • 2 bed • 1 bath • 801 ft²
1 bedroom ground floor flat for sale in Herbert Road, Plumstead, London, SE18 3QE, SE18 — £300,000 • 1 bed • 1 bath • 579 ft²
2 bedroom flat for sale in Swingate Lane, Plumstead Common, SE18 — £275,000 • 2 bed • 1 bath • 529 ft²
2 bedroom maisonette for sale in Churchbury Road, London, SE9 — £325,000 • 2 bed • 1 bath • 476 ft²
2 bedroom maisonette for sale in Manthorp Road, London, SE18 — £390,000 • 2 bed • 1 bath • 869 ft²
1 bedroom apartment for sale in Gurdon Road, Charlton, SE7 — £325,000 • 1 bed • 1 bath • 553 ft²














































































































