WD18 0PN - High street retail property for sale in 35 and 35a Market S…

View on Property Piper

High street retail property for sale in 35 and 35a Market Street, Watford, WD18 0PN, WD18

Summary - 35, MARKET STREET WD18 0PN

1 bed 1 bath Retail Property (high street)

**Standout Features:**
- Ground floor shop with basement storage, let to a convenience store until January 2035
- Spacious 4-bedroom self-contained flat above, currently let on an assured shorthold tenancy
- Desirable location within walking distance to Atria shopping centre and transport links
- Potential for development or subdivision into smaller flats, subject to planning approval
- Freehold investment available for £795,000

**Summary:**
Discover a unique investment opportunity at 35 and 35a Market Street, Watford, featuring a prominent ground floor retail space, currently leased to a profitable convenience store until 2035, alongside a substantial 4-bedroom apartment above. Perfectly positioned in Watford's bustling town center, this property is just minutes from shopping, dining, and transport options, making it ideal for both residential tenants and commercial visibility.

The flat's generous layout and the property’s potential for subdivision can open avenues for increased rental income or modernization endeavors. While the investment offers promising returns, the property does present some considerations: the remaining lease term may pose challenges for mortgage financing, and planning for alterations will require local authority approval. Given its competitive price point, this property is an excellent prospect for investors or families looking to capitalize on Watford's vibrant community—don’t miss out on this exceptional chance!

Property Details

Brochure Descriptions

Image Descriptions

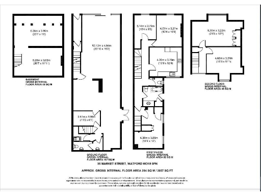
Floorplan Description

Rooms

Textual Property Features

Detected Visual Features

Nearby Schools

Nearest Bars And Restaurants

,,,,}

Nearest General Shops

,,}

Nearest Grocery shops

,,}

Nearest Supermarkets

,,}

Nearest Religious buildings

,,}

Nearest Medical buildings

,,,}

Nearest Airports

}

Nearest Leisure Facilities

,,,,}

Nearest Tourist attractions

,,}

Nearest Train stations

,,,,}

Nearest Bus stations and stops

,,,,}

Nearest Hotels

,,}

Tags

Local Market Stats

AirBnB Data

Similar Properties

Meta

High Res Images

Compatible Images

Low res Images

Thumbnails

Raw Images

High Res Floorplan Images

Compatible Floorplan Images

Low res Floorplan Images

FloorplanImages Thumbnail

Raw Floorplan Images