**Standout Features:**
- Freehold unit with a commercial shop + a 3-bedroom flat
- Currently generating £31,560 in combined rental income
- Newly renovated ground floor with excellent business potential
- Located in the thriving area near Atria Watford
- Separate access for residential unit; potential for HMO development
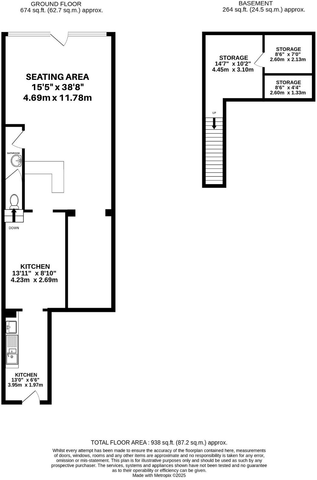
This expansive Victorian commercial property in Watford (postcode WD17 2LA) presents an exceptional investment opportunity perfect for savvy investors or those looking for a manageable dual-income property. The ground floor shop, newly renovated, boasts period features and includes a spacious kitchen and storage basement, leasing for £1,500 per calendar month on a recently renewed 15-year lease.
Above, the 3-bedroom residential flat—well-sized and with its own access—offers versatility with the potential to rent rooms individually, maximizing income. With a total space of 1,764 square feet, this property also benefits from its proximity to local amenities, excellent transport links, and a vibrant cosmopolitan atmosphere, making it attractive to future tenants.
While the area presents average crime rates and medium-quality local schools, the potential returns on rental income here suggest a robust investment, bolstered by fast broadband speeds and excellent mobile connectivity. Don’t miss out on this rare chance to secure a dual-income property with both immediate cash flow and room for future growth. Act quickly to seize this opportunity!
High street retail property for sale in St. Albans Road, Watford, WD24 — £675,000 • 3 bed • 2 bath
Commercial property for sale in Queens Road, Watford, WD17 — £580,000 • 3 bed • 2 bath
Commercial property for sale in Queens Road, Watford, UK, WD17 2LA, WD17 — £600,000 • 3 bed • 1 bath • 2050 ft²
4 bedroom block of apartments for sale in 138A-140 St. Albans Road, Watford, Hertfordshire WD24 4FT, WD24 — £525,000 • 4 bed • 1 bath • 1410 ft²
Commercial property for sale in St Albans Road, Watford, WD24 — £600,000 • 2 bed • 1 bath • 1270 ft²
Commercial property for sale in Chalk Hill, Bushey, Watford, WD19 — £475,000 • 1 bed • 1 bath • 761 ft²


























































































