Character croft on 2.6 acres with garage accommodation and equine potential.
- Converted croft with four bedrooms and flexible living spaces
- Approximately 2.6 acres including stables and grazing
- 0.3 acre de-crofted; extension to 1 acre applied for (planning pending)
- Large garage/workshop with insulated accommodation above
- Practical equine facilities and additional outbuildings
- Oil central heating; EPC band E
- Slow broadband and average mobile signal in this remoter area
- Council tax above average; rural access to services
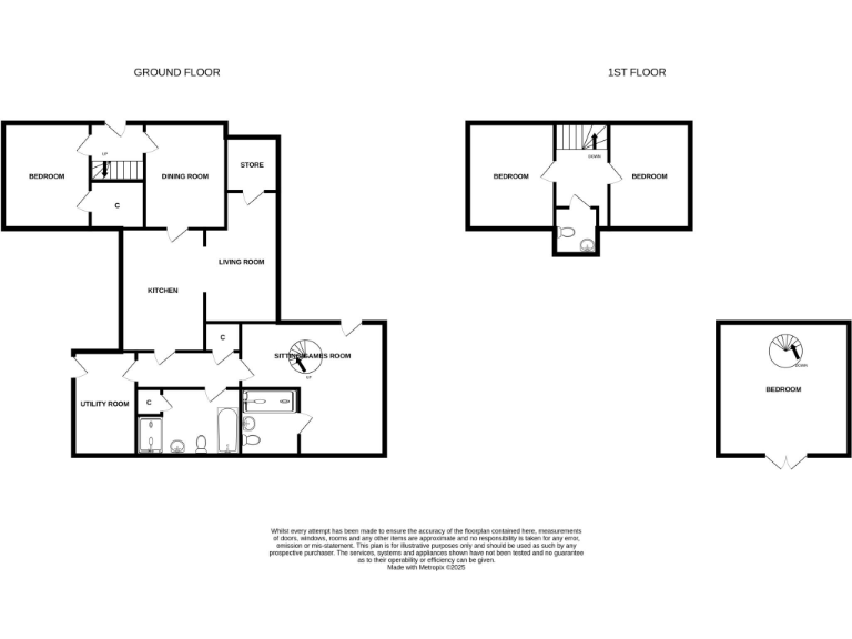
A beautifully converted croft set in about 2.6 acres, offering a rare mix of character, practical outbuildings and flexible accommodation. The main house provides four bedrooms, two bathrooms, formal dining, a kitchen-family room and a home office — well suited to family life or multi-use living.
A large double garage/workshop (9m x 7m) with fully insulated accommodation above includes a lounge, bedroom and shower room. That space could serve guests, extended family or a holiday-let/income unit subject to any necessary permissions. The property includes established stables and grazing, making it practical for equine use.
Land & planning: 0.3 acre is already de-crofted; an application to extend this to 1 acre is in place. The wider holding of approximately 2.6 acres and additional outbuildings offer clear development or diversification potential, but any change of use or building work will require consent.
Notable practical points: heating is oil-fired and the EPC is band E. Broadband speeds are slow and mobile signal is average. Council tax is above average. The location is rural and classed as a remoter community; access to services is limited compared with urban areas, though Inverness is around a ten-minute commute.
4 bedroom detached house for sale in FoxHole, Beauly, IV4 — £450,000 • 4 bed • 1 bath • 2612 ft²
4 bedroom detached house for sale in Croftnacreich, North Kessock, Inverness, IV1 — £375,000 • 4 bed • 2 bath
4 bedroom detached house for sale in Swordale Road, Evanton, IV16 — £450,000 • 4 bed • 2 bath
4 bedroom detached house for sale in Lochview, Knockfarrel, Dingwall, IV15 — £435,000 • 4 bed • 2 bath • 1270 ft²
3 bedroom cottage for sale in Wood of Brae, Balblair, IV7 — £350,000 • 3 bed • 2 bath • 4337 ft²
4 bedroom detached house for sale in Tomvoit, Gorthleck, IV2 6UJ, IV2 — £460,000 • 4 bed • 3 bath • 1970 ft²










































































































































