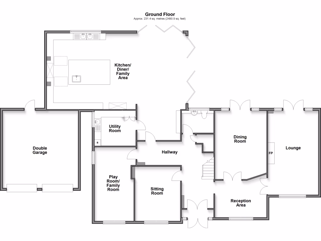
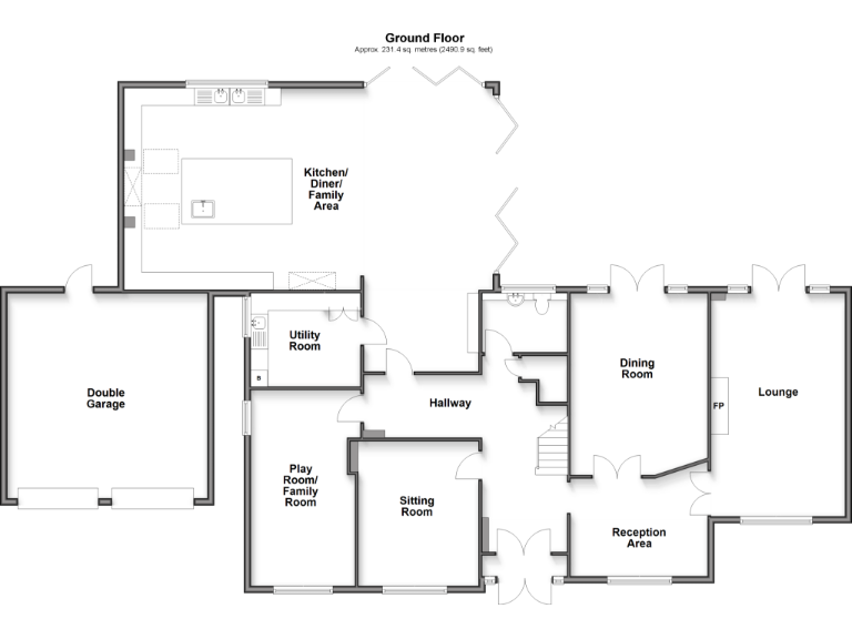
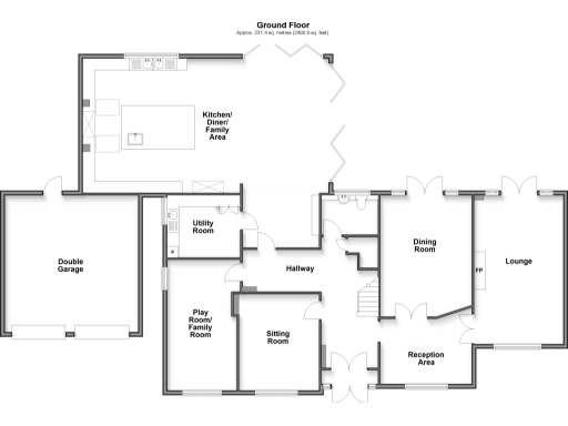
Spacious five-bedroom family house with huge open-plan kitchen and extensive private gardens.
- 33ft bespoke kitchen/diner/family room with bifold doors and apex roof
- Principal bedroom with dressing room and en-suite wet room
- Generous 21ft lounge plus additional sitting and play rooms
- Very large private rear and front gardens with decking areas
- Double garage and spacious gravel driveway providing ample parking
- Freehold tenure with excellent mobile signal and fast broadband
- Council tax described as quite expensive; local crime is average
- Wider area shows higher levels of deprivation (local context)
Set on a very large plot in a sought-after village, this extended five-bedroom detached house is designed around family life and entertaining. The standout 33ft kitchen/diner/family area, with apex roof and bifold doors, creates a bright, sociable heart to the house, while a generous 21ft lounge and separate sitting room provide comfortable everyday living spaces.
The principal bedroom benefits from a dressing room and en-suite wet room; four further bedrooms and flexible reception rooms offer space for guests, home offices or children’s play. Practical features include a utility room, cloakroom, double garage and ample driveway parking. Digital connectivity is strong with excellent mobile signal and fast broadband speeds.
Buyers should note some practical considerations: council tax is described as quite expensive and the wider area shows higher levels of deprivation; local crime is average. The property is freehold and positioned in a village with good primary and secondary schools nearby, making it well suited to growing families seeking rural character with convenient links to surrounding towns.
Overall, this is a substantial family residence offering versatile accommodation, large outdoor space and a showstopping kitchen/diner — ideal for buyers wanting long-term living potential in a well-connected village location.
4 bedroom detached house for sale in Broadview Avenue, Rainham, Gillingham, Kent, ME8 — £800,000 • 4 bed • 2 bath • 1755 ft²
6 bedroom detached house for sale in The Street, Hartlip, Sittingbourne, Kent, ME9 — £1,200,000 • 6 bed • 2 bath • 2252 ft²
5 bedroom detached house for sale in The Street, Borden, Sittingbourne, Kent, ME9 — £740,000 • 5 bed • 3 bath • 1712 ft²
4 bedroom detached house for sale in Lower Rainham Road, Rainham, Gillingham, Kent, ME8 — £650,000 • 4 bed • 2 bath • 1658 ft²
5 bedroom detached house for sale in Maidstone Road, Chatham, Kent, ME4 — £850,000 • 5 bed • 3 bath • 1706 ft²
4 bedroom detached house for sale in Lower Hartlip Road, Hartlip, Sittingbourne, Kent, ME9 — £675,000 • 4 bed • 2 bath • 1400 ft²






















































































































