**Standout Features:**
- Character-filled 1930s detached house
- Spacious 1.21-acre plot, offering privacy and outdoor space
- Chain-free sale in a highly sought-after village
- Multiple reception rooms and six bedrooms, ideal for families
- Established gardens with historical charm
**Potential Concerns:**
- Built without insulation (assumed)
- Slightly average-sized overall but ample rooms
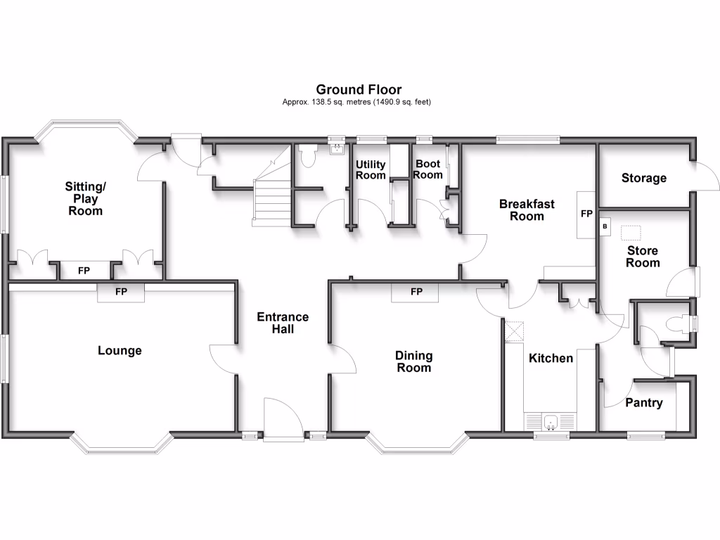
Discover the perfect blend of comfort and character in this stunning 1930s detached house, nestled in a picturesque village surrounded by lush greenery. Set on a substantial **1.21-acre plot**, this gem features multiple spacious living areas, high ceilings, and charming original details, inviting you to create a warm family sanctuary. With **six bedrooms** and versatile spaces that can adapt to your needs, the floor plan promotes both relaxation and togetherness.
The enchanting gardens present an idyllic backdrop for gatherings, while the gravel driveway enhances privacy by positioning the home well back from the road. You'll appreciate the historical context of this residence, cherished by the same family for over **67 years**—creating a sense of warmth and stability.
Enjoy the luxuries of **fast broadband** and **excellent mobile signal**, along with local amenities and good-rated schools just a short distance away. While the property requires some updates, including potential insulation improvements, its charm and future potential are undeniable. Don't miss out on this rare opportunity—homes like this in a desirable village setting are sought after and won't last long! Seize your chance to make this beautiful house your forever home.
5 bedroom detached house for sale in Mount Lane, Hartlip, Sittingbourne, Kent, ME9 — £1,275,000 • 5 bed • 3 bath • 2897 ft²
3 bedroom detached house for sale in Hartlip Hill, Hartlip, Sittingbourne, Kent, ME9 — £485,000 • 3 bed • 1 bath • 1131 ft²
4 bedroom detached house for sale in Spade Lane, Hartlip, Sittingbourne, Kent, ME9 — £850,000 • 4 bed • 3 bath • 2132 ft²
5 bedroom detached house for sale in The Street, Borden, Sittingbourne, Kent, ME9 — £740,000 • 5 bed • 3 bath • 1712 ft²
5 bedroom detached house for sale in Harvel Street, Meopham, Gravesend, Kent, DA13 — £850,000 • 5 bed • 2 bath • 1895 ft²
4 bedroom detached house for sale in Wallbridge Lane, Upchurch, Kent, ME8 — £500,000 • 4 bed • 1 bath • 1189 ft²


































































































































