Roomy three-bedroom home with sunny conservatory and off-street parking.
Chain-free detached village house on decent corner plot
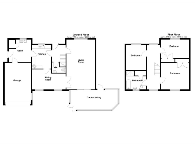
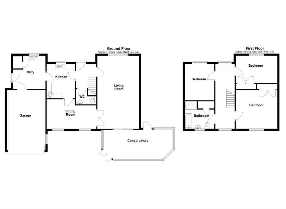
Tyn y Ddol is a spacious three-bedroom detached house in Penybontfawr, offered chain free and set on a decent plot with elevated countryside views. The home has generous principal rooms — a large lounge with log burner, separate dining room and a glazed sunroom that floods the rear with light. Practical spaces include a large utility room and an integral garage with loft access. Solar panels are present and the property benefits from double glazing and cavity-wall insulation (assumed).
The layout will suit families or buyers seeking village life: three double bedrooms with good built-in storage, a bathroom with separate bath and walk-in shower, and flexible downstairs space for dining or a snug. Off-street parking for several vehicles and established gardens with mature screening give privacy and outdoor space for children, pets or potting. Broadband and mobile signals are average; the village offers local amenities and a school within walking distance, with Oswestry a short drive away.
Buyers should note a few material points: heating is oil-fired via boiler and radiators, which can have higher running costs and fuel delivery requirements. There is a single main bathroom for three bedrooms. The property dates from the early 1990s (1991–1995) and, while well maintained, may benefit from targeted modernisation in parts (kitchen and some fittings). The wider area scores as very deprived, which may affect resale and local services.
Overall this is a roomy, well-positioned family home offering immediate occupancy with scope to update and add value. It will appeal to purchasers prioritising space, village location and countryside outlook rather than a fully modernised urban residence.
4 bedroom detached house for sale in Penybontfawr, SY10 — £400,000 • 4 bed • 2 bath • 1276 ft²
3 bedroom detached house for sale in Penybontfawr, Oswestry, Powys, SY10 — £154,500 • 3 bed • 1 bath • 908 ft²
4 bedroom detached house for sale in Bryn Derw, Park Street, Llanrhaeadr Ym Mochnant, SY10 — £450,000 • 4 bed • 3 bath • 1495 ft²
3 bedroom detached bungalow for sale in Pen Y Maes, Llanfechain, SY22 — £330,000 • 3 bed • 1 bath • 926 ft²
4 bedroom detached house for sale in Penybontfawr, Oswestry, SY10 — £370,000 • 4 bed • 1 bath • 1431 ft²
2 bedroom cottage for sale in Llanarmon Dyffryn Ceiriog, Llangollen, LL20 — £230,000 • 2 bed • 1 bath • 1397 ft²


























































































