**Standout Features:**
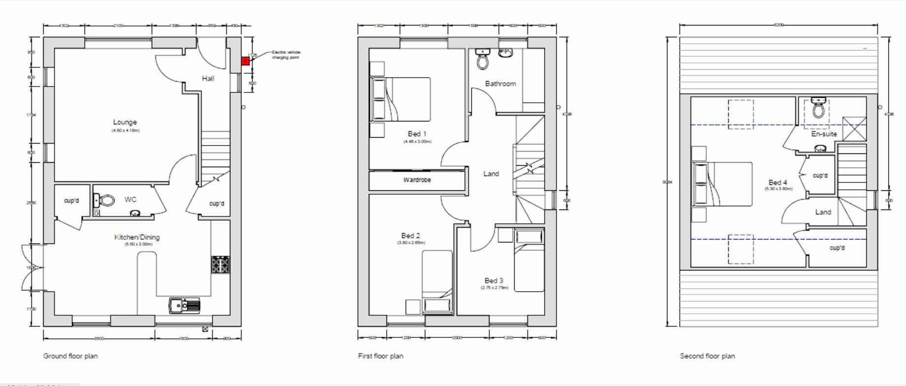
- **Planning Permission**: Approval granted for a modern 4-bedroom, 3-storey detached home.
- **Sizeable Plot**: Approximately 225 sq meters, perfect for a self-build.
- **Rural Outlook**: Scenic views at the rear, adding charm and tranquility.
- **Utility Connection**: Water supply set to be connected in early 2024.
- **Access and Location**: Private access over neighboring property, positioned on the edge of a growing village with quick access to A1.
**Notable Considerations:**
- **Covenants**: Existing restrictive covenants; legal advice encouraged.
- **Current Amenities**: Local conveniences such as a supermarket, pharmacy, and schools are nearby.
This exceptional building plot offers a prime opportunity for anyone looking to create their dream family home or invest in a desirable location. With detailed planning permission in place, buyers can start envisioning their future in this spacious 4-bedroom property, all set against a picturesque rural landscape. The village is rapidly developing, providing a blend of peace and access to modern amenities—a great choice for families or investors alike. Act quickly, as this unique opportunity to build your vision in a charming location won't last long!
Plot for sale in Fair View, Esh Winning, Durham, DH7 — £180,000 • 1 bed • 1 bath
Plot for sale in Building Plot 3 at Warwick Gardens, Byers Green, DL16 — £50,000 • 1 bed • 1 bath
Plot for sale in Dunelm Stables, Thornley, Durham, DH6 3BN, DH6 — £110,000 • 1 bed • 1 bath
Land for sale in Paradise Lane, Witton Park, Bishop Auckland, DL14 — £110,000 • 1 bed • 1 bath • 645 ft²
Land for sale in Development Site at Foster Terrace, Foster Terrace, Croxdale, Durham, DH6 — £150,000 • 1 bed • 1 bath
Land for sale in Residential Plot, St Oswald's Drive, Durham, DH1 — £275,000 • 1 bed • 1 bath






























