Move-in ready two-bedroom home with garden and parking close to town.
Victorian end-of-terrace with period brick façade
Two bedrooms and open-plan lounge-dining layout
Major recent works: rewiring, new roof, modern boiler
Mostly new double glazing and replastered interiors
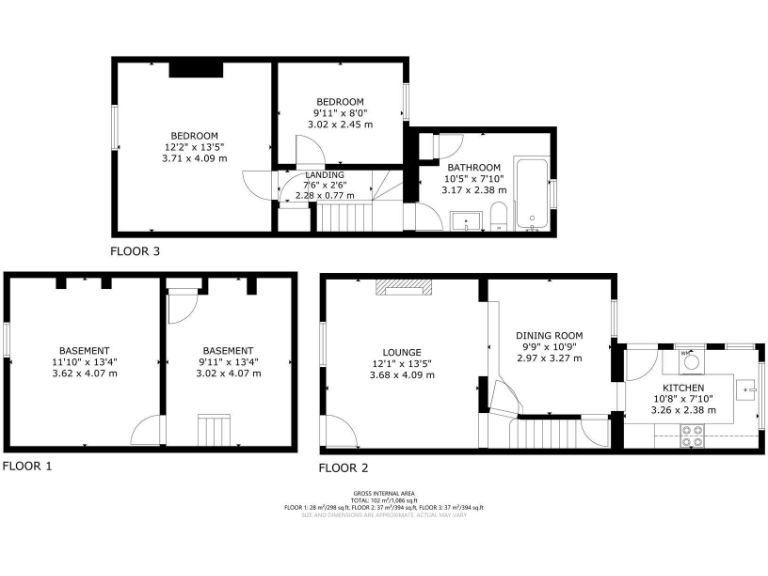
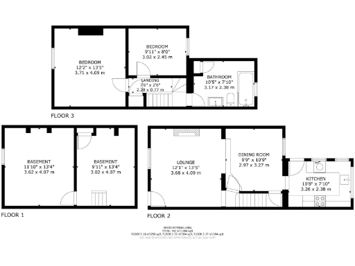
Useful basement providing extra storage or home workspace
Generous private rear garden with good privacy
Shared side access gives off-street parking (shared use)
Slow broadband speeds in the area may affect home working
Occupying a favoured spot a short walk from Hailsham town centre, this two-bedroom Victorian end-of-terrace blends period character with recent practical upgrades. The front lounge flows into an open-plan dining area and kitchen, creating a social ground floor that suits first-time buyers or young couples. A useful basement adds storage or workspace without reducing living space above.
Major works have already been carried out: full rewiring, a new roof, largely replastered interiors, mostly new double glazing and a modern boiler — meaning immediate maintenance concerns are limited and the home is genuinely move-in ready. The bathroom is modern and the bedrooms are comfortably proportioned for the property’s size.
Outside, the generous rear garden offers privacy and room for gardening or entertaining, while a shared side access provides off-street parking — a rare convenience for this type of cottage. The property is within easy walking distance of shops, parks, bus services and local schools, making everyday life convenient without needing a car for short journeys.
A few practical points to note: the plot is small despite a generous rear garden relative to similar terraces, and broadband speeds in the area are slow, which may affect home working. Overall, this cottage presents a low-maintenance, characterful starter home with sensible recent upgrades and immediate usability.
2 bedroom terraced bungalow for sale in Gordon Road, Hailsham, BN27 — £230,000 • 2 bed • 1 bath • 635 ft²
2 bedroom semi-detached house for sale in Ersham Road, Hailsham, BN27 — £200,000 • 2 bed • 1 bath • 837 ft²
3 bedroom semi-detached house for sale in Victoria Road, Hailsham, BN27 — £335,000 • 3 bed • 1 bath • 1115 ft²
2 bedroom terraced house for sale in Gordon Road, Hailsham, BN27 — £215,000 • 2 bed • 1 bath • 528 ft²
2 bedroom end of terrace house for sale in Salehurst Road, Eastbourne, BN21 — £289,950 • 2 bed • 1 bath • 956 ft²
2 bedroom terraced house for sale in Leopold Road, Bexhill-on-Sea, TN39 — £269,950 • 2 bed • 1 bath • 880 ft²






























































