Central Larbert position, walking distance to rail and local schools.
• Detached 1960s two-storey villa with private front and rear gardens
• Long driveway leading to single garage
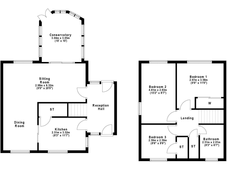
• Sitting room over 20ft with sliding doors to conservatory
• Three bedrooms and a large family bathroom with separate shower
• Gas central heating and double glazing present
• Requires full modernisation and updating throughout
• Above-average council tax; local area shows signs of deprivation
• Fast broadband and excellent mobile phone signal
This 1960s detached villa in central Larbert offers a spacious sitting room, separate dining room and a rear conservatory, all set within private front and rear gardens. A long driveway leads to a single garage and there is practical storage throughout. Gas central heating and double glazing are in place. Fast broadband and excellent mobile signal suit modern working-from-home needs.
The house is presented for sale requiring modernisation throughout, giving a purchaser a clear opportunity to refurbish to personal specification. The generous sitting room (over 20ft) with sliding doors to the conservatory and the open-plan flow to the dining room are strong liveable features. Upstairs are three bedrooms and a sizable family bathroom with separate shower.
Location is a key strength: within easy reach of Larbert town centre amenities, schools, parks and Larbert rail station with links to Stirling, Edinburgh and Glasgow. Practical considerations include freehold tenure, above-average council tax, and no flooding risk. The wider neighbourhood shows signs of local deprivation, which may affect long-term resale expectations.
Suitable for a family or buyer seeking a renovation project, this villa balances central convenience with scope for improvement. Buyers should budget for updating works; the property’s layout and outdoor space provide a solid foundation for a comfortable modern home.
3 bedroom villa for sale in Broomhill Avenue, Larbert, FK5 — £270,000 • 3 bed • 1 bath • 969 ft²
4 bedroom villa for sale in Woodside Grove, Larbert, FK5 — £435,000 • 4 bed • 2 bath • 1636 ft²
3 bedroom semi-detached house for sale in Maggies Crescent, Larbert, Stirlingshire, FK5 — £280,000 • 3 bed • 2 bath • 703 ft²
3 bedroom semi-detached house for sale in 3 Carrongrange Avenue, Stenhousemuir, Larbert, FK5 3BQ, FK5 — £219,995 • 3 bed • 1 bath • 964 ft²
4 bedroom detached house for sale in Broomhill Avenue, Larbert, FK5 — £310,000 • 4 bed • 3 bath • 1242 ft²
4 bedroom town house for sale in Andrew Crescent, Larbert, Stirlingshire, FK5 — £329,500 • 4 bed • 3 bath • 1453 ft²






















































