Chain-free one-bedroom apartment with parking and communal lift in Banbury town centre.
Top-floor apartment with communal lift and gated development
Town-centre location — short walk to shops and transport
Chain free sale — ready for a quick move
Allocated off-street parking bay plus communal parking
Leasehold with c.108 years remaining (check legal pack)
Service charge c. £975.60 every six months; annual £1,951.20
Main heating: electric room heaters — potentially higher bills
Management note: roof repairs planned; vendor paid scheduled works
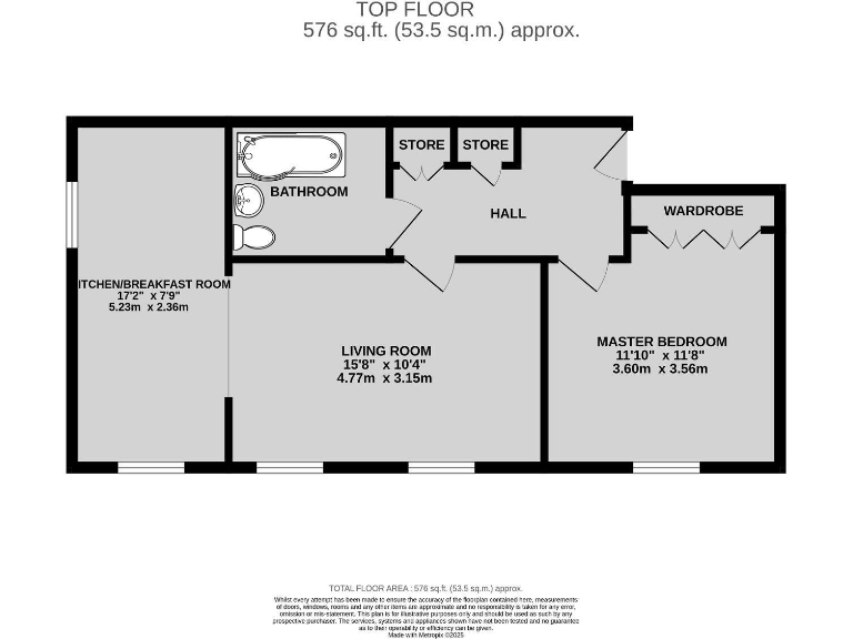
A light-filled top-floor apartment in Peoples Place offers a compact, low-maintenance home within easy walking distance of Banbury town centre. The living room and generous double bedroom provide practical space for first-time buyers seeking a ready-made base close to shops, transport links and local amenities.
The gated development includes allocated off-street parking and a communal lift, making upper-floor living straightforward. The property is chain free and comes with 108 years remaining on the lease, an established service arrangement and small annual ground rent—factors that simplify moving in.
Important practical points are straightforward: heating is electric (room heaters), which can be more expensive than gas alternatives, and the development has a regular service charge of £975.60 every six months. Management plans for extensive roof repairs are in place; the current vendor has paid the scheduled works so new owners will not be asked to contribute for that item.
This apartment suits a buyer wanting central convenience, low external maintenance and clear onward sale options. Check running costs (electric heating and service charge), lease length and local crime statistics as part of your decision-making.
1 bedroom apartment for sale in Peoples Place, Warwick Road, Banbury, OX16 — £160,000 • 1 bed • 1 bath • 586 ft²
1 bedroom flat for sale in Peoples Place, Banbury, OX16 — £145,000 • 1 bed • 1 bath • 539 ft²
1 bedroom apartment for sale in Horsefair, Banbury, OX16 — £169,950 • 1 bed • 1 bath • 536 ft²
1 bedroom flat for sale in Flat 17 Atlantic House, Banbury, OX16 — £150,000 • 1 bed • 1 bath • 409 ft²
1 bedroom flat for sale in Victoria Place, Banbury, OX16 — £130,000 • 1 bed • 1 bath • 415 ft²
2 bedroom flat for sale in Banbury, Oxfordshire, OX16 — £170,000 • 2 bed • 2 bath • 785 ft²


































