Top-floor one-bedroom apartment, newly renovated throughout
Allocated off-street parking included
Approximately 409 sq ft — compact living space
Leasehold with c.112–117 years remaining
Chain-free sale, easy purchase process
Electric room heaters; no gas central heating
0.5 miles to town centre, 0.8 miles to Banbury station
Local area crime reported as high
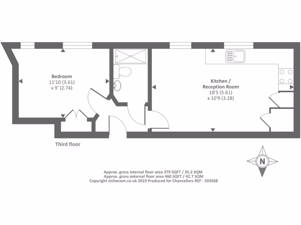
This top-floor one-bedroom apartment is newly renovated and ready to move into, ideal for a first-time buyer or investor seeking a compact, low-maintenance city base. The property benefits from allocated off-street parking and an NHBC-backed build, providing reassurance on recent construction quality.
The open-plan living area and contemporary kitchen maximise the 409 sq ft, delivering a bright, modern feel with integrated appliances and good natural light. Its central location puts Banbury town centre 0.5 miles away and Banbury station 0.8 miles away — convenient for commuting and local amenities.
Practical considerations: the flat is leasehold with approximately 112–117 years remaining, uses electric room heaters rather than gas central heating, and is small in overall size. Local crime levels are reported as high, which may concern some buyers despite the property's secure block and parking.
Overall, this apartment offers an affordable, chain-free entry into Banbury property ownership with contemporary finishes and commuter-friendly location. It suits buyers prioritising convenience and low upkeep, or investors seeking a centrally located rental, provided they accept the leasehold status and electric heating.
1 bedroom flat for sale in Flat 12, Atlantic House, West Bar Street, Banbury, Oxfordshire, OX16 — £130,000 • 1 bed • 1 bath • 409 ft²
1 bedroom apartment for sale in Peoples Place, Warwick Road, Banbury, OX16 — £160,000 • 1 bed • 1 bath • 586 ft²
2 bedroom flat for sale in West Bar Street, Banbury, Oxfordshire, OX16 — £190,000 • 2 bed • 1 bath • 410 ft²
1 bedroom flat for sale in Victoria Place, Banbury, OX16 — £130,000 • 1 bed • 1 bath • 415 ft²
1 bedroom flat for sale in Peoples Place, Banbury, OX16 — £145,000 • 1 bed • 1 bath • 539 ft²
1 bedroom flat for sale in Banbury, Oxfordshire, OX16 — £120,000 • 1 bed • 1 bath • 414 ft²






































