Three-bedroom semi on a corner plot with garage, garden and good schools nearby.
Corner plot with extension potential (subject to planning)
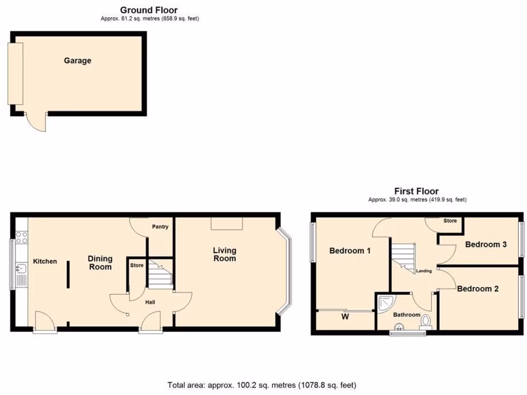
Three bedrooms, one family bathroom — straightforward family layout
Spacious reception room with traditional fireplace and alcoves
Extended dining kitchen with pantry and garden access
Low‑maintenance landscaped rear garden and garage with parking
Externally well maintained; interior may need modest modernisation
Small front plot size despite corner position; limited front garden
Freehold, low crime area, excellent mobile signal and fast broadband
This comfortable three-bedroom semi‑detached house sits on a corner plot in quietly desirable Burntwood, offering generous scope for improvement and extension (subject to consents). The ground floor provides a spacious reception room with traditional fireplace and an extended dining kitchen with pantry that opens to a low‑maintenance landscaped rear garden.
Upstairs are three bedrooms and a single family bathroom — a straightforward layout suited to families, first-time buyers or downsizers who want a ready-to-live-in home with sensible room proportions. The property is freehold, benefits from a separate single garage (recently refinished with a new door) and off‑street parking to the front.
The house is well placed for local amenities and schools (Highfields and Fulfen close by) and sits in a low‑crime, well‑served neighbourhood with excellent mobile signal and fast broadband. Note the house is mid‑20th century in style and, while externally well maintained, it will reward modest internal modernisation to bring fixtures and finishes fully up to date.
3 bedroom semi-detached house for sale in Burns Drive, Burntwood, WS7 — £275,000 • 3 bed • 1 bath • 950 ft²
3 bedroom semi-detached house for sale in Hunter Avenue, Burntwood, WS7 — £210,000 • 3 bed • 1 bath • 894 ft²
3 bedroom detached house for sale in Springhill Road, Burntwood, WS7 — £325,000 • 3 bed • 1 bath
3 bedroom semi-detached house for sale in Warren Road, Burntwood, WS7 — £330,000 • 3 bed • 1 bath • 1505 ft²
3 bedroom semi-detached house for sale in Highfield Road, Burntwood, WS7 — £230,000 • 3 bed • 1 bath • 745 ft²
3 bedroom semi-detached house for sale in Avon Road Burntwood, WS7 — £240,000 • 3 bed • 1 bath • 776 ft²






























































































