Spacious period building with conversion progress and strong developer potential.
Planning permission granted to create four apartments (PA20/06535)
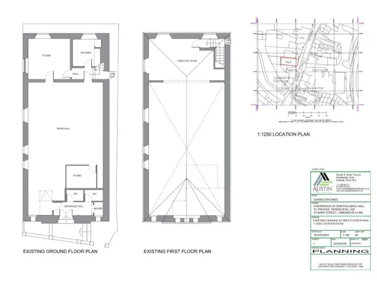
A detached former band hall in central Liskeard offered with full planning permission (PA20/06535) to convert into four apartments. The building is extremely large with high Gothic Revival ceilings and substantial internal space — most structural work, including a first floor and supporting walls, has already been completed. This creates a faster route to completion for an investor or developer prepared to finish the conversion and fit out the apartments.
The property requires internal renovation and completion of the approved works; services and finishes will need attention and the EPC is rated G. The site sits in a very deprived area with high local crime levels and a Transitional Eastern European neighbourhood profile, which should inform rental and resale expectations. There is a small front area and a decent-sized plot that may allow further reconfiguration subject to planning.
Offered freehold and selling at auction on 27 November 2025, this is a near-term development opportunity for a buyer familiar with auction process and refurbishment projects. Buyers must allow for the auction’s 10% deposit (minimum £5,000) and a non-refundable buyers’ fee of 1.8% (minimum £2,400 inc. VAT); legal pack and special conditions should be reviewed beforehand. The concession of completed structural work can reduce programme risk, but finishing costs and local market factors are key considerations.
Residential development for sale in Band Hall, Barn Street, Liskeard PL14 4BL, PL14 — £85,000 • 1 bed • 1 bath • 1550 ft²
Terraced house for sale in 2 Pike Street, Liskeard, Cornwall PL14 3JE, PL14 — £88,000 • 1 bed • 1 bath • 1984 ft²
5 bedroom terraced house for sale in Barn Street, Liskeard, Cornwall, PL14 — £155,000 • 5 bed • 2 bath • 2113 ft²
Detached house for sale in Hessenford, Torpoint, Cornwall, PL11 — £25,000 • 1 bed • 1 bath
4 bedroom end of terrace house for sale in Polbathic, TORPOINT, Cornwall, PL11 — £275,000 • 4 bed • 2 bath
4 bedroom end of terrace house for sale in The Old Chapel, Polbathic, Torpoint, Cornwall, PL11 — £275,000 • 4 bed • 1 bath


































































