KT2 5SB - 3 bedroom terraced house for sale in Cardinal Avenue, Kings…

View on Property Piper

3 bedroom terraced house for sale in Cardinal Avenue, Kingston Upon Thames, KT2

Summary - 62 CARDINAL AVENUE KINGSTON UPON THAMES KT2 5SB

3 bed 1 bath Terraced

**Key Features:**
- Charming three-bedroom 1930s property
- Huge potential for extension (STPP)
- Delightful 62ft rear garden with single garage
- Off-street parking
- Excellent location near local schools and amenities
- Sold chain-free

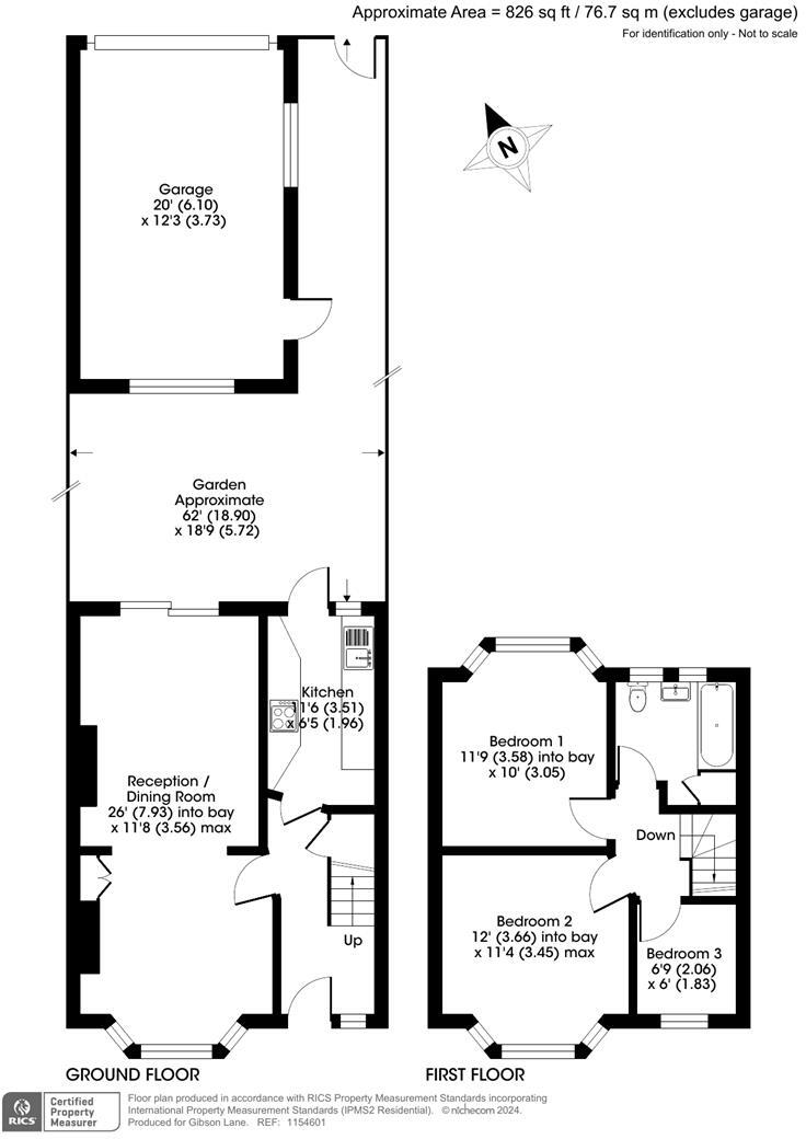
Step into this inviting three-bedroom home nestled within the desirable Tudor Estate of North Kingston. Featuring classic 1930s architecture with bay windows and solid brick construction, this well-maintained terraced house presents a fantastic opportunity for families and investors alike. A bright double reception room seamlessly flows into a modern galley kitchen, complemented by three well-proportioned bedrooms and a family bathroom.

The spacious 62ft garden is a highlight, perfect for children to play or for hosting gatherings, along with off-street parking for added convenience. With no onward chain, this gem is ready for you to move in and make your own. Enjoy exceptional local schooling, fast access to Kingston and Richmond town centers, and proximity to green spaces like Richmond Park and the River Thames. The potential for extension offers the flexibility to grow with your family, making this property a must-see! Don’t miss out—properties with such promise won’t last long in this sought-after neighborhood.

Property Details

Brochure Descriptions

Image Descriptions

Floorplan Description

Rooms

Textual Property Features

Detected Visual Features

EPC Details

Nearby Schools

Nearest Bars And Restaurants

,,,,}

Nearest General Shops

,,}

Nearest Grocery shops

,,}

Nearest Supermarkets

,,}

Nearest Religious buildings

,,}

Nearest Medical buildings

,,,}

Nearest Airports

,,}

Nearest Leisure Facilities

,,,,}

Nearest Tourist attractions

,,}

Nearest Train stations

,,,,}

Nearest Bus stations and stops

,,,,}

Nearest Hotels

,,}

Tags

Local Market Stats

AirBnB Data

Similar Properties

Meta

High Res Images

Compatible Images

Low res Images

Thumbnails

Raw Images

High Res Floorplan Images

Compatible Floorplan Images

Low res Floorplan Images

FloorplanImages Thumbnail

Raw Floorplan Images