Auction opportunity for refurbishment and rental or resale potential.
Vacant freehold mid-terrace, two bedrooms, one bathroom
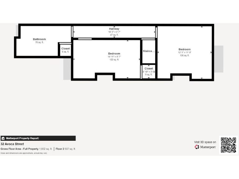
A vacant, freehold Victorian mid-terrace offered at public auction — attractive to investors or developers seeking a centrally located refurbishment project. The property extends to about 1,032 sq ft with two bedrooms, two reception rooms, a kitchen and a rear yard; an existing gas boiler, radiators and double glazing are in place. EPC rated C suggests reasonable thermal performance, but the house needs full modernisation throughout.
The location sits in a city centre, close to local shops, schools and transport links; fast broadband and average mobile signal support rental demand. The surrounding area is classified as deprived with above-average crime statistics, so tenancy screening and security upgrades should be factored into plans. The solid-brick walls likely lack cavity insulation and parts of the building fabric will benefit from investment.
Sold at auction (guide price £20,000) with vacant possession, this lot suits buyers who can commit to renovation and budget for immediate repairs, potential electrical upgrades, and ongoing maintenance. Legal pack review and allowance for auction administration fees are essential before bidding. For the right buyer, the property offers short-term rental or longer-term value uplift after refurbishment.
3 bedroom terraced house for sale in 142 London Road, Newcastle- under- Lyme, Staffordshire, ST5 7JD, ST5 — £20,000 • 3 bed • 1 bath • 949 ft²
2 bedroom end of terrace house for sale in Fell Street, Stoke-On-Trent, ST6 1JT, ST6 — £86,000 • 2 bed • 1 bath • 786 ft²
2 bedroom terraced house for sale in Hazelhurst Street, Stoke-on-Trent, ST1 — £25,000 • 2 bed • 1 bath • 757 ft²
3 bedroom end of terrace house for sale in Pinnox Street, Stoke-on-Trent, ST6 — £35,000 • 3 bed • 1 bath
3 bedroom terraced house for sale in West Terrace, Stoke-On-Trent ST6 6QZ, ST6 — £62,000 • 3 bed • 1 bath • 937 ft²
2 bedroom terraced house for sale in Davis Street, Stoke-On-Trent ST4 7AD, ST4 — £25,000 • 2 bed • 1 bath


















































































