Contemporary three-bed with a generous private garden and low running costs.
- End-terrace with extra side windows and increased privacy
- Open-plan living/dining/kitchen with modern fitted units
- Three bedrooms and two bathrooms; practical for families
- Largest garden in the development; good outdoor space
- Freehold and chain free for quicker completion
- Small plot and modest overall internal footprint (≈904 sq ft)
- Located in a very deprived area; may affect resale and amenities
- Limited off-street parking; check driveway availability
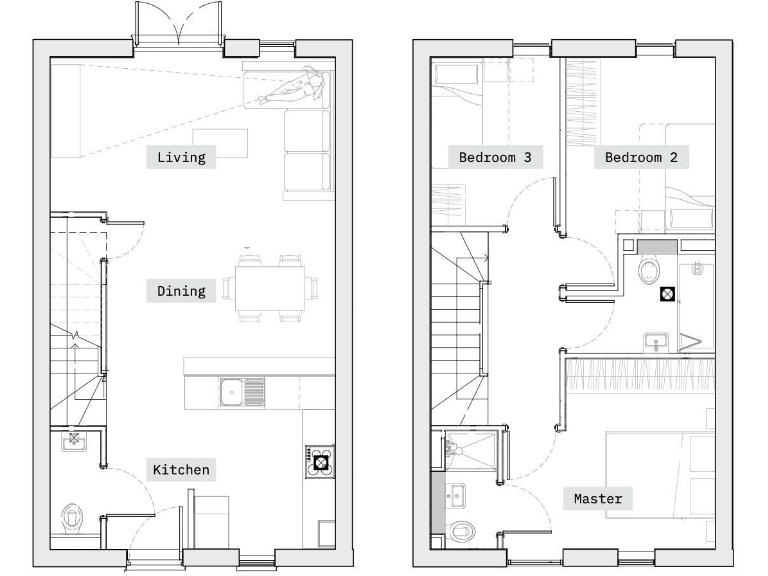
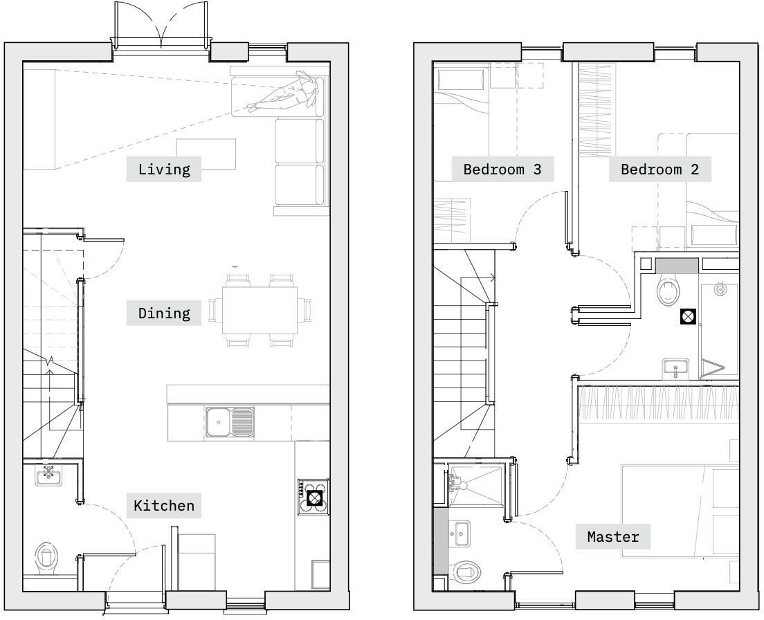
Light-filled three-bedroom end-terrace with modern finishes and an open-plan ground floor. The corner position brings extra windows and privacy compared with mid-terrace neighbours. A contemporary fitted kitchen, wood-effect flooring and recessed downlights create a move-in-ready feel for buyers seeking low-maintenance living.
The rear garden is the largest in the development, providing genuine outdoor space for children, pets or entertaining — a rare benefit on this estate. Two bathrooms (including a ground-floor WC) and a compact but practical layout make morning routines straightforward for families or sharers. The property is sold freehold and chain free, simplifying a swift purchase.
Location delivers quick links into Manchester and nearby transport, plus excellent mobile and fast broadband — useful for commuters and home-workers. Council tax is described as low, which supports running costs. However, the wider area is classified as very deprived, which may affect long-term resale and local amenity levels.
Internally the footprint is modest (approx. 904 sq ft) and rooms are medium-sized rather than spacious; the small front plot and limited off-street parking are worth noting. Buyers looking for a larger garden or significantly more internal space should consider this a compact family/townhouse option rather than a large family home.
3 bedroom semi-detached house for sale in Horse Chestnut Drive, Manchester, M9 — £275,000 • 3 bed • 2 bath • 828 ft²
3 bedroom end of terrace house for sale in Ivy Grange Avenue, Salford, M6 — £300,000 • 3 bed • 3 bath • 819 ft²
3 bedroom terraced house for sale in Kennedy Road, Salford, M5 — £210,000 • 3 bed • 1 bath • 789 ft²
3 bedroom semi-detached house for sale in Furlong Way, Manchester, Greater Manchester, M6 — £373,000 • 3 bed • 2 bath • 904 ft²
3 bedroom terraced house for sale in Ribot Walk, Manchester, Greater Manchester, M6 — £300,000 • 3 bed • 2 bath • 896 ft²
3 bedroom terraced house for sale in Blossom Way, Salford, Greater Manchester, M6 — £250,000 • 3 bed • 2 bath • 644 ft²


















































































