Secure gated parking and easy rail links to Manchester city centre.
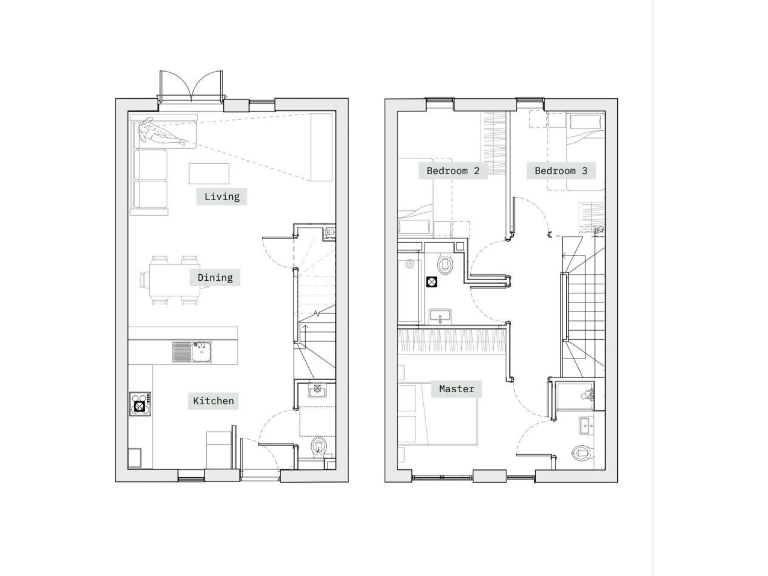
- Freehold three-bedroom new-build, chain free
- Master bedroom with private en-suite bathroom
- Open-plan kitchen and dining for contemporary living
- Private gated parking with electric gate access
- Energy-efficient construction; low-maintenance double glazing
- Approximately 904 sq ft — average-sized accommodation
- Located in a student-influenced, cosmopolitan neighbourhood
- Area shows high deprivation; may affect resale/rental demand
Recently completed and offered chain-free, this three-bedroom freehold property is ready for immediate move-in. The layout centres on an open-plan kitchen and dining area that flows into the living space, complemented by a master suite with en‑suite and an additional family bathroom. Practical extras include private gated parking with electric gate access and energy-efficient construction features.
Set in Pendleton & Charlestown, the home sits within easy reach of good primary and secondary schools, shops, healthcare and Salford Crescent station for direct city links. At about 904 sq ft, the accommodation is an average-sized, low-maintenance option for those seeking contemporary urban living without renovation work.
Buyers should note the neighbourhood classifications: a cosmopolitan, student-influenced locality within a wider area of significant deprivation. That can mean a busy local environment and mixed market dynamics; it may affect long-term resale or rental values compared with more affluent pockets. There is no reported flood risk, and the property has never been occupied, offering a fresh, modern finish throughout.
 3 bedroom terraced house for sale in Stan Mellor Close, Salford, M6 — £325,000 • 3 bed • 2 bath • 945 ft²
 3 bedroom terraced house for sale in Stan Mellor Close, Salford, M6 — £325,000 • 3 bed • 2 bath • 945 ft² 2 bedroom terraced house for sale in Cromwell Road, SALFORD, Lancashire, M6 — £280,000 • 2 bed • 2 bath • 741 ft²
 2 bedroom terraced house for sale in Cromwell Road, SALFORD, Lancashire, M6 — £280,000 • 2 bed • 2 bath • 741 ft² 4 bedroom semi-detached house for sale in Shergar Way, Salford, Greater Manchester, M6 6ND, M6 — £365,000 • 4 bed • 2 bath • 1183 ft²
 4 bedroom semi-detached house for sale in Shergar Way, Salford, Greater Manchester, M6 6ND, M6 — £365,000 • 4 bed • 2 bath • 1183 ft² 3 bedroom semi-detached house for sale in Shergar Way, Salford, Greater Manchester, M6 6ND, M6 — £350,000 • 3 bed • 2 bath • 965 ft²
 3 bedroom semi-detached house for sale in Shergar Way, Salford, Greater Manchester, M6 6ND, M6 — £350,000 • 3 bed • 2 bath • 965 ft² 3 bedroom semi-detached house for sale in Kempster Gardens, Salford, Greater Manchester, M7 — £300,000 • 3 bed • 1 bath • 944 ft²
 3 bedroom semi-detached house for sale in Kempster Gardens, Salford, Greater Manchester, M7 — £300,000 • 3 bed • 1 bath • 944 ft² 4 bedroom house for sale in Amersham Street, Salford, M5 — £390,000 • 4 bed • 3 bath • 1217 ft²
 4 bedroom house for sale in Amersham Street, Salford, M5 — £390,000 • 4 bed • 3 bath • 1217 ft²










































































