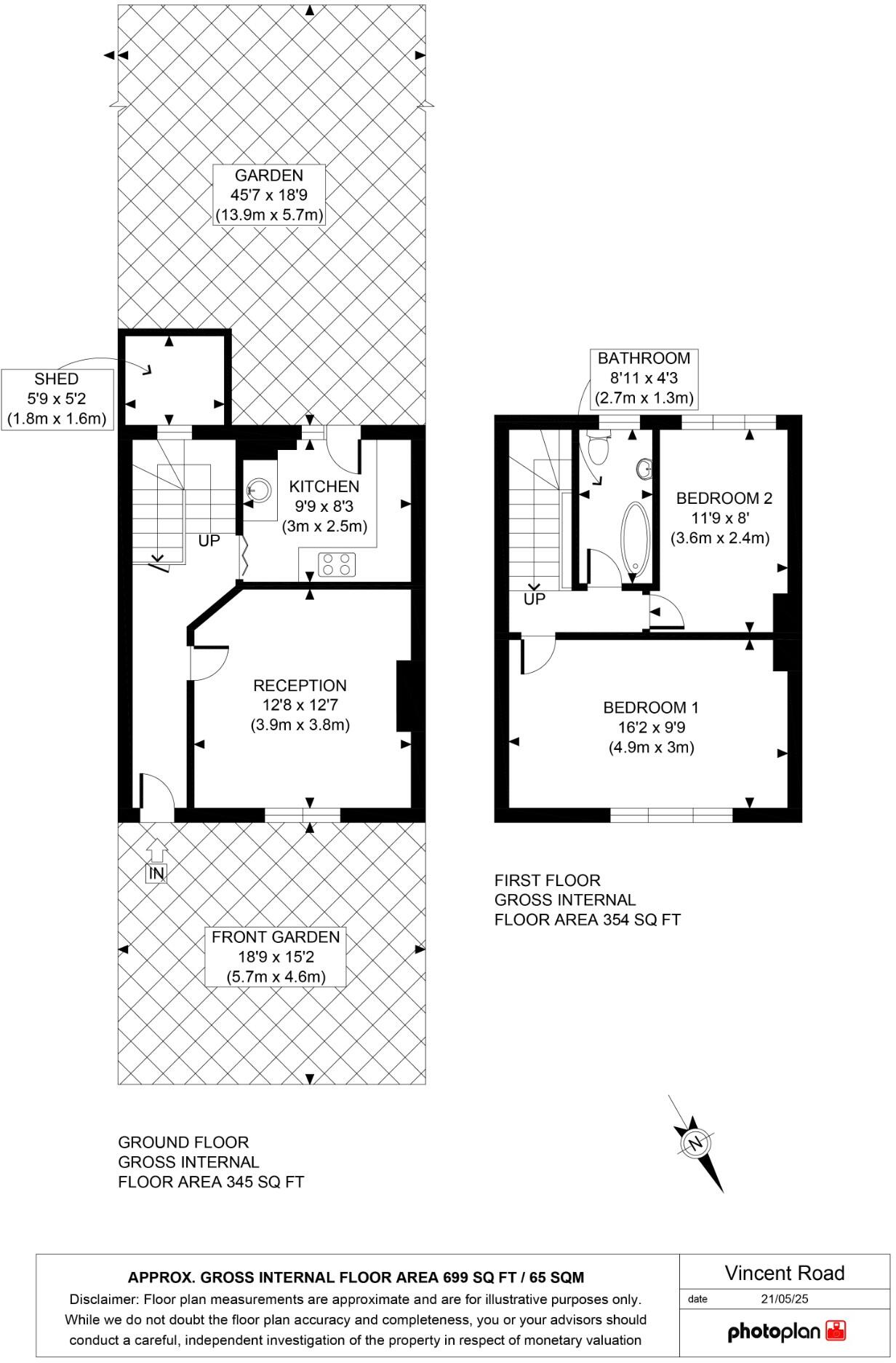
**Standout Features:**
- Well-presented 2-bedroom terraced house
- Approx. 45'7 x 18'9 private rear garden with shed
- Modern fitted kitchen and spacious 12'8 x 12'7 reception room
- Potential for extension subject to planning permission
- Convenient location near Becontree Station (District Line)
- Freehold tenure and affordable council tax band (C)
This charming 2-bedroom terraced house is a fantastic opportunity for first-time buyers or young families seeking a comfortable home with room for growth. Boasting a modern style fitted kitchen and an inviting reception room perfect for relaxed living, this property features double glazing and gas central heating for year-round comfort. The expansive private rear garden offers a peaceful retreat, ideal for outdoor gatherings or play space for children.
With the added advantage of extension potential (subject to planning), this property allows for future customization to suit your family's needs. Located near Becontree Station, you're just a train ride away from the city, while a variety of quality local schools, including outstanding-rated options, are within easy reach. While the area has average crime rates and some socio-economic challenges, the community offers diverse amenities and excellent mobile and broadband signals. Priced between £375,000 - £400,000, this property represents a unique opportunity—act quickly to secure your future home!
2 bedroom terraced house for sale in Brewood Road, Dagenham, RM8 — £400,000 • 2 bed • 1 bath • 746 ft²
2 bedroom terraced house for sale in Ilchester Road, Dagenham, RM8 — £375,000 • 2 bed • 1 bath • 1080 ft²
2 bedroom terraced house for sale in Hedgemans Road, Dagenham, RM9 — £375,000 • 2 bed • 1 bath • 1163 ft²
3 bedroom terraced house for sale in Rowney Gardens, Dagenham, RM9 — £425,000 • 3 bed • 2 bath • 743 ft²
3 bedroom terraced house for sale in Canonsleigh Road, Dagenham, RM9 — £375,000 • 3 bed • 1 bath • 945 ft²
3 bedroom terraced house for sale in Romsey Road, Dagenham, RM9 — £390,000 • 3 bed • 1 bath • 960 ft²


































































































