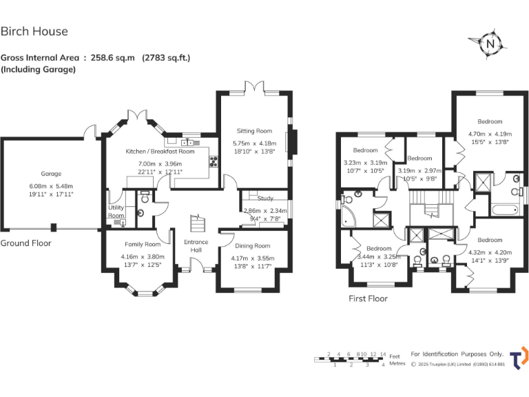
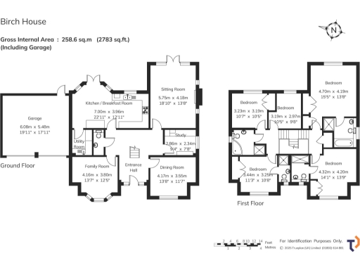
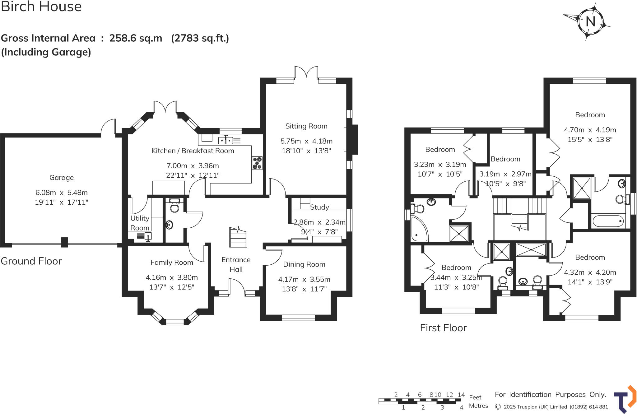
**Standout Features:**
- Spacious and well-presented detached house, 2,783 sq ft
- Five bedrooms and four modern bathrooms
- Generous plot with a landscaped garden, perfect for entertaining
- Two-storey design with multiple living areas and office space
- Off-street parking with attached double garage
- Less than a mile from Sevenoaks High Street and excellent schools
- Potential for extension, subject to planning permissions
**Concise Summary:**
This impressive five-bedroom detached family home, nestled in a tranquil neighborhood of affluent Sevenoaks, presents an exceptional opportunity for comfortable living and future potential. Spanning over 2,783 sq ft, the thoughtfully designed interior features three distinct reception rooms, a modern kitchen/breakfast area, and a convenient utility room. The expansive garden, lushly landscaped with tiered seating areas and a charming summerhouse, becomes your personal retreat for relaxation and outdoor gatherings.
Consider the convenience of off-street parking and a double garage, enhancing the home's appeal to families and commuters alike. Enjoy swift access to local amenities—shops, cafes, dining, and the leisure center—while being within easy reach of renowned schools, including Sevenoaks School, making it an ideal home for families.
However, prospected buyers should be aware of the external maintenance required, with a council tax band G indicating higher annual living costs. Also, while built with quality in mind, the potential for renovation and expansion allows you to personalize the space further. This splendid residence offers both exclusivity and growth—don't miss your chance to make it your own!
 4 bedroom semi-detached house for sale in Birchfield, Sundridge, Sevenoaks, Kent, TN14 — £1,395,000 • 4 bed • 3 bath • 3228 ft²
 4 bedroom semi-detached house for sale in Birchfield, Sundridge, Sevenoaks, Kent, TN14 — £1,395,000 • 4 bed • 3 bath • 3228 ft² 5 bedroom detached house for sale in Little Julians Hill, Sevenoaks, Kent, TN13 — £1,550,000 • 5 bed • 2 bath • 2306 ft²
 5 bedroom detached house for sale in Little Julians Hill, Sevenoaks, Kent, TN13 — £1,550,000 • 5 bed • 2 bath • 2306 ft² 5 bedroom detached house for sale in The Middlings, Sevenoaks, TN13 — £1,200,000 • 5 bed • 2 bath • 2537 ft²
 5 bedroom detached house for sale in The Middlings, Sevenoaks, TN13 — £1,200,000 • 5 bed • 2 bath • 2537 ft² 5 bedroom detached house for sale in White Hart Wood, Sevenoaks, Kent, TN13 — £1,625,000 • 5 bed • 3 bath • 2937 ft²
 5 bedroom detached house for sale in White Hart Wood, Sevenoaks, Kent, TN13 — £1,625,000 • 5 bed • 3 bath • 2937 ft² 5 bedroom detached house for sale in Oakhill Road, Sevenoaks, Kent, TN13 — £1,895,000 • 5 bed • 4 bath • 3006 ft²
 5 bedroom detached house for sale in Oakhill Road, Sevenoaks, Kent, TN13 — £1,895,000 • 5 bed • 4 bath • 3006 ft² 5 bedroom detached house for sale in Brittains Lane, Sevenoaks, Kent, TN13 — £1,795,000 • 5 bed • 3 bath • 3321 ft²
 5 bedroom detached house for sale in Brittains Lane, Sevenoaks, Kent, TN13 — £1,795,000 • 5 bed • 3 bath • 3321 ft²


















































