Large eco-friendly family home close to Sevenoaks station and top schools.
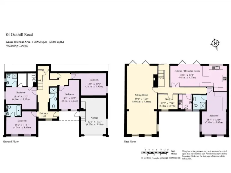
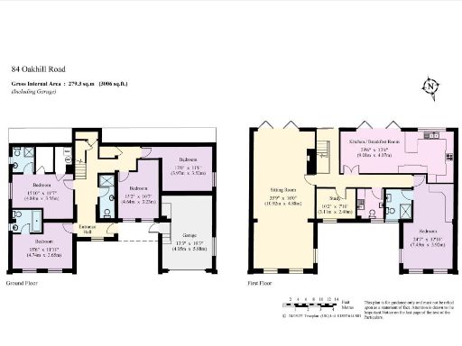
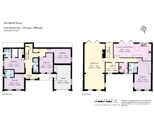
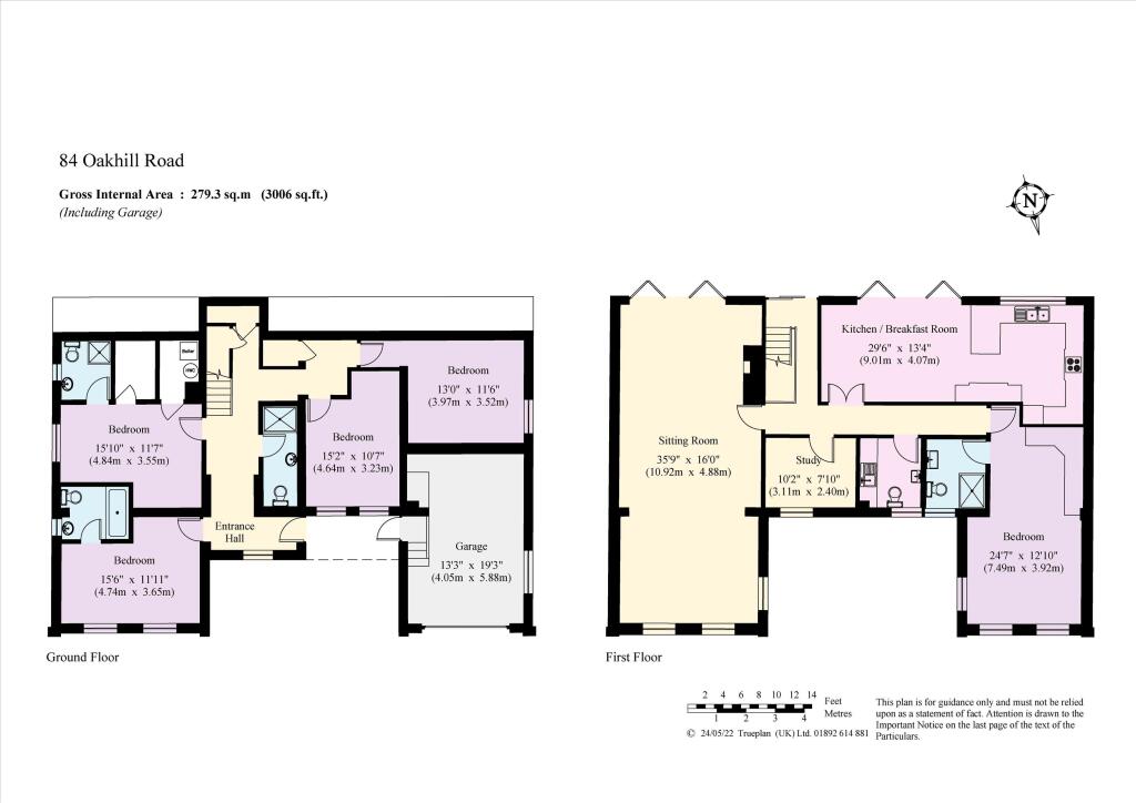
- Approximately 3,006 sq ft over two floors
- Five double bedrooms, principal suite with en suite
- South-facing, very large private rear garden and terrace
- Solar panels, air source heat pump, ground water harvesting
- Office-grade WiFi and full fibre to the premises
- Detached garage, wide driveway; EV charging provision uncertain
- Built 1950s–1960s; double glazing install date unknown
- Council tax level described as quite expensive
A substantial five-bedroom detached house set on a gated private road, walking distance to Sevenoaks station and High Street. The layout spans approximately 3,000 sq ft over two floors, with a generous open-plan kitchen/dining area, large sitting room with wood-burning fireplace, principal bedroom with en suite, and a ground floor suite of four double bedrooms. The property sits on a very large plot with a south-facing, private garden and wide paved terrace for al-fresco entertaining.
The home offers strong green credentials: solar panels with feed-in tariff, an air source heat pump combined with mains gas heating, and a ground water harvesting system. Practical tech and connectivity are included with office-grade WiFi and full fibre to the premises. Parking is generous with a block-paved driveway and detached garage; there may be EV charging provision (to be confirmed).
This is an excellent family or executive home close to outstanding schools and local amenities. Buyers should note the house dates from the 1950s–1960s, double glazing install date is unknown, and some modernisation may be desired to personalise finishes. Council tax is described as quite expensive — budget accordingly.
Overall the property balances size, privacy and location with long-term running-cost benefits from its low-carbon systems. It will suit buyers wanting immediate space and strong transport links, and those prepared to update cosmetic elements while benefitting from established sustainable infrastructure.
6 bedroom detached house for sale in Oakhill Road, Sevenoaks, Kent, TN13 — £2,250,000 • 6 bed • 4 bath • 4442 ft²
6 bedroom detached house for sale in Kippington Road, Sevenoaks, Kent, TN13 — £2,250,000 • 6 bed • 4 bath • 3770 ft²
4 bedroom detached house for sale in St. Georges Road, Sevenoaks, Kent, TN13 — £2,000,000 • 4 bed • 3 bath • 2771 ft²
5 bedroom detached house for sale in Sevenoaks, Kent, TN13 — £1,750,000 • 5 bed • 4 bath • 3101 ft²
5 bedroom detached house for sale in Little Julians Hill, Sevenoaks, Kent, TN13 — £1,550,000 • 5 bed • 2 bath • 2306 ft²
5 bedroom detached house for sale in Oak Avenue, Sevenoaks, Kent, TN13 — £2,500,000 • 5 bed • 5 bath • 4402 ft²














































































































































































































































































































































































































































































