Single-storey home with garden, garage and strong renovation potential.
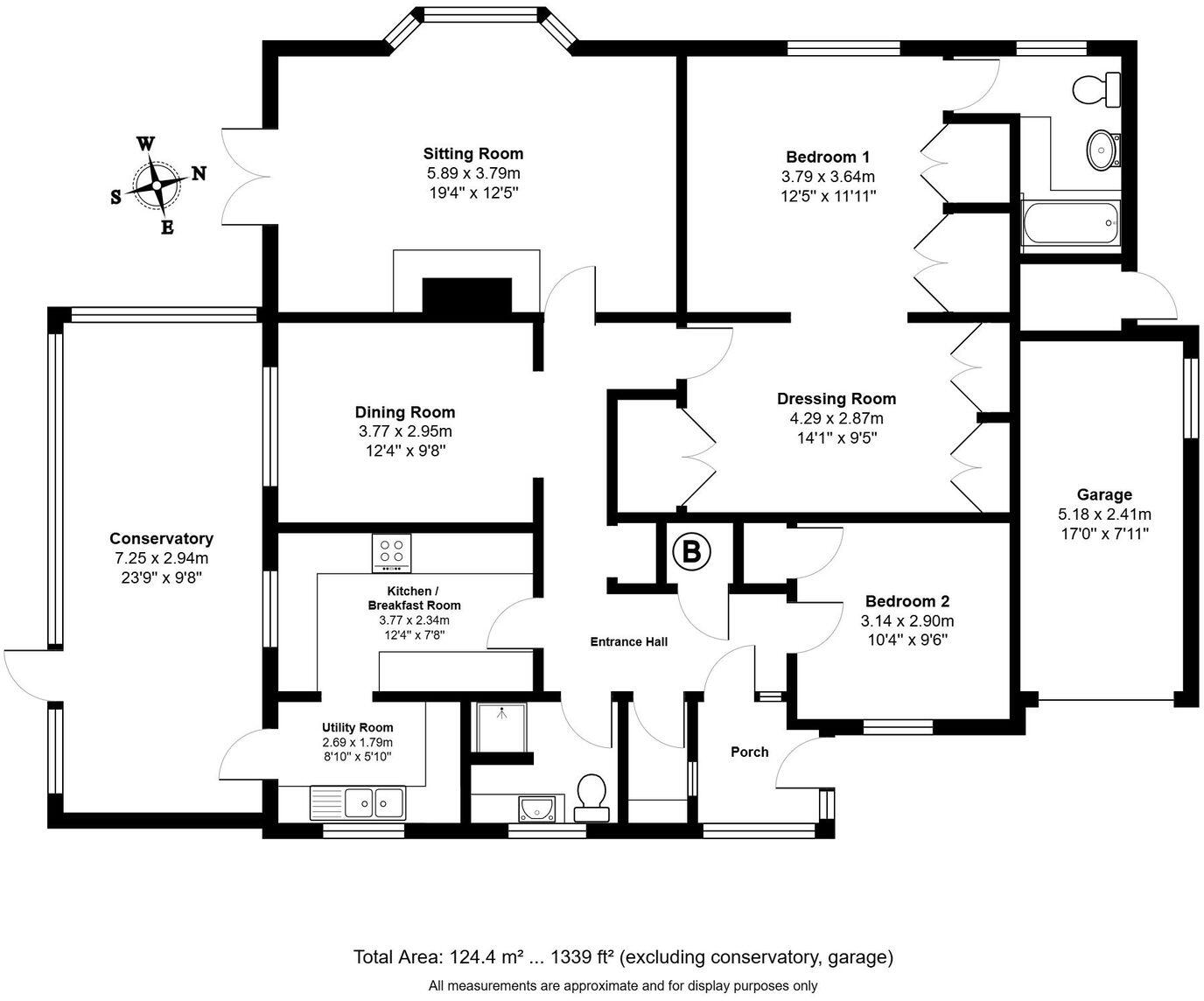
Detached two-bedroom bungalow on large south-facing plot
Set at the end of a quiet cul-de-sac in desirable Hemingford Grey, this detached two-bedroom bungalow offers a rare single-storey layout and a large south-facing garden. The house has good bones — double-aspect lounge with bay window and patio doors, conservatory, and a main bedroom with en-suite and a generous dressing area — all ripe for sympathetic modernisation.
The current arrangement provides clear potential to create contemporary open-plan living by combining the kitchen, dining room and conservatory. The single garage and ample private driveway parking add practical value; the garage also offers conversion potential subject to approvals. EPC C/69 and mains gas central heating are in place.
Important note for buyers: the property needs renovation throughout, so budget for updating finishes, services testing and any structural or cosmetic works. Council Tax sits at Band E; planning scope exists to extend but would require formal applications. This home will suit a buyer looking to downsize into one level or an owner-occupier/investor prepared to refurbish to unlock strong village demand and uplift in value.
With fast broadband, very low flood and crime risk, and easy access to local amenities, schools and riverside walks, the property is a pragmatic canvas in a highly regarded village location.
4 bedroom bungalow for sale in Marsh Lane, Hemingford Grey, Huntingdon, Cambridgeshire, PE28 — £550,000 • 4 bed • 1 bath • 1597 ft²
2 bedroom bungalow for sale in Hemingford Road, St. Ives, Cambridgeshire, PE27 — £325,000 • 2 bed • 1 bath • 560 ft²
2 bedroom bungalow for sale in Youngman Avenue, Histon, Cambridge, Cambridgeshire, CB24 — £550,000 • 2 bed • 2 bath • 914 ft²
4 bedroom detached house for sale in Dendys, Hemingford Grey, PE28 — £550,000 • 4 bed • 1 bath • 1748 ft²
2 bedroom detached bungalow for sale in Button End, Harston, CB22 — £475,000 • 2 bed • 1 bath • 1275 ft²
4 bedroom detached house for sale in High Street, Hemingford Abbots, Huntingdon, PE28 — £1,500,000 • 4 bed • 3 bath • 3332 ft²






















































