Ready-to-move-in family house with loft potential near schools and transport.
Three bedrooms with modern family shower room and fitted fixtures
Newly renovated interior throughout, contemporary kitchen and utility
Approved planning permission for loft conversion to add space
Driveway parking and fully enclosed rear garden with patio
Small plot size; outdoor space is modest
Medium flood risk — consider insurance and mitigation
Cavity walls as built; additional insulation likely needed
Council tax band above average for the area
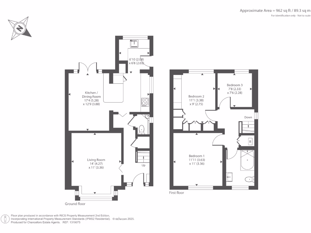
Set in the heart of Bagshot village, this newly renovated three-bedroom detached home offers comfortable family living with contemporary fittings throughout. The modern kitchen/breakfast room opens to a private, enclosed rear garden and benefits from an adjoining utility room and downstairs cloakroom for everyday convenience.
Driveway parking and an approved planning permission for a loft conversion add practical value and scope to increase living space (subject to build costs). The property is well placed for commuters, with Bagshot station and the M3 within easy reach, and sits close to several highly regarded schools and local amenities.
Buyers should note the plot is small and the house sits in an area of medium flood risk; any purchaser should consider insurance and flood-preparation measures. The home has cavity walls as built (no added insulation assumed) and council tax is above average. Overall, the property will suit families seeking a modern, ready-to-move-into home with potential to extend upwards.
3 bedroom semi-detached house for sale in Gloucester Road, Bagshot, Surrey, GU19 — £435,000 • 3 bed • 1 bath • 812 ft²
3 bedroom semi-detached house for sale in Manor Way, Bagshot, Surrey, GU19 — £500,000 • 3 bed • 2 bath • 1522 ft²
3 bedroom semi-detached house for sale in Higgs Lane, Bagshot, Surrey, GU19 — £550,000 • 3 bed • 1 bath • 1088 ft²
5 bedroom detached house for sale in London Road, Bagshot, Surrey, GU19 — £595,000 • 5 bed • 2 bath • 1892 ft²
4 bedroom detached house for sale in Solstrand Mews, Station Road, Bagshot, Surrey, GU19 — £850,000 • 4 bed • 2 bath • 1500 ft²
4 bedroom semi-detached bungalow for sale in London Road, Bagshot, GU19 — £650,000 • 4 bed • 3 bath • 1348 ft²














































































