**Standout Features:**
- Detached Victorian family home with high ceilings and spacious rooms
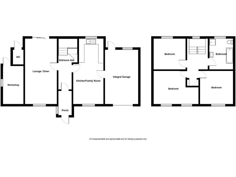
- Three double bedrooms and a modern, well-designed family bathroom
- Larger-than-average, mature rear garden with stunning countryside views
- Integral garage with additional driveway parking
- Favorable location with low crime rate and access to amenities
**Overview:**
Nestled in an elevated position, this charming three-bedroom detached Victorian home in Upper Tumble offers a blend of comfort and practicality for families or investors. Boasting a generous lounge/diner bathed in natural light, an inviting kitchen/family area with space for a Rangemaster-style oven, and a beautifully renovated family bathroom, the interior comfortably serves modern living needs. The property is enhanced by an integral garage and ample driveway parking.
Step outside to the larger-than-average rear garden, a serene retreat showcasing breathtaking views over the Gwendraeth Valley. The garden, featuring lush lawns, an enchanting stone-walled BBQ area, and a variety of fruit trees, provides an ideal space for outdoor entertaining or family gatherings.
While the property is equipped with up-to-date double glazing and LPG heating, potential buyers should be aware of its EPC rating of F, presenting an opportunity for energy efficiency upgrades. This unique family home combines charm with future potential, making it a rare find in today’s market—don’t miss the chance to make it yours!
3 bedroom detached house for sale in Glyn Road, Lower Brynamman, Ammanford, Carmarthenshire., SA18 — £210,000 • 3 bed • 1 bath • 1034 ft²
3 bedroom detached house for sale in Cwmamman Road, Glanamman, Ammanford, Carmarthenshire., SA18 — £265,000 • 3 bed • 2 bath
3 bedroom detached house for sale in Pentregwenlais, Llandybie, Ammanford, SA18 — £169,950 • 3 bed • 1 bath • 1130 ft²
3 bedroom detached house for sale in Llwyn Road, Cwmgors, Ammanford, Neath Port Talbot, SA18 — £275,000 • 3 bed • 2 bath • 1594 ft²
3 bedroom detached house for sale in Brynamman Road, Lower Brynamman, Ammanford, SA18 — £160,000 • 3 bed • 1 bath • 790 ft²
3 bedroom semi-detached house for sale in Heol Y Meinciau, Pontyates, Llanelli, SA15 5SN, SA15 — £310,000 • 3 bed • 3 bath • 2001 ft²










































































