Spacious, light-filled apartment ideal for seaside living or premium rental returns.
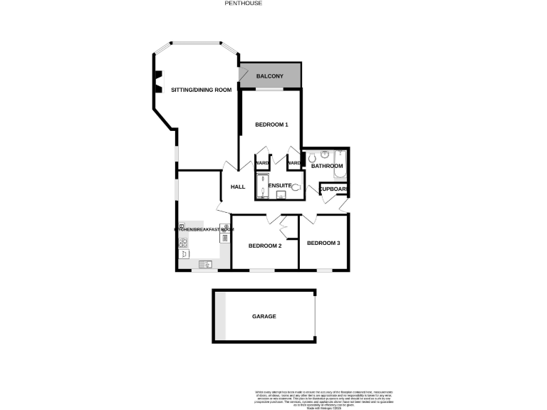
Waterfront penthouse with panoramic marina and coastline views
This top-floor penthouse occupies a prime waterfront position on Shelly Road with sweeping views over Exmouth Marina, Dawlish Warren and the coastline beyond. At around 1,100 sq ft it offers generous, light-filled living with a dual-aspect sitting/dining room opening onto a sun balcony — ideal for sea-facing relaxation or entertaining.
The apartment is presented in modern condition with a stylish kitchen/breakfast room equipped with integrated appliances, three double bedrooms and two contemporary bathrooms, including a high-quality refitted en-suite to the main bedroom. Practical benefits include gas central heating, double glazing, lift access, a sizeable garage with electric door and an allocated parking space immediately in front.
Notable considerations are that the property is leasehold with 109 years remaining and an as-yet-uncertain service charge; prospective buyers should confirm ongoing costs. There is no private garden beyond the balcony and the local area records above-average crime and indicators of deprivation, factors to weigh alongside the strong coastal location and holiday-market potential.
This accommodation will suit buyers seeking a low-maintenance permanent home, a high-end holiday retreat or an investment in a sought-after marina location. A viewing is recommended to appreciate the outlook, layout and storage provision offered by this unusually spacious penthouse.
3 bedroom apartment for sale in Exmouth Marina, EX8 — £995,000 • 3 bed • 2 bath • 1304 ft²
2 bedroom apartment for sale in Pierhead, Exmouth, EX8 — £585,000 • 2 bed • 2 bath • 894 ft²
2 bedroom flat for sale in Douglas Avenue, Exmouth, Devon, EX8 — £995,000 • 2 bed • 3 bath • 1620 ft²
3 bedroom apartment for sale in Regatta Court, Shelly Road, Exmouth, EX8 — £725,000 • 3 bed • 2 bath • 1248 ft²
2 bedroom flat for sale in Pierhead, Exmouth, EX8 — £350,000 • 2 bed • 1 bath • 606 ft²
3 bedroom apartment for sale in Exmouth Marina, EX8 — £450,000 • 3 bed • 2 bath • 808 ft²














































































































