EX12 2UW - 2 bed quiet culdesac retreat in Burnham Close, EX12 2UW

View on Property Piper

2 bedroom terraced house for sale in Burnham Close, Seaton, EX12

Summary - 24 BURNHAM CLOSE SEATON EX12 2UW

2 bed 1 bath Terraced

Extended two-bed home with conservatory, parking and private paved garden — ideal starter buy.
Two off-road parking spaces to the front
Spacious conservatory with twin doors to private paved garden
Well-fitted modern kitchen, neutral decor throughout
Mains gas boiler and recent double glazing installed
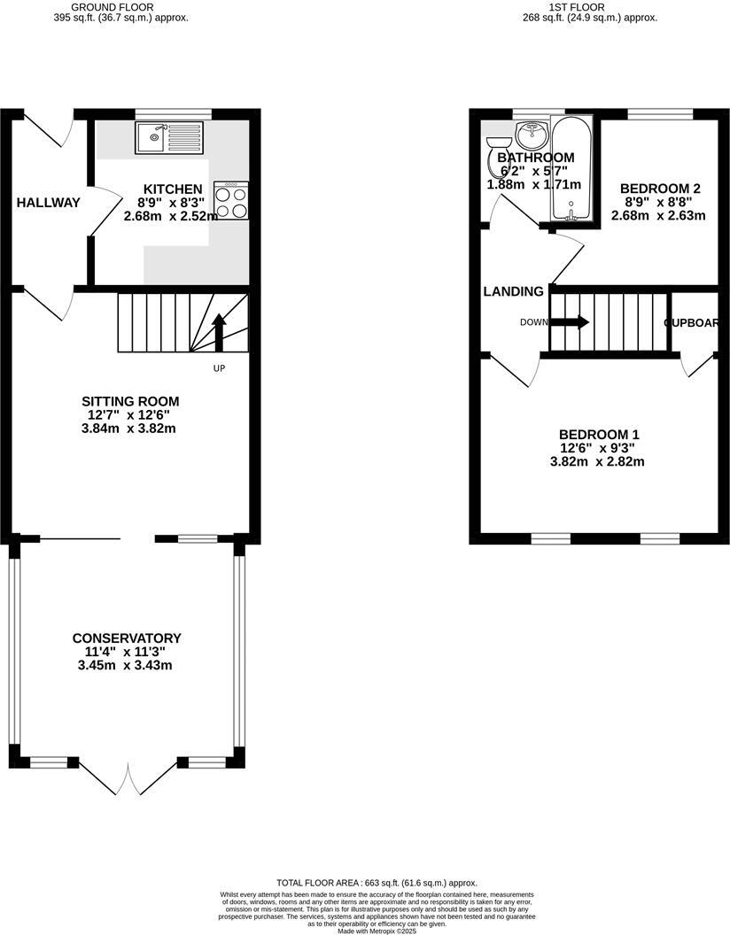
Compact footprint — approx 663 sq ft, two bedrooms
Tenure unspecified — buyer to confirm legal title
Small, fully paved rear garden; low maintenance but limited green space
Located in a quiet cul-de-sac, short walk to beach and shops
This extended mid-terrace home sits at the end of a peaceful cul-de-sac, a short walk from local shops, the bus stop and Seaton beach. The layout feels light and practical: a living room that opens into a spacious conservatory, plus a well-fitted modern kitchen. Neutral decoration, double glazing and gas central heating make it largely move-in ready.

Outside provides real convenience for a property of this size — two off-road parking spaces to the front and a fully enclosed, low-maintenance paved rear garden offering a good degree of privacy. The house was built in the 1980s and benefits from relatively recent glazing and a mains-gas boiler with radiator heating.

The home is an obvious fit for first-time buyers seeking a manageable, low-upkeep starter home or for investors targeting steady rental demand in a very low-crime, affluent coastal town. The compact footprint (around 663 sq ft) and two-bedroom layout keep running costs down, and nearby schools and local services are within easy reach.

Notable practical points: the tenure is not specified, and the plot is small — important for buyers who need larger outdoor space. The property is in a neighbourhood described as ageing rural, which may influence long-term demographic trends. Overall this is a sensible, well-presented property with realistic expectations for space and scope.

Property Details

Brochure Descriptions

Image Descriptions

Floorplan Description

Rooms

Textual Property Features

Target Audience

AI Tags

Detected Visual Features

EPC Details

Nearby Schools

Nearest Bars And Restaurants

,,,,}

Nearest General Shops

,,}

Nearest Grocery shops

,,}

Nearest Supermarkets

,,}

Nearest Religious buildings

,,}

Nearest Medical buildings

,,,}

Nearest Airports

}

Nearest Leisure Facilities

,,,,}

Nearest Tourist attractions

,,}

Nearest Train stations

,,,,}

Nearest Bus stations and stops

,,,,}

Nearest Hotels

,,}

Tags

Local Market Stats

AirBnB Data

Similar Properties

Meta

High Res Images

Compatible Images

Low res Images

Thumbnails

Raw Images

High Res Floorplan Images

Compatible Floorplan Images

Low res Floorplan Images

FloorplanImages Thumbnail

Raw Floorplan Images