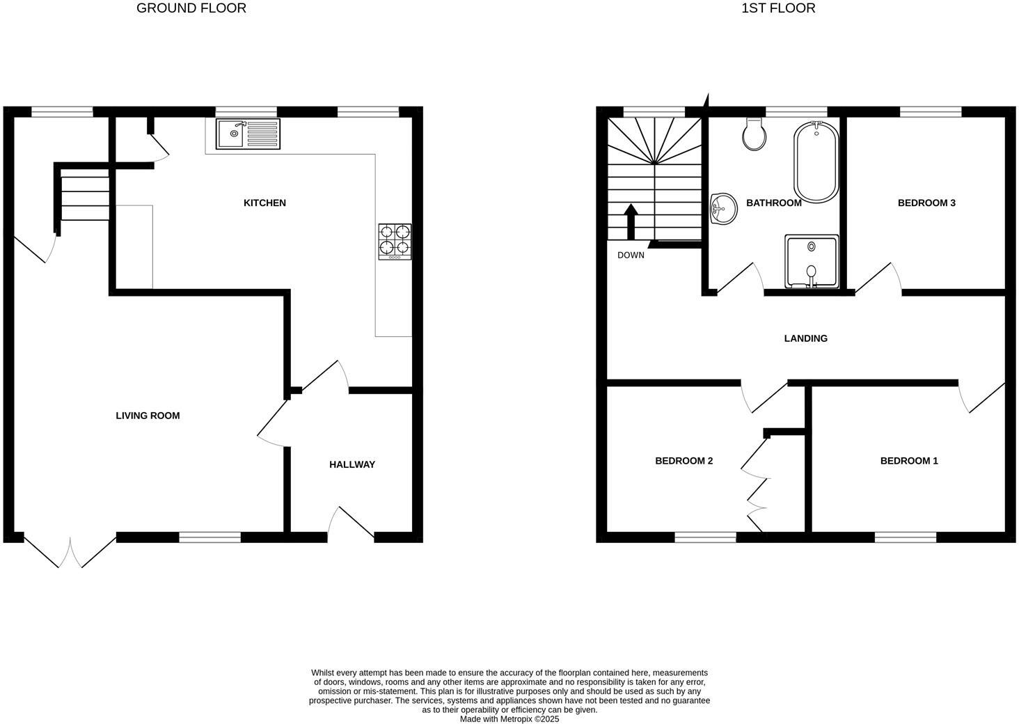
**Standout Features:**
- Newly renovated mid-terrace house with three bedrooms
- High-quality Habitat kitchen featuring oak modular units and polished stone work surfaces
- Luxurious bathroom with a freestanding bath and separate walk-in shower
- Enclosed landscaped garden and access to communal lawned gardens
- Two dedicated off-street parking spaces
- Solar panels installed for energy efficiency
- Peaceful location within walking distance to town and beach
**Summary:**
Experience comfortable and modern living in this beautifully renovated mid-terrace house. Nestled in a serene cul-de-sac, this three-bedroom home features an inviting and spacious living room that flows seamlessly into a stunning kitchen equipped with high-end Habitat oak cabinetry. The impressive bathroom boasts both a freestanding bath and a separate shower, perfect for unwinding after a long day.
Enjoy the benefits of two dedicated parking spaces and a low-maintenance enclosed garden, complemented by inviting communal green spaces ideal for relaxation or play. Residents will appreciate the convenience of being just a short stroll from the town center and the beach, making this an ideal setting for families or retirees seeking tranquility in a vibrant community.
This property represents a unique opportunity with solid renovation potential, including the option to enhance the kitchen/diner space as previously planned. Don’t miss out on securing a slice of this picturesque seaside town—homes like this are in high demand!
3 bedroom terraced house for sale in Whitecross Gardens, Seaton, Devon, EX12 — £325,000 • 3 bed • 2 bath • 926 ft²
3 bedroom end of terrace house for sale in Shearwater Way, Seaton, EX12 — £325,000 • 3 bed • 2 bath • 872 ft²
3 bedroom terraced house for sale in Harepath Road, Seaton, Devon, EX12 — £235,000 • 3 bed • 1 bath • 901 ft²
3 bedroom semi-detached house for sale in Shearwater Way, Seaton, Devon, EX12 — £410,000 • 3 bed • 2 bath • 920 ft²
3 bedroom semi-detached house for sale in Summersby Close, Seaton. Devon, EX12 — £269,000 • 3 bed • 1 bath • 1062 ft²
3 bedroom terraced house for sale in Hawksdown View, Seaton, Devon, EX12 — £265,000 • 3 bed • 1 bath • 876 ft²


























































