Ideal for families wanting convenient access to parks and top schools.
Chain-free ground-floor flat with stamp duty paid
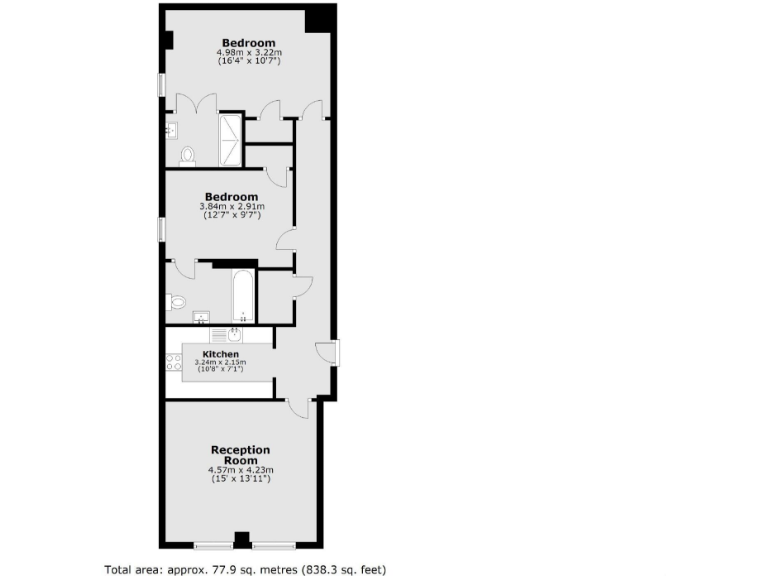
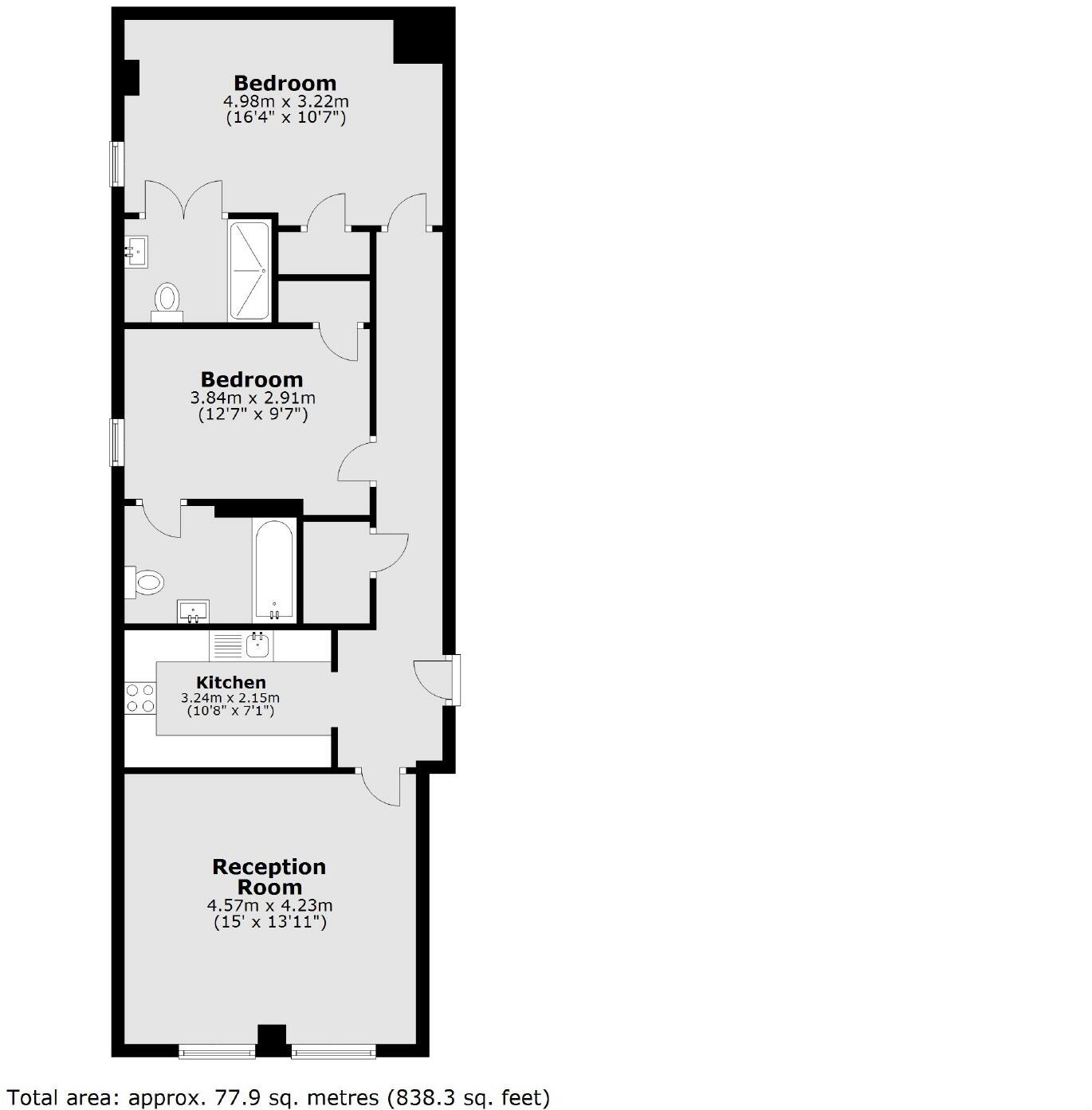
Two bedrooms and two bathrooms, convenient for families
Open-plan living area and modern fitted kitchen
Double glazed; combi boiler and radiator heating
117 years remaining on the lease (leasehold)
Service charge £700 (below average) and Council Tax band D
Average-sized rooms (approx. 838 sq ft) — not oversized
No flooding risk; low crime and fast broadband
This ground-floor two-bedroom flat offers practical, modern living in a quiet section of Colney Hatch Lane. The open-plan living area and modern fitted kitchen create a usable social space for family meals and homework, while two bathrooms ease morning routines. Double glazing, spotlights and laminate wood-effect floors reduce immediate maintenance needs.
The property sits close to Halliwick recreation ground, Coldfall Woods and several highly rated local schools, making it well suited to families with children. Transport links and local amenities are within walking distance, and the flat is offered chain free with stamp duty paid. The service charge is £700 and the lease has 117 years remaining.
Potential buyers should note this is a leasehold ground-floor flat of average size (approximately 838 sqft). Council Tax is band D and the flat sits in a generally very affluent area with low crime and fast broadband. Information supplied should be checked and confirmed prior to proceeding.
2 bedroom apartment for sale in Colney Hatch Lane, London, N10 — £365,000 • 2 bed • 2 bath • 838 ft²
2 bedroom flat for sale in Colney Hatch, Muswell Hill, London, N10 — £365,000 • 2 bed • 2 bath • 846 ft²
Parking for sale in Greenway Close, Friern Barnet, London, N11 — £285,000 • 2 bed • 1 bath • 524 ft²
2 bedroom apartment for sale in Caledonian Road, Islington, London, N7 — £435,000 • 2 bed • 2 bath • 829 ft²
2 bedroom flat for sale in Hampden Road, London, N10 — £425,000 • 2 bed • 2 bath • 789 ft²
2 bedroom apartment for sale in Lucas Gardens, London, N2 — £375,000 • 2 bed • 2 bath • 656 ft²






















