A rare elevated coastal estate with sweeping sea views and versatile outbuildings.
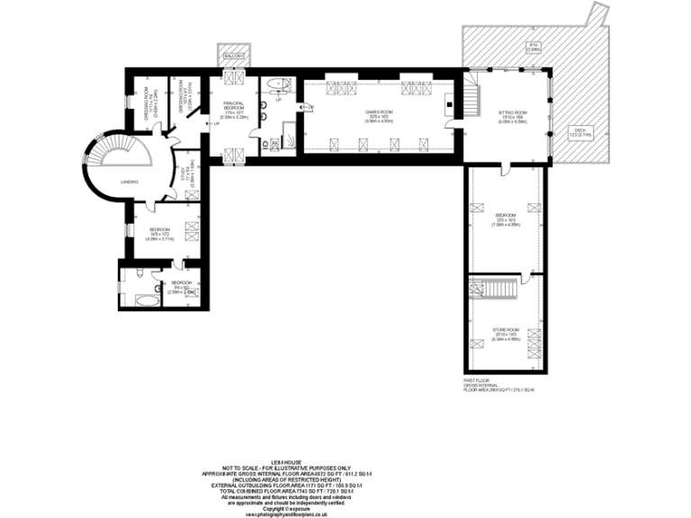
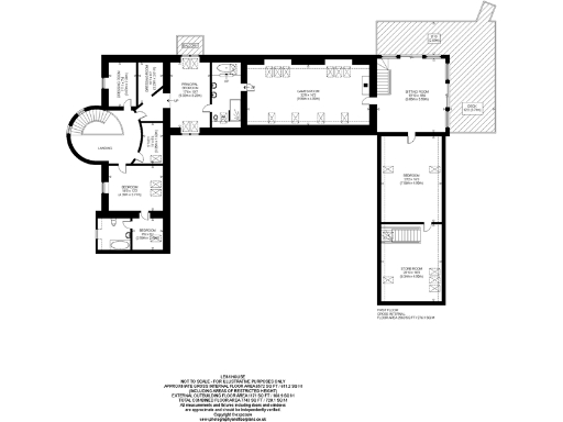
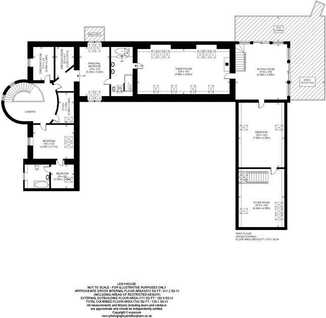
- Six bedrooms and five bathrooms across a large traditional stone residence
- Elevated sea views and immediate access to Leim beach
- Substantial outbuildings, barn and garage for boats and storage
- South-facing garden courtyard and quality greenhouse
- Large, flexible internal layout including games room and observatory
- Remote location; nearest towns and airport 22–38 miles away
- Very slow broadband and limited local services on the island
- Council Tax Band G; prepare for maintenance and upgrades
Leim Farm is a substantial six-bedroom stone residence perched above Leim beach on the Isle of Gigha, offering expansive sea views and a compound of connected traditional buildings. The house delivers flexible living across ground and first floors: reception gallery, multiple sitting rooms, library, kitchen/breakfast room, pool room, gym, games room, observatory and six bedrooms, several with ensuites. A large courtyard, southerly garden with a quality greenhouse, and significant outbuildings and a garage provide practical storage, boat space and scope for agricultural or leisure use.
This property suits buyers seeking privacy, coastal scenery and space — families wanting room for activities, hobby farmers, or purchasers seeking a special retreat. The estate’s size and outbuildings create clear potential for refurbishment projects, guest accommodation, or small-scale commercial uses, subject to planning.
Important practical points: the location is remote with limited local services and very slow broadband; nearest sizeable towns and the airport are around 22–38 miles away. Council tax is high (Band G) despite an EPC rating of C. Buyers should plan for maintenance and potential upgrades to modern services if reliant on fast internet or frequent mainland travel.
Overall, Leim Farm is a rare coastal compound that offers spectacular outlooks, generous accommodation and utility buildings — attractive to buyers prioritising space, views and privacy, and prepared to manage the realities of remoter island living.
5 bedroom detached house for sale in The Oa, PA42 — £550,000 • 5 bed • 2 bath • 1153 ft²
4 bedroom detached bungalow for sale in Drumallan, Isle of Gigha, PA41 — £265,000 • 4 bed • 2 bath
5 bedroom detached house for sale in Carnduncan, By Loch Gorm, Isle of Islay, PA44 — £495,000 • 5 bed • 3 bath • 2876 ft²
12 bedroom detached house for sale in Glencreggan House, Glenbarr, Tarbert, Argyll, PA29 — £700,000 • 12 bed • 5 bath • 3749 ft²
3 bedroom detached house for sale in Machrie Mill Croft, Kilchoman, Isle Of Islay, Argyll and Bute, PA49 — £325,000 • 3 bed • 1 bath • 887 ft²
4 bedroom detached villa for sale in Glencloy Farmhouse, Glencloy Road, Brodick, Isle of Arran, North Ayrshire, KA27 8DA, KA27 — £535,000 • 4 bed • 3 bath • 3142 ft²


























































































































