Spacious modern house with loch views and plot development potential.
5 large bedrooms and 3 reception rooms; ideal for multigenerational living
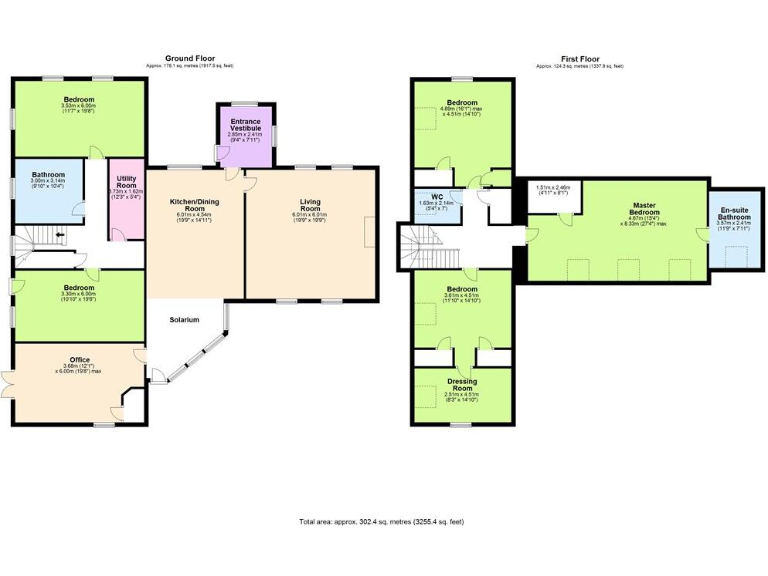
Old Mill House is a large, modern detached family home perched above Loch Gorm, offering expansive island views and room for multigenerational living. Completed in 2010 and extending to about 267 sqm (approx 2,875 sq ft), the house provides five bedrooms, three bathrooms and three large reception rooms — including a generous kitchen/dining/family space and a solarium that frames the loch and the Paps of Jura.
Practical features support independent island living: oil central heating, modern double glazing, good insulation, a private borehole with filtration and a septic system. The exceptional master suite includes a four‑piece en suite with a roll‑top bath and panoramic outlook. Outside, elevated gardens, a polytunnel, shed and off‑street parking complete the package and create flexible outdoor space for family life or small‑scale food growing.
There is potential commercial interest: B&B use may be possible subject to permissions, and planning permission in principle (ref 23/01058PP) has been granted for a new dwelling on the adjacent fully serviced plot — an opportunity to acquire both properties if required. The adaptable internal layout and multiple reception rooms also suit home working, extended family arrangements or a hospitality use with further approvals.
Important practical considerations: the property sits in a remote, agricultural community with very slow broadband and average mobile signal. The local area is classified as very deprived and the tenure is listed as unknown, so buyers should confirm legal and service details. For those seeking a spacious, well‑appointed island home with exceptional scenery and development potential, Old Mill House offers a rare combination of scale and location — but be prepared for the realities of remoteness and limited digital connectivity.
5 bedroom detached house for sale in The Oa, PA42 — £550,000 • 5 bed • 2 bath • 1153 ft²
3 bedroom detached house for sale in Machrie Mill Croft, Kilchoman, Isle Of Islay, Argyll and Bute, PA49 — £325,000 • 3 bed • 1 bath • 887 ft²
3 bedroom detached bungalow for sale in Bowmore, PA43 — £550,000 • 3 bed • 2 bath • 1678 ft²
4 bedroom detached house for sale in Fada House, Upper Kilchattan, Isle Of Colonsay, PA61 7YR, PA61 — £360,000 • 4 bed • 3 bath • 1399 ft²
4 bedroom semi-detached house for sale in Bruichladdich, PA49 — £380,000 • 4 bed • 2 bath • 1736 ft²
2 bedroom property for sale in Kilchoman, Isle of Islay, PA49 — £380,000 • 2 bed • 2 bath • 1503 ft²


























































































































