Characterful coastal-view home with modern heating and flexible interiors.
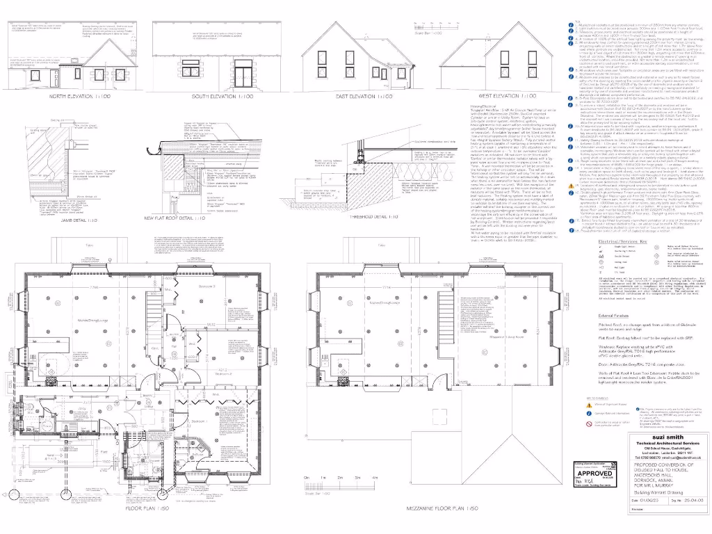
Former sandstone village hall conversion to three-bedroom home
Anderson Hall is a converted sandstone village hall transformed into a characterful three-bedroom home with striking Solway Coast views. The conversion delivers a large, open-plan kitchen/dining/living area with a mezzanine sitting space, three double bedrooms (master with en-suite), utility room and family bathroom. High-quality finishes are paired with modern environmental features including an air-source heat pump for efficient heating.
Externally the property offers off-street parking, a paved path and a raised rear patio that captures panoramic views. There is lawned ground to the side with scope to create a larger garden; a ramped access leads to the front door. The building benefits from planning for change of use and is being completed under permitted works (25/0393/FUL).
Buyers should note practical drawbacks: the wider local area records high deprivation and broadband speeds are slow. The property is in final stages of construction and images include CGI/AI-generated representations. The home is sold Heritable (freehold equivalent), with vacant possession on completion and is offered exempt from a Home Report.
3 bedroom terraced house for sale in Glebe Court,Annan,DG12 6DG, DG12 — £100,000 • 3 bed • 2 bath
4 bedroom character property for sale in Boustead Hill, Burgh-By-Sands, Carlisle, CA5 — £500,000 • 4 bed • 3 bath • 5533 ft²
2 bedroom terraced house for sale in 27 Prestonfield Road, Annan, Dumfriesshire, DG12 5HE, DG12 — £100,000 • 2 bed • 1 bath • 618 ft²
2 bedroom end of terrace house for sale in 53 Charles Street, Annan, Dumfriesshire, DG12 5AG, DG12 — £95,000 • 2 bed • 1 bath • 1271 ft²
5 bedroom detached house for sale in The Broats, Annan, DG12 — £760,000 • 5 bed • 3 bath • 3348 ft²
3 bedroom semi-detached house for sale in The Old School, Newton Arlosh, Wigton, CA7 — £320,000 • 3 bed • 2 bath • 2114 ft²










































































