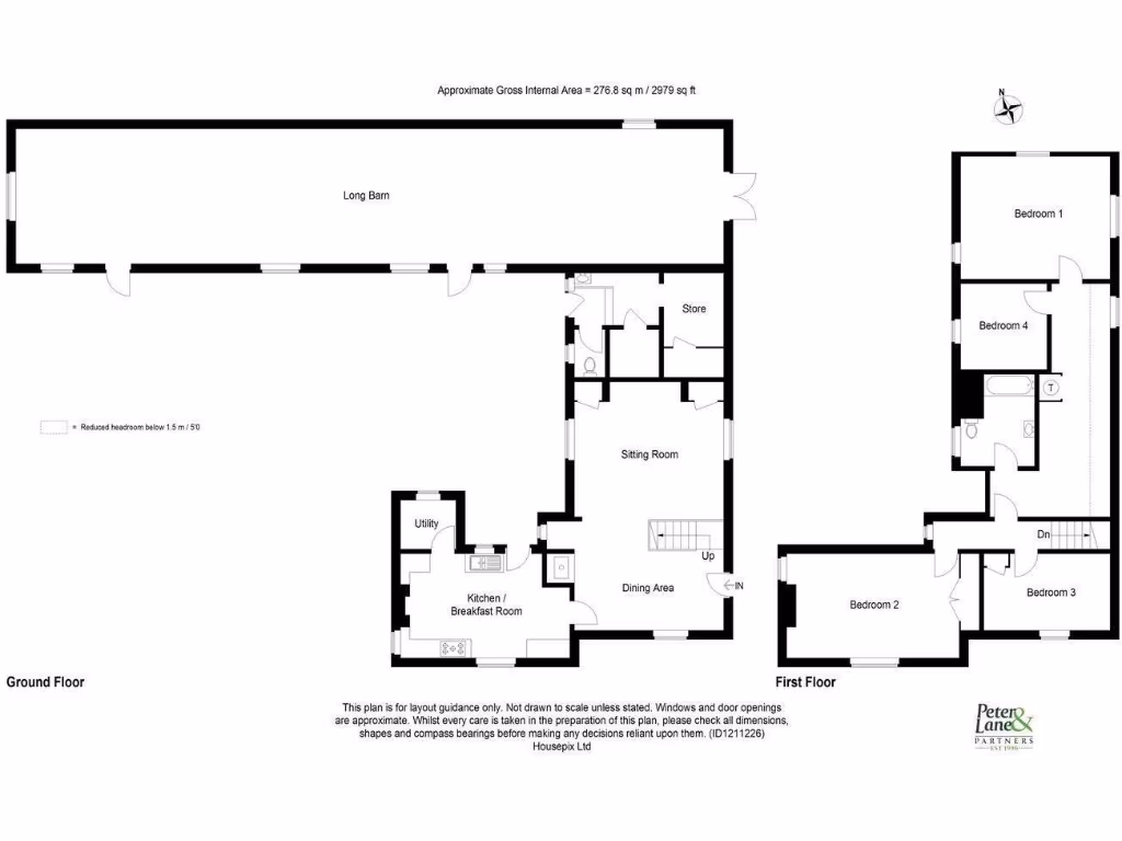
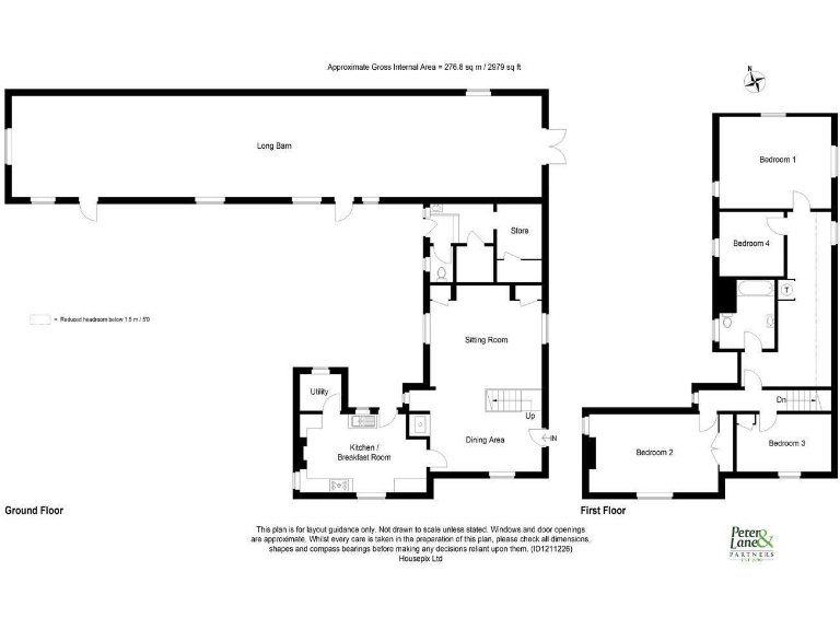
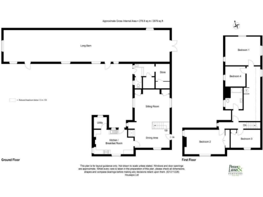
Spacious historic home with exceptional gardens and a 78' outbuilding.
Grade II listed character throughout
26' living room with notable inglenook fireplace
Four bedrooms plus study; single family bathroom
Attached 78' barn — excellent studio or storage potential
Walled, mature private gardens with ornamental pond
Listed status restricts alterations; may delay works
Sold via online auction; ID verification and legal pack required
Freehold, chain free; Council Tax Band E
This handsome Grade II listed cottage combines generous period proportions with practical family living. The house centres on an impressive 26' living space with a notable inglenook fireplace and chimney feature, and an adjoining 18' kitchen/breakfast room plus a utility. Upstairs offers four bedrooms, a study and a single family bathroom, arranged over substantial overall floor area.
Outside, a walled and gated mature garden provides privacy, established trees and an ornamental pond. A standout asset is the attached 78' barn and additional outbuildings, useful as a home studio, hobby space or substantial storage. The freehold property sits on a large plot in a very affluent, low-crime area with good broadband and mobile signal.
Buyers should note this is a listed building and that the status will restrict alterations and may complicate building works. The lot is being sold at online auction under secure sale terms; bidders must complete ID verification and consult the legal pack before bidding. Council Tax Band E applies and the sale is offered chain free.
4 bedroom detached house for sale in Colne Road, Bluntisham, Huntingdon, PE28 — £570,000 • 4 bed • 1 bath • 2979 ft²
4 bedroom detached house for sale in Church Road, Warboys, PE28 — £500,000 • 4 bed • 2 bath • 2000 ft²
3 bedroom character property for sale in Gracious Street, Whittlesey, Peterborough, PE7 — £400,000 • 3 bed • 2 bath • 1520 ft²
3 bedroom semi-detached house for sale in Cambridge Road, Babraham, Cambridge, Cambridgeshire, CB22 — £300,000 • 3 bed • 1 bath • 961 ft²
4 bedroom detached house for sale in Hartford Hill, Huntingdon, PE28 — £725,000 • 4 bed • 1 bath • 3426 ft²
4 bedroom detached house for sale in 2 Colne Road, Bluntisham, Huntingdon, PE28 — £475,000 • 4 bed • 1 bath • 1928 ft²






























































































