PE28 3LT - 4 bed thatched period cottage in Colne Road, PE28 3LT

View on Property Piper

4 bedroom detached house for sale in 2 Colne Road, Bluntisham, Huntingdon, PE28

Summary - 2 COLNE ROAD, BLUNTISHAM, HUNTINGDON PE28 3LT

4 bed 1 bath Detached

Characterful four-bedroom family home with large garden and parking.
- Grade II listed thatched cottage dating to 1592
A striking Grade II listed thatched cottage dating from 1592, formerly a village pub, now a spacious family home with four bedrooms and three reception rooms. Recent exterior renovation and maintained period features — including inglenook fireplaces, exposed beams and a historic inscribed beam — give immediate kerb appeal and long-term character.

Set on a large plot in the heart of Bluntisham, the house offers off-street parking for three cars, a cellar for substantial storage, and a south/west-facing patio that catches afternoon sun. The landscaped garden and brick outbuildings suit family life, growing space or hobby projects. Fast broadband and excellent mobile signal make remote working practical, while Cambridge/London commutes are feasible from this village location.

Practical points are clear and should be considered: the property is Grade II listed, which will restrict changes and may complicate modernisation or extensions. The house has just one family bathroom for four bedrooms and has low ceilings and smaller room proportions in parts, reflecting its age. Internally some fittings are rustic and dated — buyers should budget for sympathetic updating where desired.

This is a good fit for buyers who value historic character and generous outdoor space over a fully modern, open-plan interior. The combination of village location, large plot and substantial internal floor area provides scope to personalise sensitively within listed constraints.

Property Details

Image Descriptions

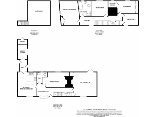
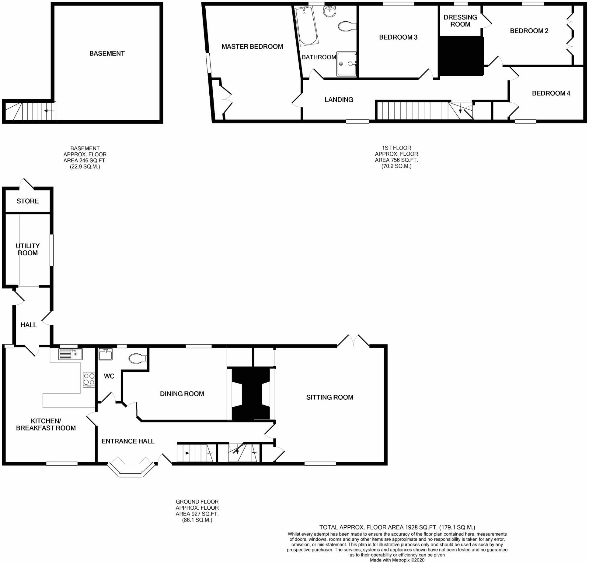
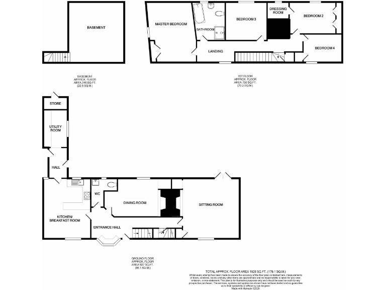
Floorplan Description

Rooms

Textual Property Features

Target Audience

AI Tags

Detected Visual Features

Nearby Schools

Nearest Bars And Restaurants

,,,,}

Nearest General Shops

,,}

Nearest Grocery shops

,,}

Nearest Supermarkets

,,}

Nearest Religious buildings

,,}

Nearest Medical buildings

,,,}

Nearest Leisure Facilities

,,,,}

Nearest Tourist attractions

,,}

Nearest Train stations

,,,,}

Nearest Bus stations and stops

,,,,}

Nearest Hotels

,,}

Tags

Local Market Stats

Similar Properties

Meta

High Res Images

Compatible Images

Low res Images

Thumbnails

Raw Images

High Res Floorplan Images

Compatible Floorplan Images

Low res Floorplan Images

FloorplanImages Thumbnail

Raw Floorplan Images