### Standout Features:
- Grade II listed former farmhouse built in 1650
- Spacious with three double bedrooms
- Detached timber barn with studio and garage/workshop
- Expansive private gardens with diverse greenery
- Located in a tranquil rural hamlet, part of an Area of Outstanding Natural Beauty
- Chain-free, offering flexibility for prospective buyers
### Potential Concerns:
- Listed status may complicate renovations or extensions
- Slow broadband speeds may affect connectivity
- Average mobile signal coverage
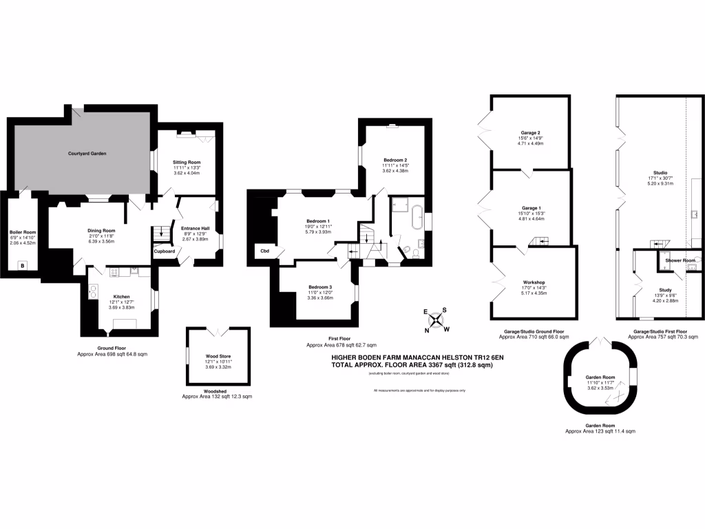
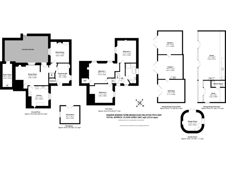
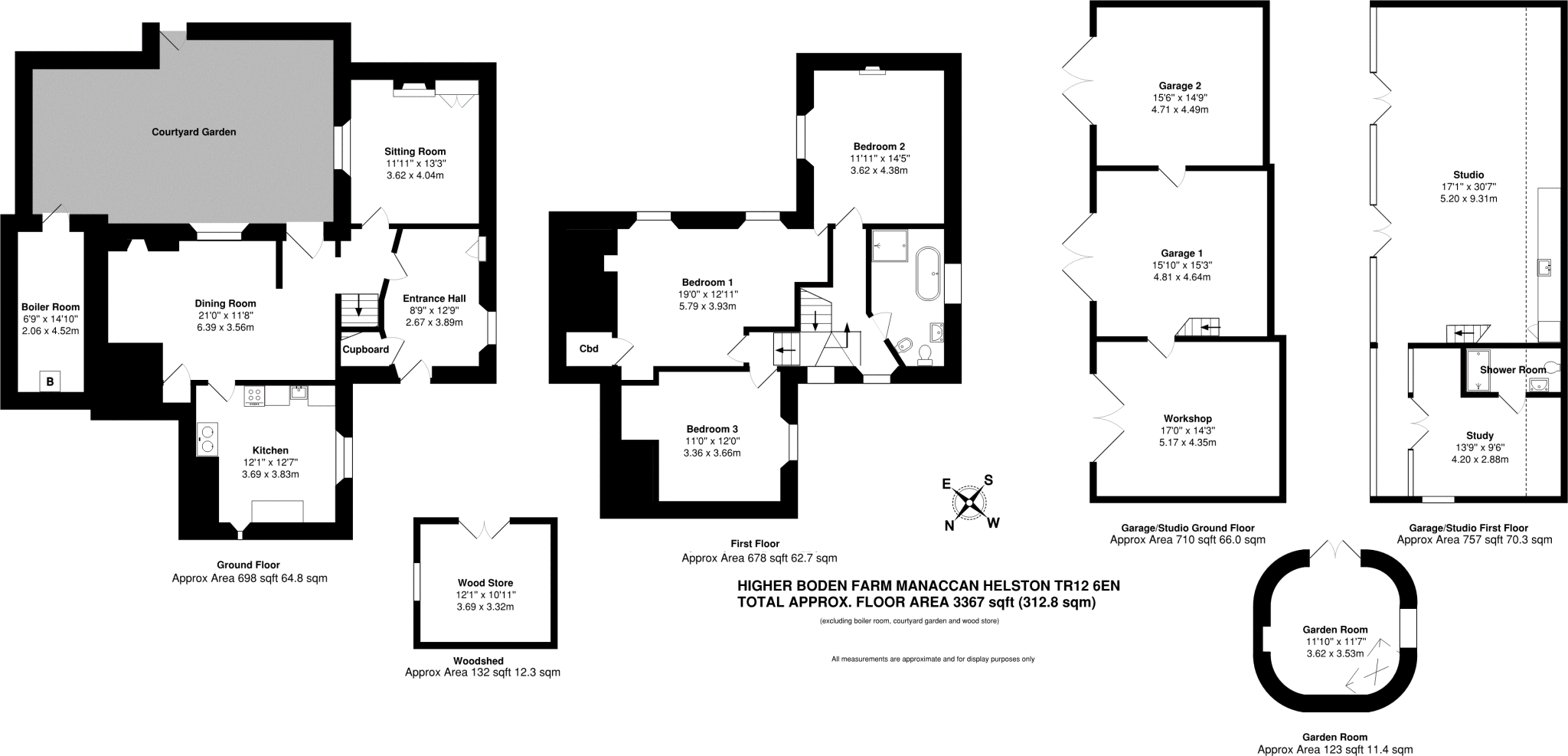
Elevate your lifestyle at Higher Boden Farm, a captivating Grade II listed former farmhouse nestled in a picturesque rural hamlet near Manaccan. With three generous double bedrooms, this home offers vintage charm combined with modern potential. The inviting reception hall leads you to elegant living spaces adorned with period details such as beamed ceilings and a grand inglenook fireplace. Outside, immerse yourself in nature within the expansive private gardens – perfect for leisurely mornings or inspired gardening.
The detached timber barn presents incredible flexibility, featuring a spacious studio above and ample space for a workshop and garage. Imagine the possibilities for creativity or craftsmanship just steps from your home! While the property benefits from a tranquil setting with rich historical significance, the listed status may impose restrictions on future renovations. Additionally, slow broadband and average mobile signals could be considerations for everyday modern living.
Don't miss this unique opportunity to own a piece of Cornish history surrounded by breathtaking countryside, nestled just moments from the shimmering Helford River and enchanting coastal paths. This exclusive offering is a rare find and is waiting for you to make it your own!
4 bedroom detached house for sale in St Martin, Cornwall, TR12 — £1,000,000 • 4 bed • 3 bath • 1932 ft²
3 bedroom detached house for sale in Breage, Helston, Cornwall, TR13 — £650,000 • 3 bed • 2 bath • 2135 ft²
3 bedroom cottage for sale in Coastal character property with paddock, Gunwalloe, TR12 — £649,500 • 3 bed • 1 bath • 1089 ft²
4 bedroom detached house for sale in Godolphin Bridge, Townshend, Hayle, Cornwall, TR27 — £550,000 • 4 bed • 3 bath • 2383 ft²
3 bedroom cottage for sale in Carnmenellis, TR16 — £485,000 • 3 bed • 2 bath • 1136 ft²
3 bedroom cottage for sale in Medlyn Moor, Porkellis, Helston, TR13 — £725,000 • 3 bed • 1 bath • 1032 ft²






















































































