Freehold redevelopment plot for investors seeking city-centre apartment potential.
- Freehold three-storey Victorian commercial building on Loughborough Road
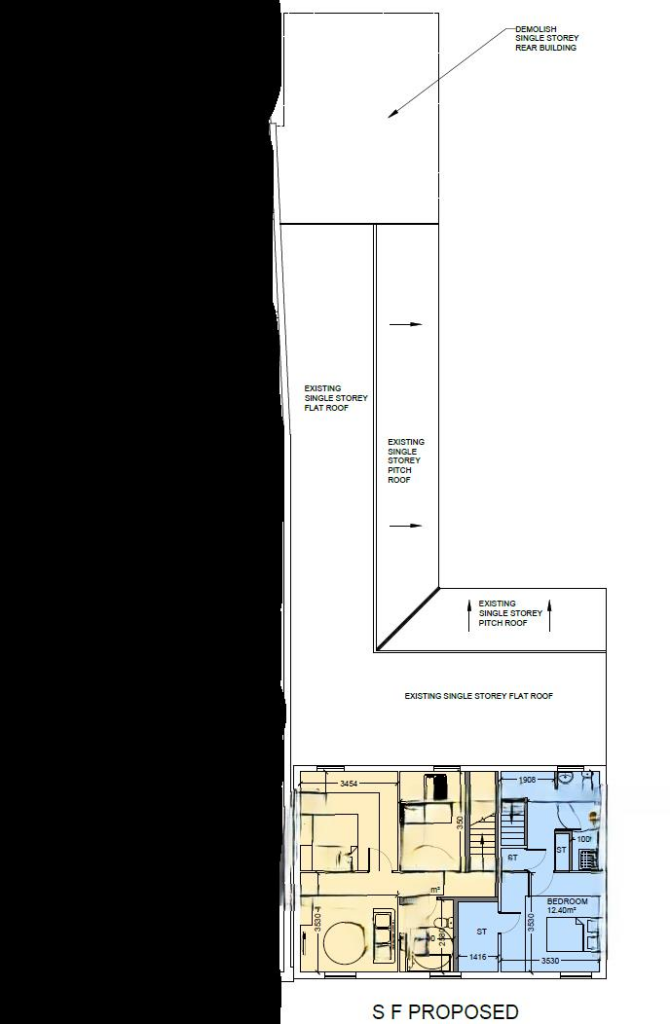
- Potential to convert to residential — proposed up to 12 apartments (STP)
- Requires significant renovation and upgrading throughout
- Rear paved area provides limited off-street parking
- No flood risk; excellent mobile signal and fast broadband
- Located in a very deprived area with high local crime levels
- Close to primary and secondary schools rated Good or Outstanding
- Viewings by appointment only; planning and surveys recommended
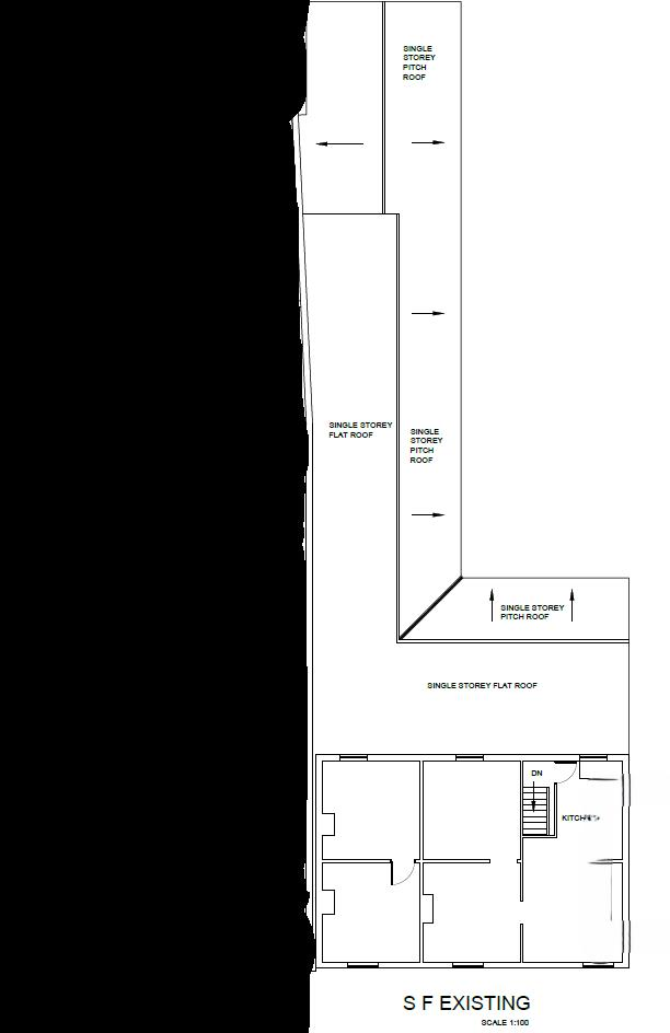
A prominent three-storey Victorian commercial building on Loughborough Road offered freehold with strong redevelopment potential. The property occupies a high-visibility position on a busy parade and includes a paved rear area providing off-street parking. Layouts and supplied floorplans indicate scope for conversion to multiple residential units, with the vendor suggesting potential for up to 12 apartments subject to planning (STP).
The building retains period character, large windows and generous ground-floor spaces that lend themselves to flexible reuse. Services indicators are positive for urban redevelopment: no flood risk, excellent mobile signal and fast broadband. The site is suitable for a mixed-use or wholly residential scheme for an investor or developer prepared to apply for planning consents.
Buyers should budget for significant upgrading works. The property needs renovation throughout and will require planning approval to convert to residential. The immediate area is described as very deprived with high local crime levels; these social and market factors may affect rental values, lettability and planning scrutiny. Prospective purchasers should undertake full surveys and pre-application planning advice before committing.
For an experienced developer or investor willing to manage refurbishment and planning risk, this freehold presents a rare, city-centre redevelopment plot with immediate visibility and reasonable on-site parking for an urban scheme. Consider financial modelling that includes remediation, conversions costs and sensitivity to local lettings demand.
Property for sale in Loughborough Road, Belgrave, Leicester, LE4 — £650,000 • 1 bed • 1 bath
Light industrial facility for sale in 31-35 Knighton Lane, Leicester, LE2 8BG, LE2 — £425,000 • 1 bed • 1 bath • 2018 ft²
Office for sale in Eastgate House, 19, 21 & 23 Humberstone Road, Leicester, LE5 — £1,750,000 • 1 bed • 1 bath • 23163 ft²
Commercial property for sale in Bridge Road, LE5 — £1,650,000 • 1 bed • 15 bath • 7793 ft²
1 bedroom terraced house for sale in Aylestone Road, Leicester, LE2 — £240,000 • 1 bed • 2 bath • 560 ft²
Office for sale in Aylestone Road, Leicester, LE2 — £240,000 • 1 bed • 1 bath • 560 ft²


















































