Private elevated plot with approved loft conversion potential and village character.
- Grade II listed cottage with original stone and period features
- Handcrafted kitchen with NEFF appliances and granite worktops
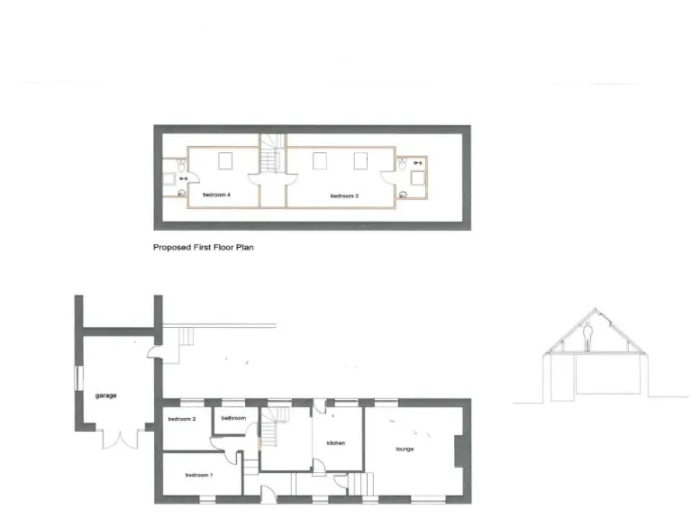
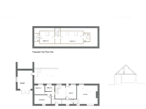
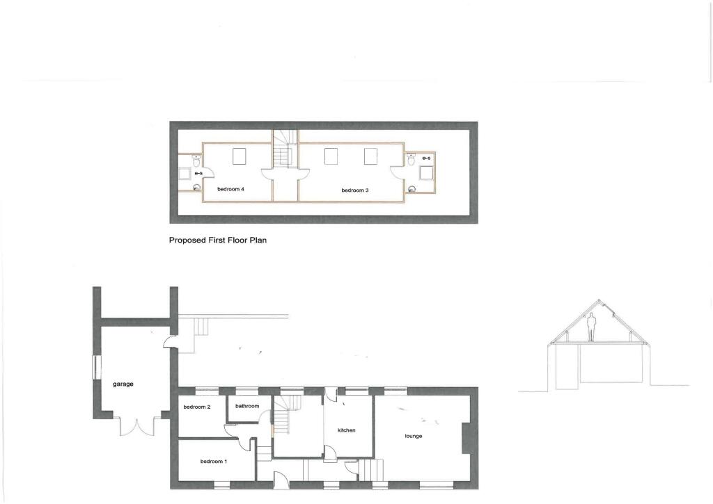
- Planning permission granted to add two en‑suite bedrooms (consent until 2026)
- Private elevated plot, driveway, garage and secluded rear courtyard
- Reduced price to reflect stamp duty; chain free sale
- Built 1835 — may need specialist maintenance and listed repairs
- Council tax band above average
- Listed status restricts alterations and can increase refurbishment costs
A rare Grade II listed cottage dating from 1835, The Mistal sits in an elevated, private spot in historic Cusworth Village. Original stone features, arched windows and a handcrafted kitchen with NEFF appliances give the house strong period character alongside practical modern fittings. The property is chain free and has a garage, private driveway and a secluded rear courtyard.
Planning permission (Ref: 23/02371/LBC) is granted to extend into the roof to create two additional bedrooms with en‑suites, four rear rooflights and internal wall removal — consent valid until 2026. That approved scope makes this attractive for buyers wanting to increase living space and add value, but any works must comply with listed-building conditions.
Buyers should note the listed status will complicate alterations and ongoing maintenance; older fabric typically requires specialist repair and higher upkeep. Council tax is above average. The vendor has reduced the asking price to reflect stamp duty costs and the house offers scope for further sympathetic renovation rather than a move-in‑and‑forget purchase.
For families or buyers seeking a character-rich home near green space, The Mistal combines village tranquillity with excellent road links (A1, M18, M1 close by) and good local schools. If you value historic detail, privacy and development potential, this property presents a distinctive opportunity.
2 bedroom cottage for sale in High Street, Arksey, DN5 — £230,000 • 2 bed • 1 bath • 817 ft²
4 bedroom cottage for sale in Church Street, Fishlake, DN7 — £300,000 • 4 bed • 1 bath • 1254 ft²
3 bedroom semi-detached house for sale in Hickleton, Doncaster, South Yorkshire, DN5 — £430,000 • 3 bed • 2 bath • 2031 ft²
3 bedroom cottage for sale in High Street, Arksey, DN5 — £200,000 • 3 bed • 1 bath • 1055 ft²
3 bedroom cottage for sale in The Mistle, Denby Dale Road, Bretton, WF4 — £440,000 • 3 bed • 2 bath • 1233 ft²
3 bedroom semi-detached house for sale in Walsham Drive, Cusworth, Doncaster, DN5 — £200,000 • 3 bed • 1 bath • 905 ft²










































































































































































































