Contemporary three-bedroom apartment with balcony near Primrose Hill and convenient transport links.
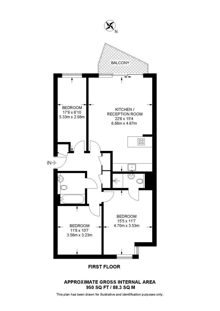
Approximately 950 sq ft first-floor three-bedroom flat
Set across approximately 950 sq ft on the first floor, this three-bedroom flat combines bright open-plan living with a private sunny balcony, ideal for weekday relaxing or small-scale entertaining. The main bedroom benefits from an en-suite shower room, while two well-sized secondary bedrooms suit a family, sharers or home office use.
The property is well-located for Primrose Hill amenities and transport links, with Chalk Farm and Kentish Town West stations within easy reach. Broadband speeds and mobile signal are reported strong, and nearby primary and secondary schools include several rated Good by Ofsted.
Practical considerations: the home is leasehold and will be sold at an online auction, requiring interested buyers to follow the auction process. Heating is electric via room heaters rather than a gas central system; the EPC is rated C. Council tax is described as quite expensive and the local area records very high crime and very high deprivation indices—factors to weigh for families or investors.
This flat will suit buyers wanting a ready-to-live-in, contemporary apartment in a central NW1 location who are comfortable with leasehold ownership and the auction route. It also offers rental or longer-term value for investors who can manage area-related risks and running costs.
3 bedroom flat for sale in Regents Park Road, Chalk Farm, London, NW1 — £650,000 • 3 bed • 2 bath • 950 ft²
2 bedroom flat for sale in Hillview, Primrose Hill, London NW3 — £650,000 • 2 bed • 2 bath • 856 ft²
2 bedroom flat for sale in Primrose Hill Road, Primrose Hill, London, NW3 — £650,000 • 2 bed • 2 bath • 856 ft²
3 bedroom apartment for sale in 243 Junction Road, London, ., N19 5QG, N19 — £700,000 • 3 bed • 1 bath • 1047 ft²
2 bedroom flat for sale in Gloucester Place, Marylebone, London, NW1 — £850,000 • 2 bed • 2 bath • 975 ft²
3 bedroom apartment for sale in City Of London Point, York Way, London, N7 — £775,000 • 3 bed • 2 bath • 990 ft²






































































