Newly renovated shared ownership flat near Cockfosters station and communal green space.
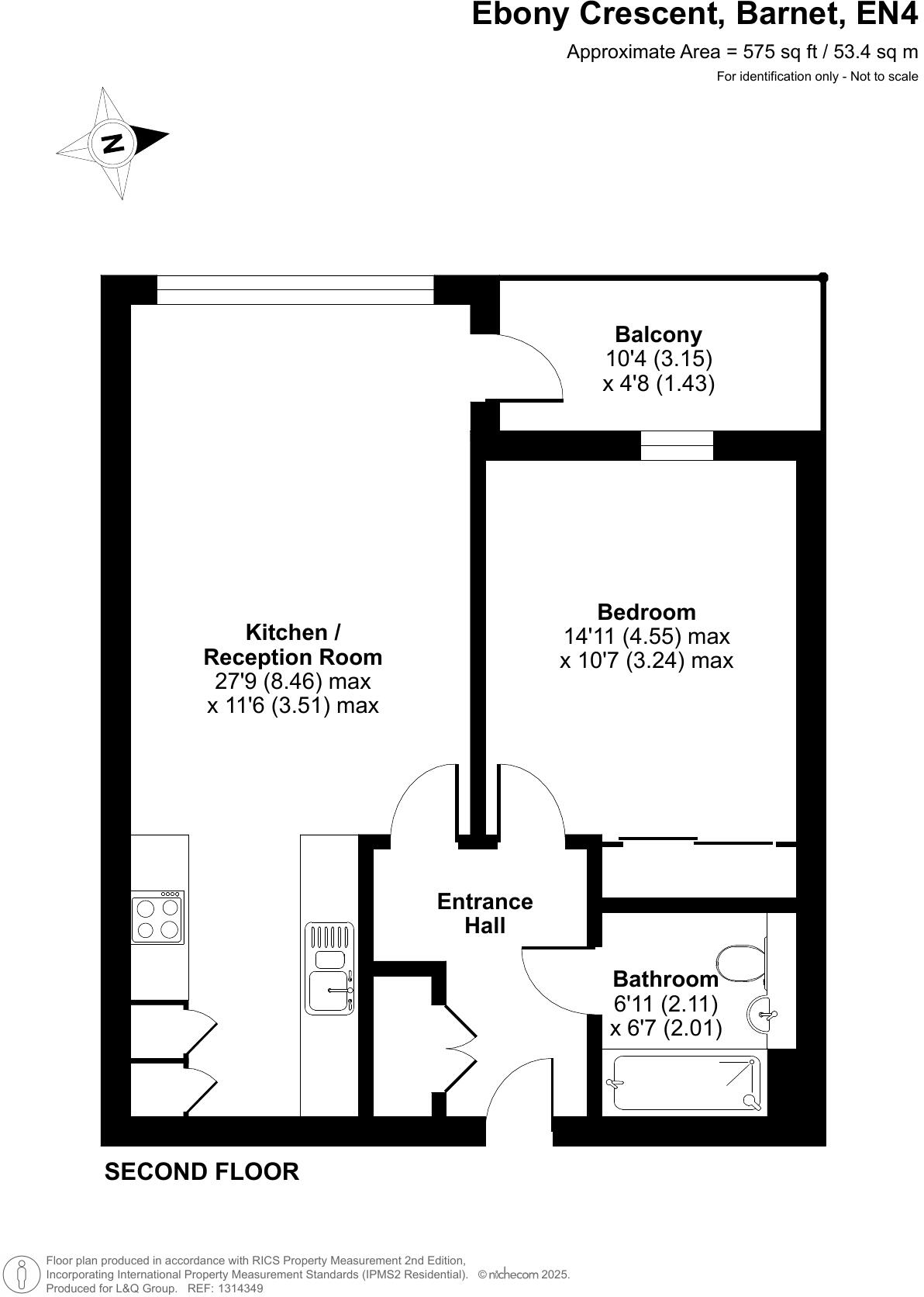
One double bedroom, approximately 575 sq ft (average-sized flat)
A bright, newly renovated one-bedroom apartment in Bolingbroke Park, well suited to first-time buyers seeking affordable entry via Shared Ownership. The open-plan reception has floor-to-ceiling windows, treetop views and a west-facing balcony that brings afternoon sun. High-gloss fitted kitchen with integrated appliances and a useful utility cupboard add modern convenience.
Practical running costs are clear: a 115-year lease, service charge £324.85, small ground rent and a sinking fund in place for major works. Communal heating and hot water are provided, which reduces maintenance but limits individual temperature control. Parking may be available to rent rather than included.
The development is gated with well-maintained communal gardens, lakes, wooded areas and three children’s play spaces. Cockfosters Tube (Piccadilly line) is a short walk away, and local shops, cafés and Sainsbury’s Local are close by, making daily life straightforward.
Important facts: the block holds an EWS1 B1 rating and further fire-engineering review is underway; certification is available. The area records higher crime levels than average — buyers should check local crime data and consider security measures. Council Tax Band E applies.
2 bedroom flat for sale in 13 Ebony Crescent, Cockfosters, EN4 8FJ, EN4 — £460,000 • 2 bed • 2 bath • 805 ft²
1 bedroom flat for sale in Ottoman Court, EN4 8FJ, EN4 — £325,000 • 1 bed • 1 bath • 571 ft²
2 bedroom flat for sale in Ebony Crescent, Barnet, EN4 — £440,000 • 2 bed • 2 bath • 813 ft²
1 bedroom flat for sale in Ash Court, Cline Road, London, N11 2NG, N11 — £300,000 • 1 bed • 1 bath • 448 ft²
2 bedroom flat for sale in Beddington House, 2 Cornforth Lane, Mill Hill, NW7 1SU, NW7 — £520,000 • 2 bed • 2 bath • 796 ft²
2 bedroom flat for sale in 4 Cornforth Lane, Mill Hill, NW7 1SU, NW7 — £525,000 • 2 bed • 2 bath • 769 ft²










































































