CM2 7FA - Land for sale in Blind Lane, Sandon, Chelmsford, CM2

View on Property Piper

Land for sale in Blind Lane, Sandon, Chelmsford, CM2

Summary - RAINBOWS END, BLIND LANE, CHELMSFORD, SANDON CM2 7FA

1 bed 1 bath Land

### Key Features:
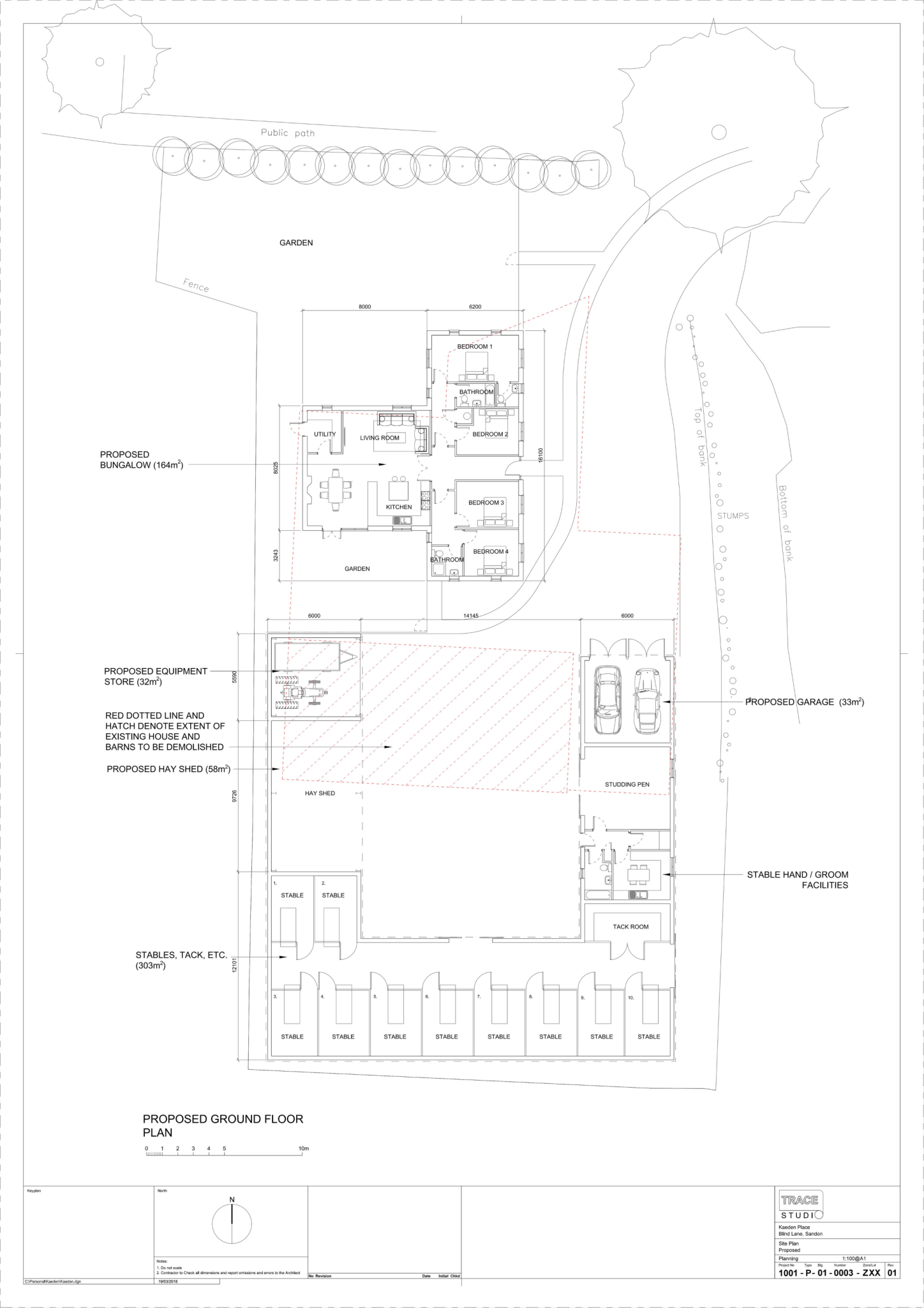
- **Planning permission granted** for a spacious **4-bedroom bungalow** with stables (Ref: 21/00537/FUL).
- Generous **1-acre plot**, ideal for equestrian enthusiasts or potential future development (STP).
- Located in the peaceful and prosperous village of **Sandon**, close to Chelmsford city center.
- Excellent access to major roads (A12, A130) and mainline station.
- Surrounded by beautiful green spaces and bridleways.

This exceptional 1-acre plot in Sandon offers a rare opportunity for self-builders and developers alike to create a bespoke four-bedroom bungalow in a stunning rural setting. Approved plans showcase a spacious home designed for modern living, accompanied by stables perfect for horse lovers. The property's generous size allows for extended gardens or additional development possibilities, providing great appeal for those seeking a tranquil lifestyle close to city amenities.

Surrounded by countryside charm, you'll enjoy a welcoming community atmosphere and nearby access to local schools with good ratings, along with Chelmsford's vibrant shopping and dining scene, all just minutes away. While the site is already a gem, be aware that it includes some commercial elements and requires further investigation regarding its rateable value.

This unique opportunity combines rural beauty with practical accessibility—ideal for families, down-sizers, or investors looking for a solid rental prospect. With interest in such prime plots expected to soar, don’t miss your chance to secure your piece of the countryside. Act now to realize your vision in this prestigious Chelmsford location!

Property Details

Image Descriptions

Floorplan Description

Rooms

Textual Property Features

Detected Visual Features

Nearby Schools

Nearest Bars And Restaurants

,,,,}

Nearest General Shops

,,}

Nearest Grocery shops

,,}

Nearest Supermarkets

,,}

Nearest Religious buildings

,,}

Nearest Medical buildings

,,,}

Nearest Airports

,,}

Nearest Leisure Facilities

,,,,}

Nearest Tourist attractions

,,}

Nearest Train stations

,,,,}

Nearest Bus stations and stops

,,,,}

Nearest Hotels

,,}

Tags

Local Market Stats

Similar Properties

Meta

High Res Images

Compatible Images

Low res Images

Thumbnails

Raw Images

High Res Floorplan Images

Compatible Floorplan Images

Low res Floorplan Images

FloorplanImages Thumbnail

Raw Floorplan Images