Spacious three-bedroom home with garage and easy commuter links.
No onward chain — ready for a quick purchase
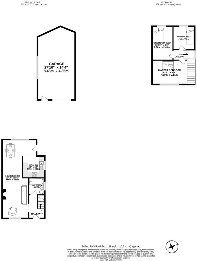
This three-bedroom semi-detached home on a quiet cul‑de‑sac in Chorley offers straightforward family living and immediate availability thanks to no onward chain. At approximately 1,189 sq.ft., the layout includes a generous lounge flowing to a dining area, a fitted kitchen, and three well-proportioned bedrooms — two doubles — ideal for growing families.
Outside, the property benefits from off‑street parking, a private driveway, a detached double garage and a low‑maintenance rear garden with flagged patio and raised decking. Commuters will appreciate quick access to the M6 and M61, and the location is served by several good local primary and secondary schools. Broadband and mobile signals are reported as fast and excellent respectively.
Buyers should note practical considerations: the home has an EPC rating of D and a single family bathroom, and the build era (late 1960s–1970s) means some systems and finishes may require updating to modern standards. Overall the plot is decent and the property is presented as a solid, traditional family house with scope to personalise and improve.
Early viewing is recommended for families seeking a straightforward purchase, useful storage (double garage) and easy commuting, with room to modernise energy performance and interior finishes over time.
3 bedroom end of terrace house for sale in St. Gregorys Place, Chorley, PR7 — £159,995 • 3 bed • 1 bath • 903 ft²
3 bedroom detached house for sale in Bracken Close, Chorley, PR6 — £254,995 • 3 bed • 2 bath • 1108 ft²
3 bedroom semi-detached house for sale in Southdowns Road, Chorley, PR7 — £264,995 • 3 bed • 1 bath • 1053 ft²
3 bedroom terraced house for sale in Scawfell Road, Chorley, PR7 — £149,995 • 3 bed • 1 bath • 1005 ft²
3 bedroom semi-detached house for sale in Yarrow Road, Chorley, PR6 — £279,995 • 3 bed • 1 bath • 1083 ft²
3 bedroom semi-detached house for sale in Long Meadows, Chorley, PR7 — £179,995 • 3 bed • 1 bath • 853 ft²






































































