Bright family home with large garden, garage and town-centre convenience.
Three bedrooms with modern shower room
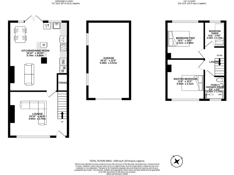
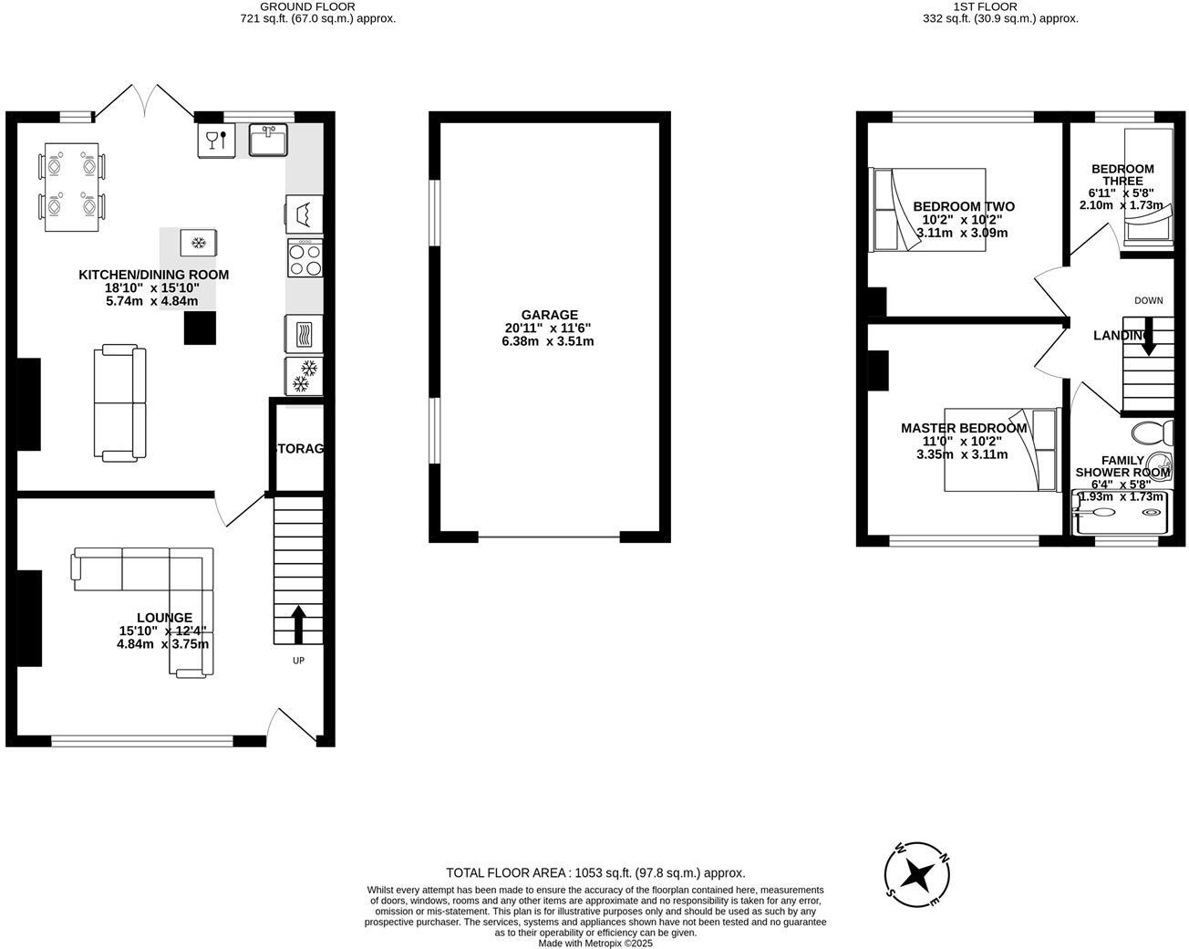
This extended three-bedroom house offers a practical family layout and generous outdoor space within easy walking distance of Chorley town centre. The open-plan bespoke kitchen/dining room with French doors creates a bright hub for everyday living and entertaining, while the living room’s herringbone-style flooring and large front bay window add period character.
Bedrooms are well proportioned across the first floor and the family shower room is modern and functional. Outside there’s off-road parking, a detached garage and a sizeable, low-maintenance rear garden with patio and lawn — useful for children, pets or weekend gardening.
Important factual notes: the property is leasehold (very long lease remaining, approx. 911 years) with a nominal ground rent of £7. The house dates from the 1930s and external walls are assumed to be uninsulated cavity walls, so adding wall insulation could improve comfort and running costs. EPC rating C and mains gas central heating are positives for energy efficiency.
Overall this is a move-in-ready family home in an affluent, well-connected area with good local schools and fast broadband. Buyers seeking further energy upgrades or willing to add insulation will unlock additional comfort and savings.
3 bedroom semi-detached house for sale in Yarrow Road, Chorley, PR6 — £279,995 • 3 bed • 1 bath • 1083 ft²
3 bedroom semi-detached house for sale in Long Meadows, Chorley, PR7 — £179,995 • 3 bed • 1 bath • 853 ft²
3 bedroom semi-detached house for sale in Parkside Avenue, Chorley, PR7 — £299,995 • 3 bed • 1 bath • 1061 ft²
3 bedroom semi-detached house for sale in Weld Avenue, Chorley, Lancashire, PR7 — £175,000 • 3 bed • 1 bath • 932 ft²
4 bedroom semi-detached house for sale in Bolton Road, Chorley, PR7 — £299,995 • 4 bed • 2 bath • 1487 ft²
3 bedroom semi-detached house for sale in Egerton Grove, Chorley, PR7 — £245,000 • 3 bed • 1 bath • 1163 ft²






































































































