Spacious four-bedroom family house on a peaceful rural edge with large garden.
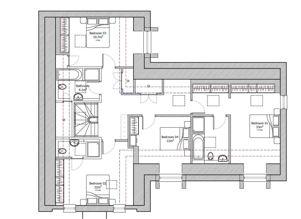
4 bedrooms and 3 bathrooms in a large 2,330 sq ft new-build house
Last remaining plot in small exclusive development; incentives available
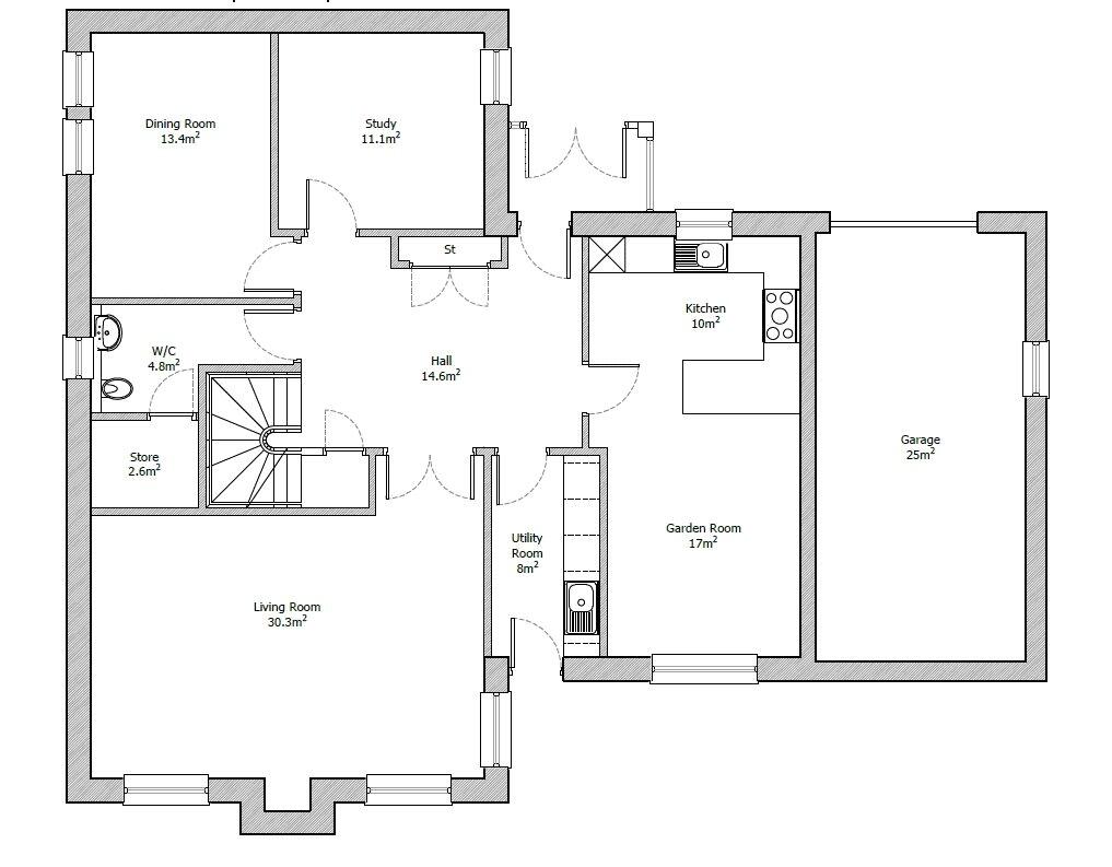
High-spec kitchen: Siemens appliances, Quooker, Silestone worktops
Porcelanosa-tiled bathrooms; master en-suite with walk-in shower
Attached single garage and private driveway for secure parking
Fibre infrastructure stated, but current broadband speeds reported very slow
No flood risk; rural setting with notable birdlife and open-field views
EPC and council-tax band TBC; property not yet built
Set on the rural edge of Glasgow in the small Millichen enclave, this new-build four-bedroom house offers generous, family-sized accommodation across multiple storeys. At approximately 2,330 sq ft it delivers spacious reception areas, a large kitchen and utility, and private landscaped gardens — ideal for everyday family life and outdoor living. The last remaining plot comes with developer incentives and a single garage and driveway for secure parking.
Specification focuses on quality and convenience: timber-framed double-glazed windows, contemporary Porcelanosa-tiled bathrooms, Roca sanitaryware, and a fitted kitchen with Siemens appliances, Quooker tap and Silestone worktops. The master suite includes a large walk-in shower and double basin unit; family bathrooms have separate baths and showers. Internal finishes include walnut-veneer doors, satin-white skirtings and generous socket and media provision.
Location is a quiet, semi-rural setting with open fields, river-side wildlife and easy access to Glasgow’s northern suburbs and the West End. The development is small and exclusive, offering a countryside feel while remaining commutable. There is no recorded flood risk for the plot.
Important practical notes: the property is new-build so EPC and council-tax band are not yet available. Although the development is advertised with fibre-to-premises capable infrastructure, current broadband speed information provided shows very slow performance — buyers should confirm actual speeds on completion. The immediate area is described as having high levels of social deprivation which may influence local services and amenities.
5 bedroom detached house for sale in Dumgoyne, Glasgow, Stirlingshire, G63 — £1,250,000 • 5 bed • 4 bath • 1557 ft²
5 bedroom detached house for sale in Dumgoyne, Glasgow, Stirlingshire, G63 — £1,250,000 • 5 bed • 4 bath • 2032 ft²
5 bedroom detached house for sale in Dumgoyne, Glasgow, Stirlingshire, G63 — £1,250,000 • 5 bed • 4 bath • 3327 ft²
4 bedroom detached house for sale in Coatbridge,
ML5 4UF, ML5 — £344,995 • 4 bed • 1 bath • 1142 ft²
4 bedroom detached house for sale in Off Hamilton Road,
Cambuslang,
South Lanarkshire,
G72 7XF, G72 — £415,000 • 4 bed • 1 bath • 1090 ft²
4 bedroom detached house for sale in Strathaven Road, Hamilton,
South Lanarkshire,
ML3 7UX, ML3 — £384,995 • 4 bed • 1 bath • 1200 ft²


















































































































































































































































































































































































































